
Omschrijving
Een karakteristieke 2-onder-1 kapwoning met een zonnige achtertuin, gelegen in een fijne buurt!
Deze fijne gezinswoning beschikt onder andere over een royale doorzonwoonkamer van ca. 32 m², een half open keuken, 3 slaapkamers (mogelijkheid tot 4 slaapkamers) en een achtertuin gelegen op het zuidoosten met achterom. Een ideale woning voor starters en gezinnen die op zoek zijn naar een leuke plek in een kindvriendelijke buurt!
De buurt kenmerkt zich door zijn gemoedelijke sfeer en is ideaal voor gezinnen, met diverse speelplekken, (basis- en middelbare) scholen, kinderopvang en sportverenigingen in de nabije omgeving. Verderop vind je de Hertenweide met een speeltuintje, een geliefde plek waar kinderen zich kunnen vermaken. Daarnaast is het centrum van Gouda en alle andere benodigde voorzieningen op loopafstand, terwijl het NS-station gemakkelijk per fiets te bereiken is.
Bijzonderheden:
- Zonnige achtertuin met een houten berging, v.v. elektra;
- 3 slaapkamers (4 mogelijk);
- Woning nagenoeg geheel voorzien van dubbelglas (waarvan gedeeltelijk HR++);
- 1e verdieping achterzijde en tuindeuren voorzien van nieuwe kozijnen (2024);
- Parkeervergunning aan te vragen bij de Gemeente Gouda;
- Nabij alle benodigde voorzieningen en diverse uitvalswegen.
Indeling van de woning.
Begane grond:
Vanuit de straat betreed je de fraaie entree/vestibule.
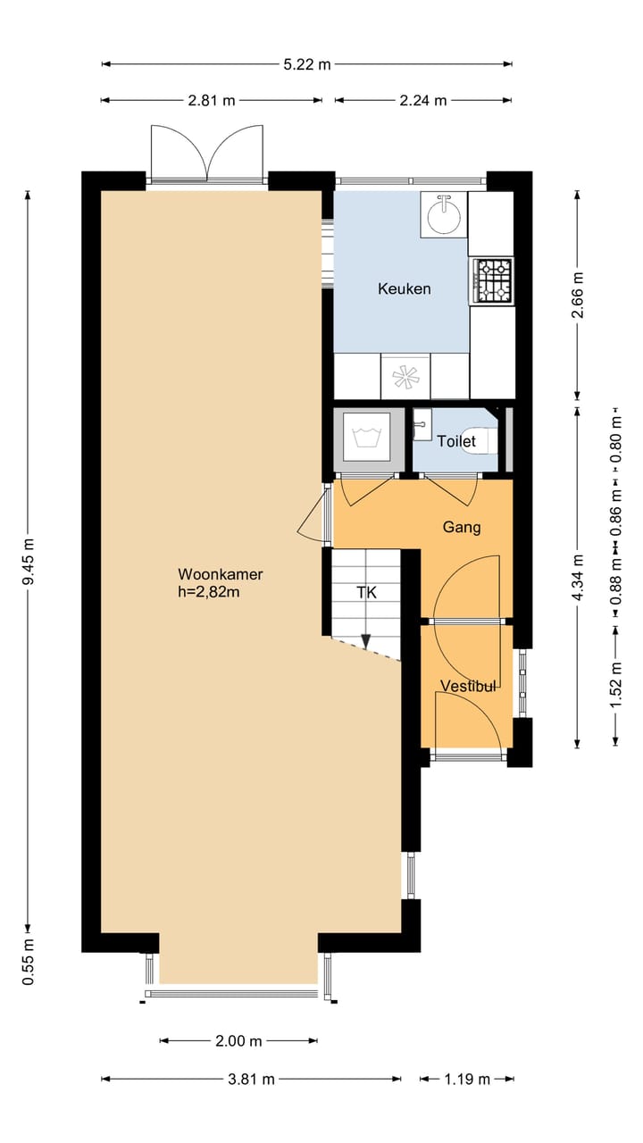
Bij binnenkomst vallen direct de karakteristieke details van de woning op, zoals de granitovloer, wandtegels en het glas-in-lood. Vanuit de vestibule kom je uit in de praktisch ingedeelde hal, voorzien van de meterkast, een vaste kast met daarin aansluitpunten voor de wasmachine, een toiletruimte met hangend toilet en fonteitje en de vaste trap naar de eerste verdieping. Verder biedt de hal doorgang tot de ruime woonkamer van ca. 32 m².
De doorzonwoonkamer is een sfeervolle leefruimte met volop ruimte voor zowel een gezellige zithoek als een ruime eethoek. Aan de voorzijde zorgt een karakteristieke erker voor extra lichtinval, terwijl de openslaande deuren aan de achterzijde toegang bieden tot de zonnige achtertuin. De vloer is afgewerkt met fraaie massief eiken vloer en de wanden zijn deels gestuct, deels voorzien van geschilderd behang.
Aan de achterzijde van de woning ligt de halfopen keuken, opgesteld in een praktische U-vorm en voorzien van de benodigde apparatuur, zoals
- 4-pitsgas kookplaat;
- afzuigkap;
- vaatwasser;
- koel-vriescombinatie (kan worden overgenomen);
- losse combimagnetron;
Verder is er in de keuken een luik naar een (wijn)kelder, ideaal om je voorraad in op te bergen.
Eerste verdieping:
Via de vaste trap kom je uit op de ruime overloop, voorzien van een dakraam en een vaste kast met de opstelling van de Cv-ketel (Remeha). Vanuit de overloop heb je toegang tot 3 (ruime) slaapkamers en de badkamer.
De eerste slaapkamer (ca. 20 m²) bevindt zich aan de achterzijde en strekt zich uit over de volledige breedte van de woning. Dankzij de grote raampartijen komt er veel natuurlijk licht binnen, terwijl de houten balken aan het plafond zorgen voor extra sfeer. Verder is deze kamer voorzien van een ingebouwde kastenwand, waardoor er voldoende opbergruimte is. Het is mogelijk om deze slaapkamer te splitsen in twee volwaardige slaapkamers, ideaal voor bijvoorbeeld een groeiend gezin of starters met oog op de toekomst.
Aan de voorzijde van de woning bevindt zich de tweede (tevens ruime) slaapkamer, voorzien van inbouwkasten en een nis met planken. Tussen de voor- en achterslaapkamer bevindt zich een tussenkamer, voorzien van een dakraam. Momenteel is deze kamer ingericht als kastenkamer, maar biedt diverse mogelijkheden als het gaat om de inrichting ervan. Daarnaast heb je vanuit hier toegang tot de bergvliering.
De volledig betegelde badkamer heeft een praktisch indeling, waardoor er optimaal gebruik is gemaakt van de ruimte, en is voorzien van:
- ligbad met douchecabine;
- tweede hangend toilet;
- dubbele wastafelmeubel met spiegelkastje.
Daarnaast zorgen de twee zijramen voor natuurlijke ventilatie.
De eerste verdieping is volledig voorzien van een laminaatvloer.
Tuin:
De achtertuin van ca. 50 m² is gelegen op het zuidoosten, waardoor je hier de hele middag van de zon kunt genieten. Achterin de tuin staat een houten berging met openslaande deuren en elektrapunten, ideaal voor extra opslag of het stallen van fietsen. Direct achter de berging bevindt zich een overkapping. Daarnaast beschikt de tuin over een achterom, waardoor je eenvoudig met de fiets of containers naar buiten kunt.
Afmetingen:
Woonkamer: ca. 32 m²
Keuken: ca. 6 m²
Badkamer: ca. 4 m²
Slaapkamer 1: ca. 20 m²
Slaapkamer 2: ca. 9 m²
Tussenkamer/ werkkamer: ca. 6,5 m²
Interesse gekregen in deze fijne gezinswoning? Neem contact op met Bij Viavesta Woningmakelaardij voor het inplannen van een bezichtiging!
Kenmerken
Overdracht
- Laatste vraagprijs
- € 375.000 kosten koper
- Vraagprijs per m²
- € 3.827
- Status
- Verkocht
Bouw
- Soort woonhuis
- Eengezinswoning, 2-onder-1-kapwoning
- Soort bouw
- Bestaande bouw
- Bouwjaar
- 1924
- Soort dak
- Mansarde dak bedekt met bitumineuze dakbedekking en pannen
Oppervlakten en inhoud
- Gebruiksoppervlakten
- Wonen
- 98 m²
- Externe bergruimte
- 9 m²
- Perceel
- 123 m²
- Inhoud
- 332 m³
Indeling
- Aantal kamers
- 4 kamers (3 slaapkamers)
- Aantal badkamers
- 1 badkamer en 1 apart toilet
- Badkamervoorzieningen
- Douche, dubbele wastafel, ligbad, en toilet
- Aantal woonlagen
- 2 woonlagen en een vliering
- Voorzieningen
- Buitenzonwering, dakraam, glasvezelkabel, en mechanische ventilatie
Energie
- Energielabel
- E
- Isolatie
- Grotendeels dubbelglas, HR-glas en vloerisolatie
- Verwarming
- Cv-ketel
- Warm water
- Cv-ketel
- Cv-ketel
- Remeha (gas gestookt combiketel uit 2015, eigendom)
Kadastrale gegevens
- GOUDA A 5412
- Kadastrale kaart
- Oppervlakte
- 117 m²
- Eigendomssituatie
- Volle eigendom
- GOUDA A 5410
- Kadastrale kaart
- Oppervlakte
- 6 m² (deelperceel)
- Eigendomssituatie
- Volle eigendom
Buitenruimte
- Ligging
- Aan rustige weg en in woonwijk
- Tuin
- Achtertuin
- Achtertuin
- 50 m² (8,90 meter diep en 5,60 meter breed)
- Ligging tuin
- Gelegen op het zuidoosten bereikbaar via achterom
Bergruimte
- Schuur/berging
- Vrijstaande houten berging
- Voorzieningen
- Elektra
Parkeergelegenheid
- Soort parkeergelegenheid
- Betaald parkeren en parkeervergunningen
Foto's 44
© 2001-2025 funda











































