
Omschrijving
Deze verzorgde hoekwoning is voorzien van een aanbouw met lichtstraat waardoor er een royale en lichte living is ontstaan. Verder is er een fraaie keuken, moderne badkamer en is er een garage aanwezig.
De woning is goed onderhouden en op diverse vlakken verbeterd. Zo is in 2023 de keuken vervangen. Verder is de woning voorzien van grotendeels HR++ beglazing en zijn er 10 zonnepanelen geplaatst. Dit resulteert dan ook in een energielabel A+! De woning heeft een rustige ligging in het dorp waarbij er een integraal kindcentrum aan de overkant van de woning ligt. Verder is het openbaar vervoer en de supermarkt binnen handbereik.
Indeling
Begane grond:
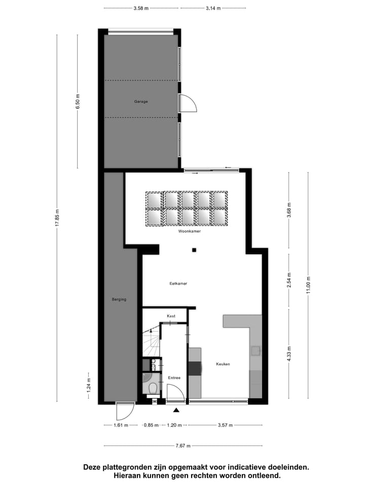
Entree/hal met de meterkast, voorraadkast en het toilet met fonteintje. De woonkamer is aan de achterzijde voorzien van een uitbouw met een lichtstraat. Hierdoor is de living aangenaam ruim en heerlijk licht. De woonkamer heeft een oppervlakte van circa 35m² en middels een schuifpui is er toegang tot de tuin en de garage.
Aan de voorzijde vindt u de moderne open keuken (2023) welke onder andere bestaat uit een inductiefornuis met dubbele oven, afzuigkap, koelkast, vriezer, vaatwasmachine en een Quooker. Aan het barretje kunt u heerlijk zitten.
De begane grond is voorzien van een plavuizen vloer met vloerverwarming en de wanden zijn voorzien van stucwerk. Het voorraam is voorzien van een elektrisch rolluik.
1e verdieping:
Overloop met toegang tot de vertrekken.
De hoofdslaapkamer (12m²) ligt aan de voorzijde van de woning en is voorzien van een rolluik.
Slaapkamers 2 en 3 vindt u aan de achterzijde van de woning en de oppervlakte van deze kamers is respectievelijk 12m² en 6,5m².
De nette badkamer bestaat uit een inloopdouche, toilet en een wastafelmeubel.
2e verdieping:
Overloop met de aansluitingen voor wasmachine/droger, opstellingen van de cv-ketel en mechanische ventilatie en bergruimte.
De slaapkamer is voorzien van een dakkapel en beschikt over knieschotbergingen.
Tuin:
Vanuit de verzorgde voortuin is er toegang tot de aangebouwde houten berging naast de woning.
De achtertuin is voorzien van bestrating en bereikbaar middels een achterom. Ook geeft de achtertuin toegang tot de garage. De garage is voorzien van elektra- en wateraansluiting. Ook is de garage voorzien van een elektrische deur.
Algemeen
Bouwjaar 1976
Inhoud 580m³.
De kozijnen zijn uitgevoerd in hardhout en grotendeels voorzien van HR++ glas en gedeeltelijk dubbel glas.
De woning wordt verwarmd middels een cv-combi (merk cv: Remeha, bouwjaar: 2011). Deze cv-combi is in eigendom levert ook het warme water in de woning. De begane grond is voorzien van vloerverwarming.
Energielabel A+
Op levering in overleg.
Bij woningen welke gebouwd zijn voor 1980 zal er een ouderdomsclausule in de koopovereenkomst worden opgenomen. Bij woningen welke gebouwd zijn voor 1993 zal er ook een asbestclausule in de koopovereenkomst worden opgenomen.
Kenmerken
Overdracht
- Oorspronkelijke vraagprijs
- € 395.000 kosten koper
- Laatste vraagprijs
- € 375.000 kosten koper
- Vraagprijs per m²
- € 3.049
- Status
- Verkocht
Bouw
- Soort woonhuis
- Eengezinswoning, hoekwoning
- Soort bouw
- Bestaande bouw
- Bouwjaar
- 1976
- Soort dak
- Zadeldak bedekt met pannen
Oppervlakten en inhoud
- Gebruiksoppervlakten
- Wonen
- 123 m²
- Overige inpandige ruimte
- 39 m²
- Perceel
- 184 m²
- Inhoud
- 580 m³
Indeling
- Aantal kamers
- 5 kamers (4 slaapkamers)
- Aantal badkamers
- 1 badkamer
- Badkamervoorzieningen
- Inloopdouche, toilet, en wastafelmeubel
- Aantal woonlagen
- 3 woonlagen
- Voorzieningen
- Mechanische ventilatie, rolluiken, schuifpui, en zonnepanelen
Energie
- Energielabel
- A+
- Isolatie
- Dakisolatie, dubbel glas, HR-glas, muurisolatie, vloerisolatie en volledig geïsoleerd
- Verwarming
- Cv-ketel en gehele vloerverwarming
- Warm water
- Cv-ketel
- Cv-ketel
- Remeha (gas gestookt combiketel uit 2011, eigendom)
Kadastrale gegevens
- GOUDSWAARD E 967
- Kadastrale kaart
- Oppervlakte
- 184 m²
- Eigendomssituatie
- Volle eigendom
Buitenruimte
- Ligging
- In woonwijk
- Tuin
- Achtertuin, voortuin en zijtuin
Bergruimte
- Schuur/berging
- Aangebouwde houten berging
- Voorzieningen
- Elektra
Garage
- Soort garage
- Aangebouwde stenen garage
- Capaciteit
- 1 auto
- Voorzieningen
- Elektrische deur, elektra en stromend water
Parkeergelegenheid
- Soort parkeergelegenheid
- Openbaar parkeren
Foto's 48
© 2001-2025 funda















































