
Omschrijving
De bouw van de karaktervolle appartementen in historisch Grave is al volop bezig, en binnenkort kun je genieten van de luxe van een eigentijds penthouse met een adembenemend uitzicht over de Maas en de historische daken van de binnenstad.
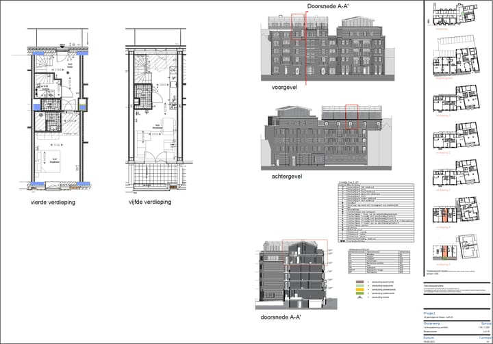
De flat van het voormalige Verzorgingstehuis “Maaszicht” is afgetopt en wordt door Ballast Nedam getransformeerd naar karaktervolle appartementen in 'pakhuis'-stijl. Op de vierde en vijfde laag van het gebouw wordt een vijftal penthouses gerealiseerd. Je kunt hier genieten met zowel buiten als binnen -door de grote raampartijen- een werkelijk fenomenaal uitzicht. De gemaakte impressies geven alvast een indruk.
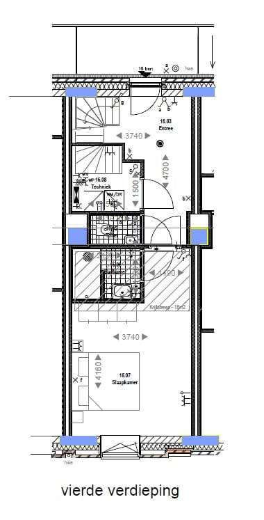
De vierde verdieping is nog onderdeel van het bestaande 'Maaszicht'-gebouw. Hier is vanuit de lift de entree en de slaapverdieping gesitueerd met 1 slaapkamer en een badkamer met inloopdouche en wastafel. Het toilet bevindt zich ook op deze verdieping.
De vijfde verdieping wordt geheel nieuw opgetrokken en heeft een bijzondere Loft-architectuur. De grote, lichte en hoge woonkamer en open keuken gecombineerd met de glazen wanden geven je meteen het gevoel van buiten wonen. Het terras is 7 m².
De appartementen worden gasloos gebouwd en zijn voorzien van een luchtwarmtepomp, elektrische boiler en zonnepanelen.
De woningen worden voorzien van een keuken met diverse inbouwapparatuur en een badkamer/toiletruimte (zie hiervoor de technische omschrijving). Het is overigens mogelijk eigen keuzes voor keuken en/of sanitair te maken.
Er is een berging in het souterrain.
Verder is er een gemeenschappelijke fietsenstalling.
De start van de opleveringen wordt in het eerste kwartaal van 2025 verwacht.
Projectnotaris: Barbara van Kampen in Oss.
Bekijk ook de impressievideo op de website van woonmakelaars.nl
HISTORISCH CENTRUM VAN GRAVE
De binnenstad van Grave heeft een gezellig centrum met vele winkeltjes, terrasjes en boetiekjes. De rijke historie van vestingstadje Grave is overal terug te zien en de binnenstad ademt dan ook sfeer. Er wordt genoeg georganiseerd in de binnenstad. Loop bijvoorbeeld eens over de wekelijkse markt op vrijdag, of bezoek het jaarlijkse Smartlappenfestival. De buitenrand van het centrum is een mooi contrast vergeleken met de binnenstad. Hier bevinden zich onder andere de Maas en de haven. Langs de Maas is het heerlijk om even uit te waaien en er zijn mooie wandel- en fietsroutes met prachtig uitzicht. Of trek er met de boot op uit. Nabije steden als Nijmegen en Den Bosch zijn goed te bereiken, zowel met auto als openbaar vervoer. Ook natuurgebieden zoals de Raamdal zijn gemakkelijk te bereiken.
GRAVE
Het is goed toeven in Grave. Een historisch vestingstadje met een levendige binnenstad, gelegen in de Brabantse gemeente Land van Cuijk. Gekenmerkt door sfeervolle straatjes, gezellige winkels en terrasjes, een mooie kade aan de Maas en een jachthaven bij het centrum. Met een wekelijkse versmarkt en regelmatig leuke evenementen valt er genoeg te beleven. Rondom Grave liggen de pittoreske kerkdorpen Velp, Escharen en Gassel en is volop natuurschoon. U wandelt en fietst zo naar een landelijke, rustige omgeving met weilanden, bossen en landgoederen. Ook zijn grotere steden zoals Nijmegen en Den Bosch binnen een half uur rijden bereikbaar. Kortom, Grave heeft voor iedereen iets te bieden.
*Deze informatie is met de grootst mogelijke zorg samengesteld. Toch is voor nieuwbouw en transformatie niet altijd te voorkomen dat de informatie afwijkt van het uiteindelijke resultaat. Dit kan met name gelden voor de de plattegronden en maatvoeringen. Hieraan kunnen dan ook geen rechten worden ontleend.
Kenmerken
Overdracht
- Laatste vraagprijs
- € 388.000 vrij op naam
- Vraagprijs per m²
- € 5.389
- Status
- Verkocht
Bouw
- Bouwjaar
- Na 2020
- Soort appartement
- Penthouse (appartement)
- Soort bouw
- Nieuwbouw
- Specifiek
- Beschermd stads- of dorpsgezicht
- Soort dak
- Tentdak
- Keurmerken
- SWK Garantiecertificaat
Oppervlakten en inhoud
- Gebruiksoppervlakten
- Wonen
- 72 m²
- Gebouwgebonden buitenruimte
- 7 m²
- Externe bergruimte
- 4 m²
- Inhoud
- 216 m³
Indeling
- Aantal kamers
- 2 kamers (1 slaapkamer)
- Aantal badkamers
- 1 badkamer en 1 apart toilet
- Badkamervoorzieningen
- Inloopdouche en wastafel
- Aantal woonlagen
- 2 woonlagen en een kelder
- Voorzieningen
- Lift en zonnepanelen
- Gelegen op
- 4e woonlaag
Energie
- Energielabel
- Niet beschikbaar
- Isolatie
- Dakisolatie, dubbel glas en muurisolatie
- Verwarming
- Warmtepomp
Buitenruimte
- Ligging
- In centrum
- Tuin
- Zonneterras
- Balkon/dakterras
- Dakterras aanwezig
Bergruimte
- Schuur/berging
- Inpandig
- Voorzieningen
- Elektra
Parkeergelegenheid
- Soort parkeergelegenheid
- Openbaar parkeren
Foto's 20
© 2001-2026 funda



















