
Omschrijving
NU OOK LEVENSLOOPBESTENDIG BESCHIKBAAR! Geniet van comfort en toekomstbestendig wonen, volledig afgestemd op uw wensen! De woning is flexibel ontworpen en kan zowel als comfortabele gezinswoning als levensloopbestendige woning worden opgeleverd.
De Eekhof is uniek gelegen aan de rand van dit mooie stadje in de Achterhoek. De locatie bevindt zich dichtbij het gezellige centrum, terwijl het tegelijkertijd een weids uitzicht biedt over het omringende landschap. U wandelt zo de natuur in, maar zit ook binnen enkele minuten op een gezellig terrasje op De Markt.
Op deze mooie plek worden vijf vrijstaande woningen gerealiseerd op ruime kavels.
KAVEL 4
Deze vrijstaande woning is gelegen op een perceel van circa 784 m² en de woonoppervlakte is 135 m². De woning is voorzien van een aangebouwde houten berging met een oppervlakte van 18 m² (of 6 m² levensloopbestendige optie).
De indeling is als volgt voor levensloopbestendig wonen:
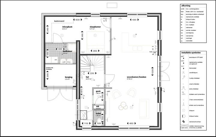
Begane grond:
Bij binnenkomst in de woning leidt de hal naar de trapopgang en een modern toilet. Van daaruit opent de deur naar de royale woonkamer, die aan de voorzijde van de woning ligt en door de grote ramen volop natuurlijk licht binnenlaat.
De woonkamer gaat over in de ruime slaapkamer welke ook voldoende ruimte heeft voor een inloopkast. Aangrenzend bevindt zich de badkamer, voorzien van een wastafel en een ruime douche, zodat alles praktisch en functioneel is.
Vanuit buiten is een praktische berging bereikbaar, ideaal voor het opbergen van fietsen, tuingereedschap of andere spullen, zodat de woning altijd netjes en georganiseerd blijft.
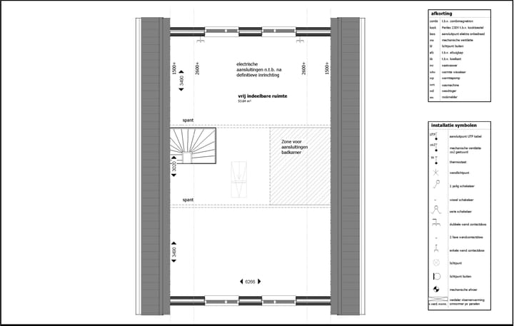
1e verdieping:
De eerste verdieping is volledig naar wens in te delen. Denk bijvoorbeeld aan twee comfortabele slaapkamers en een badkamer, of juist een royale hobbyruimte waar u ongestoord kunt genieten van uw passie.
Deze ideale indeling voor de levensloopbestendige woning combineert comfort, toegankelijkheid en toekomstbestendige oplossingen.
De indeling is als volgt:
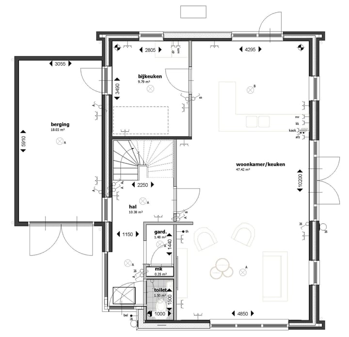
Begane grond:
Bij binnenkomst in de woning bevindt zich de hal met de trapopgang en een toilet. De royale woonkamer, die aan de voorzijde van de woning is gesitueerd, biedt veel ruimte en licht. Aangrenzend bevindt zich een praktische bijkeuken, waar de installaties netjes zijn weggewerkt. Vanuit de bijkeuken is de berging toegankelijk, ideaal voor het opbergen van diverse spullen en het creëren van extra ruimte.
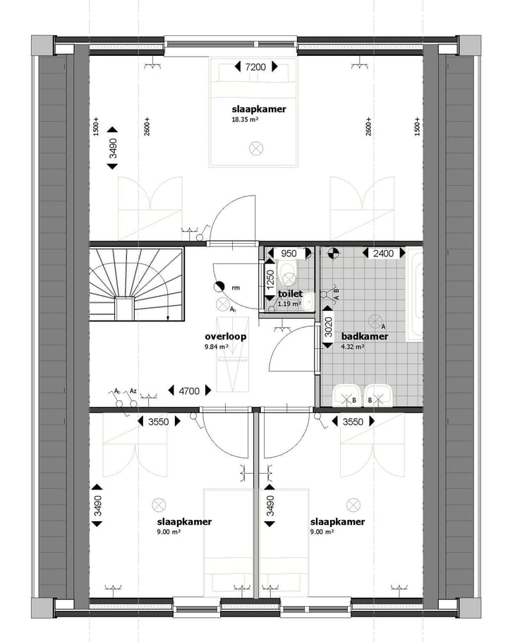
1e verdieping:
De overloop biedt toegang tot het toilet en leidt verder naar de drie slaapkamers. De badkamer is voorzien van een wastafel en een douche, alles functioneel en goed ingedeeld voor comfort en gemak.
In overleg kan de indeling volledig naar wens worden aangepast, zodat de woning optimaal aansluit bij persoonlijke voorkeuren. Bovendien zijn er diverse mogelijkheden voor een aanbouw, waardoor er extra ruimte gecreëerd kan worden voor bijvoorbeeld een werkkamer, extra slaapkamer of een ruime living.
Koopsom € 769.000,- v.o.n.
HET PROJECT
De 5 ruime woningen van De Eekhof wordt gerealiseerd op de plek waar tot voor kort een drankenhandel gevestigd was. De woningen zijn gesitueerd aan een hofje en zijn bereikbaar vanaf de Lichtenvoordseweg. Vanuit de woning wandelt u zo de natuur in, maar bent u ook binnen enkele minuten in het gezellige centrum van Groenlo.
De nieuwe woningen worden groen ingepast met hagen op de plekken waar een kavel grenst aan het openbaar gebied. Daarnaast wordt in het plan groene ruimte gemaakt ten behoeve van de opvang van hemelwater. De hagen en groene erfafscheidingen brengen een mooie samenhang in de al bestaande natuurlijke omgeving.
Zo krijgt De Eekhof een prachtige uitstraling. Leefgenot is gegarandeerd!
DE NAAM
De Eekhof is genoemd naar de strohulzenfabriek van de heer Dievelaar die van circa 1880 tot 1888 gevestigd was aan de Oude Aaltenseweg, enkele honderden meters van de plek waar de woningen gebouwd gaan worden. De strohulzen werden o.a. gebruikt om wijnfleshouders te maken, hierdoor heeft het ook een link met de drankenhandel die er de afgelopen jaren gevestigd was.
WONEN IN GROENLO
Groenlo is een kleine vestingstad met een roemruchte geschiedenis. De plaats is ontstaan rond het jaar 610 toen de Saksen zich in de Achterhoek vestigden. Op 2 december 1277 kreeg Groenlo, of Grol zoals het toen genoemd werd, stadsrechten en groeide de welvaart.
Groenlo vormde in de 16e en 17e eeuw een sterke vesting die herhaaldelijk werd belegerd. De herovering door Frederik Hendrik na het groots opgezette Beleg van Grol in 1627 wordt eens in de twee jaar op grote schaal nagespeeld met re-enactors uit de hele wereld en een groot deel van de bevolking van Groenlo als figuranten. Het stadje staat bekend om de bourgondische levensstijl en de vele evenementen die er jaarlijks worden georganiseerd. Zo zijn er meerdere cafe’s waar u terecht kunt voor een drankje en restaurants waar u goed kunt eten.
Groenlo heeft tal van voorzieningen. Er zijn basisscholen en een school voor voortgezet onderwijs. Daarbij kent het een rijk verenigingsleven; er zijn verschillende sportverenigingen, een zwembad en een grote carnavalsvereniging. Het heeft een klein maar gevarieerd winkelaanbod, een museum en een cultureel centrum. U bent echter ook binnen 10 minuten in Lichtenvoorde of Winterswijk en binnen 35 minuten in Enschede of Doetinchem voor meer winkelaanbod en cultuur.
De woningen
De woningen worden duurzaam en voor de toekomst gebouwd op ruime kavels met een oppervlakte van 500 tot 780 m². Ze hebben een eigentijds modern ontwerp en er is ruimte voor 4 slaapkamers. Subtiele verschillen geven iedere woning een eigen identiteit, waardoor De Eekhof een prachtige uitstraling krijgt die goed combineert met de natuurlijke omgeving.
Vanuit het basisontwerp zijn er diverse indelings- en uitbreidingsopties mogelijk.
De woningen zijn ook levensloopbestendig te realiseren waardoor ze geschikt zijn voor alle leeftijden. Zo maakt u het helemaal uw eigen woning waarin u snel thuis zult voelen.
De woningen worden gebouwd door Meekes Bouw BV te Groenlo met hoogwaardige materialen, voorzien van uitstekende isolatie en verwarmd door middel van een lucht-water warmtepomp. Regenwater wordt opgevangen in ondergrondse infiltratiekratten. De woningen voldoen hiermee aan de nieuwste wettelijke eisen.
U koopt dus een woning die duurzaam, energiezuinig, gasloos en comfortabel is. Met deze woning bent u helemaal klaar voor de toekomst!
Bent u als woningzoekende geïnteresseerd geraakt, dan kunt u voor meer informatie contact opnemen met Scheers Roes Makelaars.
Kenmerken
Overdracht
- Laatste vraagprijs
- € 769.000 vrij op naam
- Vraagprijs per m²
- € 5.696
- Status
- Verkocht
Bouw
- Bouwjaar
- Na 2020
- Soort woonhuis
- Eengezinswoning, vrijstaande woning
- Soort bouw
- Nieuwbouw
- Soort dak
- Zadeldak bedekt met pannen
- Toegankelijkheid
- Toegankelijk voor mensen met een beperking en toegankelijk voor ouderen
Oppervlakten en inhoud
- Gebruiksoppervlakten
- Wonen
- 135 m²
- Externe bergruimte
- 18 m²
- Perceel
- 784 m²
- Inhoud
- 560 m³
Indeling
- Aantal kamers
- 4 kamers (3 slaapkamers)
- Aantal badkamers
- 1 badkamer en 1 apart toilet
- Badkamervoorzieningen
- Douche, toilet, en wastafel
- Aantal woonlagen
- 2 woonlagen
- Voorzieningen
- Glasvezelkabel, mechanische ventilatie, en natuurlijke ventilatie
Energie
- Energielabel
- Niet beschikbaar
- Isolatie
- Dakisolatie, muurisolatie, vloerisolatie en volledig geïsoleerd
- Verwarming
- Warmtepomp
- Warm water
- Elektrische boiler
Kadastrale gegevens
- GROENLO B 5459
- Kadastrale kaart
- Oppervlakte
- 44 m² (deelperceel)
- Eigendomssituatie
- Volle eigendom
- GROENLO B 6623
- Kadastrale kaart
- Oppervlakte
- 700 m² (deelperceel)
- Eigendomssituatie
- Volle eigendom
- GROENLO B 5302
- Kadastrale kaart
- Oppervlakte
- 40 m² (deelperceel)
- Eigendomssituatie
- Volle eigendom
Buitenruimte
- Tuin
- Tuin rondom
Bergruimte
- Schuur/berging
- Aangebouwde houten berging
Parkeergelegenheid
- Soort parkeergelegenheid
- Op eigen terrein en openbaar parkeren
Foto's 19
© 2001-2026 funda


















