
Omschrijving
Op zoek naar een grote en moderne bovenwoning?
Kom dan langs bij de Lorentzstraat 15 B!
Op een mooie locatie, in de Grunobuurt en om de hoek van het Stadspark, vind je deze fraaie jaren '30 bovenwoning met 3 slaapkamers én dakterras.
De woning kenmerkt zich door ruimte (hoge plafonds) en veel lichtinval. Een ander groot voordeel is dat de woning in de loop der jaren volledig is verbouwd en gemoderniseerd. Ondanks de renovaties zijn de authentieke sfeer en karakteristieke eigenschappen wel bewaard gebleven.
Bovendien is de woning flink verduurzaamd. Zo is het dak (deels) geïsoleerd, zijn er 6 zonnepanelen aanwezig en is het pand voorzien van isolerende beglazing. De woning beschikt dan ook over een gunstig energielabel: C.
De woning bevindt zich in de populaire Grunobuurt. Het Stadspark bevindt zich op de hoek. Het Centraal Station en de gezellige binnenstad van Groningen bevinden zich op loopafstand. Bovendien ligt de woning dicht in de buurt van uitvalswegen richting de A7 en A28.
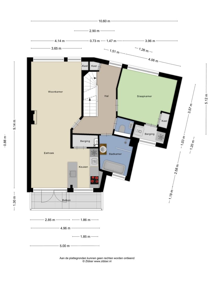
Indeling.
Derde verdieping:
Via een opgang/trappenhuis op de begane grond kom je bij de entree van de woning. Vanuit de entree kom je vervolgens, via een tweede trap, in de grote hal van het appartement.
Vanuit de centrale hal heb je toegang tot diverse ruimtes: een toilet, een slaapkamer/kantoorruimte met berging/wasruimte, de luxe badkamer en de woonkamer.
Aan de achterzijde van de woonkamer bevindt zich een royale eethoek met moderne open keuken. Via de openslaande deuren in de eethoek heb je toegang tot een balkon.
Vierde verdieping:
Op de tweede verdieping bevinden zich twee slaapkamers. Eén slaapkamer is op dit moment in gebruik als kantoor/werkruimte. Via beide slaapkamers heb je toegang tot een fraai en royaal dakterras.
Vanuit het kantoor is tevens de zolderruimte te bereiken.
Bijzonderheden:
- Ruime woning met veel lichtinval
- Moderne keuken en badkamer
- Deels voorzien van kunststofkozijnen
- Energielabel C
- Gunstige ligging
Enthousiast en nieuwsgierig geworden?
Bel of mail ons dan om een bezichtiging in te plannen!
Kenmerken
Overdracht
- Aangeboden sinds
- Aanvaarding
- In overleg
- Vraagprijs
- € 425.000 kosten koper
- Vraagprijs per m²
- € 3.664
- Status
- Onder bod
Bouw
- Soort appartement
- Bovenwoning
- Soort bouw
- Bestaande bouw
- Bouwjaar
- 1935
- Soort dak
- Samengesteld dak bedekt met bitumineuze dakbedekking en pannen
Oppervlakten en inhoud
- Gebruiksoppervlakten
- Wonen
- 116 m²
- Overige inpandige ruimte
- 3 m²
- Gebouwgebonden buitenruimte
- 23 m²
- Externe bergruimte
- 3 m²
- Inhoud
- 392 m³
Indeling
- Aantal kamers
- 4 kamers (3 slaapkamers)
- Aantal badkamers
- 1 badkamer en 1 apart toilet
- Badkamervoorzieningen
- Douche, ligbad, en wastafel
- Aantal woonlagen
- 2 woonlagen en een zolder
- Voorzieningen
- Zonnepanelen
- Gelegen op
- 2e woonlaag
Energie
- Energielabel
- Isolatie
- Dakisolatie en dubbel glas
- Verwarming
- Cv-ketel
- Warm water
- Cv-ketel
- Cv-ketel
- Remeha Avanta 35 C CW5 (gas gestookt combiketel uit 2019, eigendom)
Kadastrale gegevens
- GRONINGEN C 10938
- Kadastrale kaart
- Eigendomssituatie
- Volle eigendom
- GRONINGEN C 12354
- Kadastrale kaart
- Eigendomssituatie
- Volle eigendom
Buitenruimte
- Ligging
- Aan rustige weg en in woonwijk
- Tuin
- Zonneterras
- Balkon/dakterras
- Dakterras aanwezig en balkon aanwezig
Bergruimte
- Schuur/berging
- Vrijstaande stenen berging
Parkeergelegenheid
- Soort parkeergelegenheid
- Betaald parkeren en parkeervergunningen
VvE checklist
- Inschrijving KvK
- Ja
- Jaarlijkse vergadering
- Nee
- Periodieke bijdrage
- Nee
- Reservefonds aanwezig
- Nee
- Onderhoudsplan
- Nee
- Opstalverzekering
- Nee
Foto's 35
Plattegronden 4
© 2001-2026 funda






































