Dit huis op Funda: https://www.funda.nl/detail/koop/groningen/appartement-parkweg-74/89598630/

Parkweg 749725 EL GroningenRivierenbuurt
€ 295.000 k.k.
Omschrijving
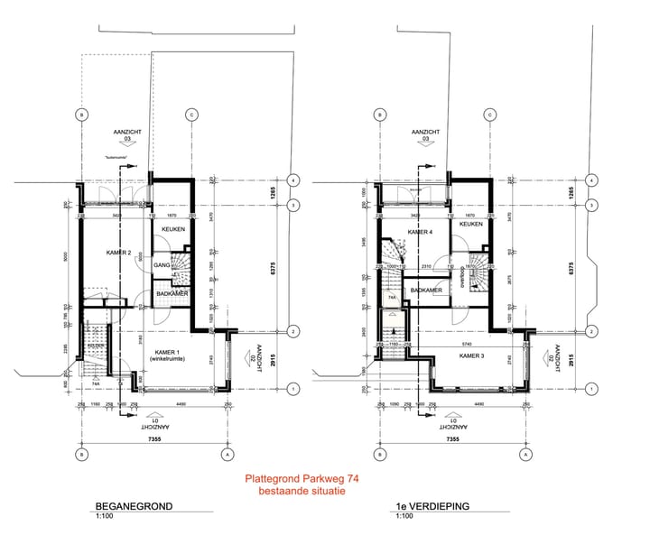
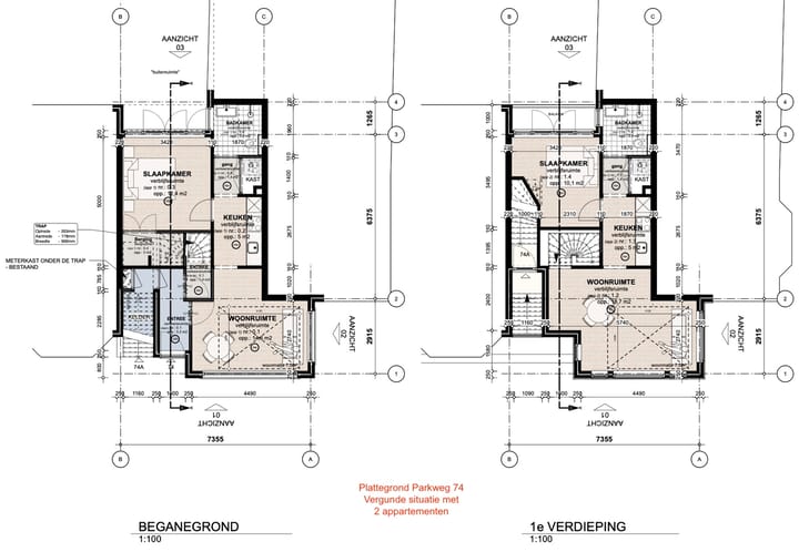
Interessant beleggingsobject met omgevingsvergunning voor het realiseren van twee appartementen. Het object is gelegen op de hoek van de Parkweg en de Rijstraat en bevindt zich op korte afstand van het centrum en het station. Het object is lang in gebruik geweest als kamerverhuurobject, maar is nu leeg. Het object dient gemoderniseerd te worden.
BIJZONDERHEDEN
- Beleggingsobject met mogelijkheden;
- Inclusief verleende omgevingsvergunning voor het omzetten naar twee appartementen;
- Meer informatie m.b.t. de omgevingsvergunning wordt op aanvraag verstrekt;
- Het object wordt leeg en vrij van huur en gebruik geleverd;
- Het object wordt verkocht 'As is, Where is';
- Alle getoonde maten en afmetingen in de advertentie zijn indicatief;
- Aanvaarding in overleg. Het object is per direct beschikbaar.
Kenmerken
Overdracht
- Aangeboden sinds
- Aanvaarding
- In overleg
- Vraagprijs
- € 295.000 kosten koper
- Vraagprijs per m²
- € 2.950
- Status
- Beschikbaar
- Bijdrage VvE
- € 0,00 per maand
Bouw
- Soort appartement
- Benedenwoning
- Soort bouw
- Bestaande bouw
- Bouwjaar
- 1938
- Soort dak
- Samengesteld dak bedekt met bitumineuze dakbedekking en pannen
Oppervlakten en inhoud
- Gebruiksoppervlakten
- Wonen
- 100 m²
- Overige inpandige ruimte
- 22 m²
- Gebouwgebonden buitenruimte
- 9 m²
- Externe bergruimte
- 7 m²
- Inhoud
- 270 m³
Indeling
- Aantal kamers
- 4 kamers (3 slaapkamers)
- Aantal badkamers
- 2 badkamers
- Badkamervoorzieningen
- Douche en toilet
- Aantal woonlagen
- 2 woonlagen en een kelder
- Voorzieningen
- Natuurlijke ventilatie
- Gelegen op
- Begane grond
Energie
- Energielabel
- F
- Isolatie
- Grotendeels dubbelglas
- Verwarming
- Cv-ketel
- Warm water
- Cv-ketel
- Cv-ketel
- Intergas (gas gestookt combiketel uit 2021, eigendom)
Kadastrale gegevens
- GRONINGEN C 11806
- Kadastrale kaart
- Eigendomssituatie
- Volle eigendom
Buitenruimte
- Ligging
- In woonwijk
- Tuin
- Achtertuin
- Balkon/dakterras
- Balkon aanwezig
Bergruimte
- Schuur/berging
- Vrijstaande stenen berging
Parkeergelegenheid
- Soort parkeergelegenheid
- Betaald parkeren, openbaar parkeren en parkeervergunningen
VvE checklist
- Inschrijving KvK
- Nee
- Jaarlijkse vergadering
- Nee
- Periodieke bijdrage
- Nee
- Reservefonds aanwezig
- Nee
- Onderhoudsplan
- Nee
- Opstalverzekering
- Nee
Foto's 41
© 2001-2025 funda








































