
Omschrijving
Sfeervolle en karakteristieke 30-jaren bovenwoning in Helpman, met 4 slaapkamers en twee balkons op het oosten.
Deze sfeervolle woning is gebouwd in 1936 en authentieke elementen zoals en-suitedeuren, suite kasten, paneeldeuren, marmeren schouwen, glas-in-lood ramen en granito vloer zijn behouden.
De woning is ideaal gelegen aan een van de mooiste lanen van Helpman met veel groen, rust en ruimte. Op loopafstand vind je winkelcentrum Helpman. Per fiets of met de bus ben je in een mum van tijd in de binnenstad en de uitvalswegen A28 en Ring Groningen zijn gemakkelijk bereikbaar.
Ook is er al extra aandacht besteed aan verduurzaming met o.a. spuwmuurisolatie, 8 zonnepanelen, dubbele beglazing en een nieuwe c.v. ketel.
ENERGIELABEL A.
De woning heeft nog wel aan de binnenzijde de nodige liefde en aandacht nodig, maar als je een beetje handig bent geeft dat juist de mogelijkheid om alles betaalbaar volledig naar eigen smaak te maken en er een echt droomhuis van te creëren.
Dit huis biedt alle ruimte en mogelijkheden om een sfeervolle bovenwoning te creëren, precies zoals je het zelf wilt. De perfecte kans om jouw woonwensen werkelijkheid te laten worden!
Ook is er een actieve V.v.E. met een bijdrage van € 110,-- per maand.
INDELING
Begane grond:
entree, hal met fraaie granitovloer, trapopgang.
1ste etage:
hal, provisiekast, toilet met fonteintje, originele kamer en suite ca. 41m2 met fraai suite deuren (glas in lood) - suite kasten - 2x authentieke schouw - openslaande deuren naar balkon - open keuken met deur naar balkon.
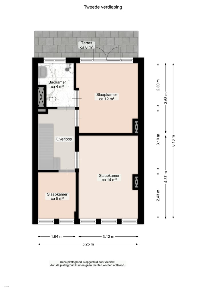
2de etage:
overloop, eenvoudige badkamer met douche - wastafel - wasmachine aansluiting, slaapkamer ca. 12m2 met openslaande deuren naar balkon, slaapkamer ca. 14m2, slaapkamer ca. 5m2.
3de etage:
vaste trap, ruime overloop met veel bergruimte en vaste kasten, slaapkamer ca. 14m2 met 2 dakvensters en bergruimte in het knieschot.
BIJZONDERHEDEN
- keuken is voorzien van vaatwasmachine - combi magnetron/oven - 5 pits gascomfort - afzuigkap - koelkast - vriezer.
- c.v. gas combi ketel.
Kenmerken
Overdracht
- Laatste vraagprijs
- € 349.000 kosten koper
- Vraagprijs per m²
- € 2.884
- Status
- Verkocht
- Bijdrage VvE
- € 110,00 per maand
Bouw
- Soort appartement
- Bovenwoning
- Soort bouw
- Bestaande bouw
- Bouwjaar
- 1936
- Soort dak
- Zadeldak bedekt met pannen
Oppervlakten en inhoud
- Gebruiksoppervlakten
- Wonen
- 121 m²
- Gebouwgebonden buitenruimte
- 15 m²
- Externe bergruimte
- 4 m²
- Inhoud
- 421 m³
Indeling
- Aantal kamers
- 5 kamers (4 slaapkamers)
- Aantal badkamers
- 1 badkamer en 1 apart toilet
- Badkamervoorzieningen
- Douche en wastafel
- Aantal woonlagen
- 3 woonlagen
- Voorzieningen
- Zonnepanelen
- Gelegen op
- 2e woonlaag
Energie
- Energielabel
- A
- Isolatie
- Dakisolatie, dubbel glas en muurisolatie
- Verwarming
- Cv-ketel
- Warm water
- Cv-ketel
- Cv-ketel
- Remeha (gas gestookt combiketel, eigendom)
Kadastrale gegevens
- HELPMAN M 6760
- Kadastrale kaart
- Eigendomssituatie
- Volle eigendom
Buitenruimte
- Ligging
- Aan rustige weg en in woonwijk
- Balkon/dakterras
- Balkon aanwezig
Parkeergelegenheid
- Soort parkeergelegenheid
- Betaald parkeren, openbaar parkeren en parkeervergunningen
VvE checklist
- Inschrijving KvK
- Ja
- Jaarlijkse vergadering
- Ja
- Periodieke bijdrage
- Ja (€ 110,00 per maand)
- Reservefonds aanwezig
- Ja
- Onderhoudsplan
- Nee
- Opstalverzekering
- Ja
Foto's 45
© 2001-2025 funda












































