
Omschrijving
Ruim, goed onderhouden appartement met tuin en veel bergruimte in geliefde wijk Helpman.
Appartement in een lommerrijke, rustige straat met parkeergelegenheid. Tien fietsminuten van centrum Groningen, gunstig gelegen ten opzichte van uitvalswegen. Nabij trein&busstation Europapark, winkels, scholen, sportvoorzieningen en -binnenkort- het Zuiderplantsoen.
INDELING:
De hal biedt toegang tot woonkamer, slaapkamer, keuken, bad/slaapkamer en toilet.
De woonkamer met eikenvloer is ruim, omvat een haard en een kleine serre die toegang geeft tot balkon en tuin. Er zijn twee royale, slim gelokaliseerde, inpandige kasten. In de hoek van de kamer is de trap naar het souterrain beneden speels weggewerkt.
De grote slaapkamer ligt aan de noordzijde. Twee ingebouwde kasten bieden erg veel opbergruimte.
De moderne keuken (2017) omvat een inductieplaat, oven, afzuigkap, vaatwasser en een losse koelvries combinatie (2022). De keuken geeft toegang tot een grote voorraadkast en tot het inpandige balkon en de tuin.
De badkamer heeft een recent opgeknapte douchecel(2022), een losstaand badkamermeubel, een aansluiting voor de wasmachine en toegang tot de tuin. Deze ruimte kan worden omgebouwd tot een extra slaapkamertje.
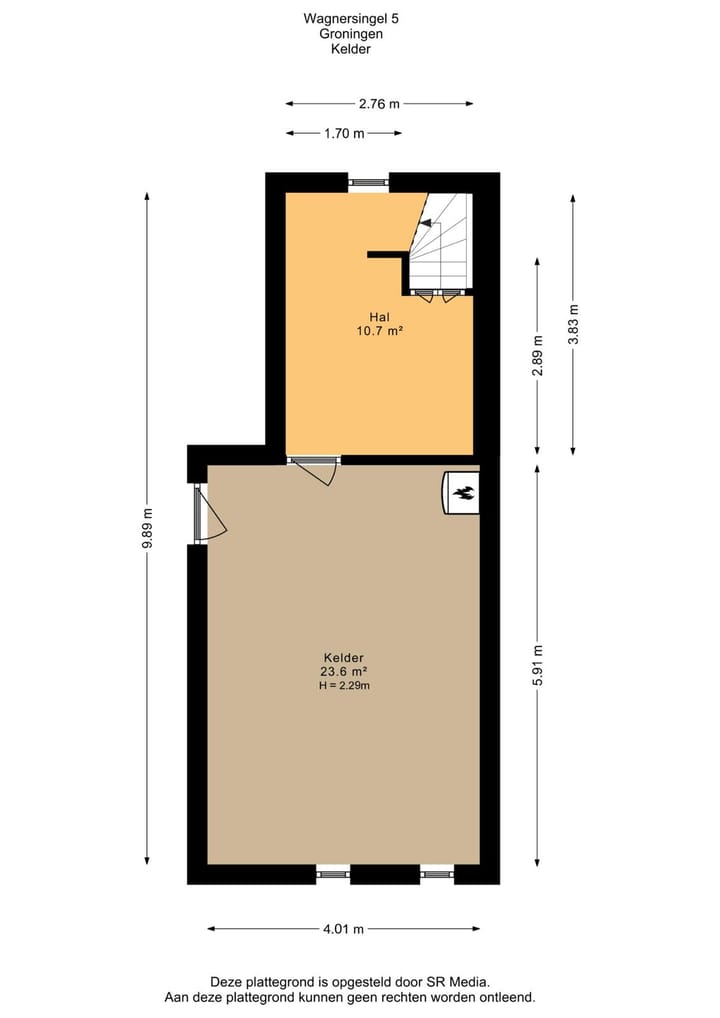
Onder de gehele woonkamer bevindt zich een groot souterrain. Momenteel is het een logeerkamer en een grote bergruimte. De benedenruimte kan worden ingericht als hobbyruimte, slaapkamer en/of locatie voor wasmachine en/of droger. Het souterrain geeft directe toegang tot de kelderhal van het appartementencomplex. Daar is ook een gedeelde fietsenschuur.
De mooie grote tuin ligt op het zuiden, verschaft elk moment van een zonnige dag ook schaduw en heeft een achterom. Het inpandige balkon en de serre geven het jaar rond gelegenheid tot ontbijt buiten dan binnen wel met uitzicht op de tuin
Er is een actieve VVE met een maandelijkse bijdrage van € 165,20.
Kenmerken
Overdracht
- Laatste vraagprijs
- € 349.000 kosten koper
- Vraagprijs per m²
- € 3.793
- Status
- Verkocht
- Bijdrage VvE
- € 165,20 per maand
Bouw
- Soort appartement
- Portiekflat
- Soort bouw
- Bestaande bouw
- Bouwjaar
- 1958
Oppervlakten en inhoud
- Gebruiksoppervlakten
- Wonen
- 92 m²
- Overige inpandige ruimte
- 24 m²
- Gebouwgebonden buitenruimte
- 7 m²
- Inhoud
- 330 m³
Indeling
- Aantal kamers
- 4 kamers (2 slaapkamers)
- Aantal woonlagen
- 2 woonlagen en een kelder
Energie
- Energielabel
- C
- Isolatie
- HR-glas
- Verwarming
- Cv-ketel
- Warm water
- Cv-ketel
- Cv-ketel
- 2002, eigendom
Buitenruimte
- Tuin
- Achtertuin en voortuin
Parkeergelegenheid
- Soort parkeergelegenheid
- Parkeervergunningen
VvE checklist
- Inschrijving KvK
- Ja
- Jaarlijkse vergadering
- Ja
- Periodieke bijdrage
- Ja (€ 165,20 per maand)
- Reservefonds aanwezig
- Ja
- Onderhoudsplan
- Ja
- Opstalverzekering
- Ja
Foto's 40
© 2001-2025 funda







































