Omschrijving

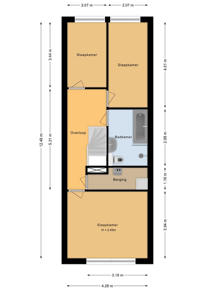
Wonen op een Toplocatie met Energielabel A – Stadstuin op het Zuidwesten Ben je op zoek naar een sfeervolle woning op loopafstand van het bruisende centrum van Groningen? Deze praktisch ingedeelde maisonnette op de begane grond biedt alles wat je zoekt: een moderne afwerking, veel licht, een zonnige stadstuin en een geweldige locatie in de geliefde Oosterpoortbuurt! Rustig wonen in een levendige wijk Deze maisonnette bevindt zich aan het Winschoterdiep in een rustige, doodlopende straat. De Oosterpoortbuurt staat bekend om zijn gezellige sfeer, charmante cafés en fijne eetgelegenheden. Bovendien ligt alles wat je nodig hebt binnen handbereik: - SPOT/De Oosterpoort – 2 minuten lopen - Buurtsupermarkt Plus – 5 minuten lopen - Centraal Station – 5 minuten fietsen - Grote Markt – 3 minuten fietsen - UMCG en Rijksuniversiteit Groningen – slechts 5 minuten fietsen Indeling van de woning Via de entree stap je binnen in de hal, waar je toegang hebt tot het toilet en de lichte woonkamer. Deze royale woonkamer straalt sfeer en comfort uit, met een prachtige houten vloer en veel natuurlijk licht. Vanuit hier bereik je via een openslaande deur de zonnige stadstuin. De tuin, gelegen op het zuidwesten, biedt een combinatie van betegeling en groen, een achterom en volop ruimte om van de zon te genieten. Aan de woonkamer grenst de moderne keuken, die voorzien is van veel kastruimte en inbouwapparatuur, zoals: - Inductiekookplaat - Afzuigkap - Vaatwasser - Combi-oven - Koel-/vriescombinatie Het eetgedeelte biedt plek voor een royale eettafel en is zowel vanuit de hal als de keuken bereikbaar. Via de trap bereik je de bovenverdieping met drie ruime slaapkamers. De hoofdslaapkamer is gesitueerd aan de voorzijde van de woning. De moderne badkamer is volledig betegeld en voorzien van alle gemakken: - Ligbad - Douche - Twee wastafels - Tweede toilet Bijzonderheden - Energielabel A - Bouwjaar: 2001 - Woonoppervlakte: ca. 105 m² (meetrapport beschikbaar) - Stadstuin op het zonnige zuidwesten, inclusief achterom - Mogelijkheid tot huur van een parkeerplaats in de ondergelegen garage (op basis van beschikbaarheid) - Eigen berging in de onderbouw - Warmte terugwin installatie - Actieve en gezonde VVE door PandGarant. Het bedrag aan servicekosten (incl. berging) is € 205,- per maand - Oplevering in overleg Jouw nieuwe thuis? Met zijn toplocatie, uitstekende indeling en moderne afwerking is deze maisonnette een buitenkans. Maak een afspraak en laat je verrassen door de ruimte, lichtinval en het wooncomfort!

Kenmerken

Overdracht

Laatste vraagprijs
€ 395.000 kosten koper
Vraagprijs per m²
€ 3.762
Status
Verkocht
Bijdrage VvE
€ 205,00 per maand

Bouw

Soort appartement
Maisonnette (appartement)
Soort bouw
Bestaande bouw
Bouwjaar
2001
Specifiek
Gestoffeerd
Soort dak
Plat dak bedekt met bitumineuze dakbedekking

Oppervlakten en inhoud

Gebruiksoppervlakten
Wonen
105 m²
Gebouwgebonden buitenruimte
1 m²
Externe bergruimte
7 m²
Inhoud
350 m³

Indeling

Aantal kamers
4 kamers (3 slaapkamers)
Aantal badkamers
1 badkamer en 1 apart toilet
Badkamervoorzieningen
Douche, dubbele wastafel, ligbad, en toilet
Aantal woonlagen
2 woonlagen
Voorzieningen
Buitenzonwering, mechanische ventilatie, en TV kabel
Gelegen op
1e woonlaag

Energie

Energielabel
Isolatie
Volledig geïsoleerd
Verwarming
Cv-ketel en warmte terugwininstallatie
Warm water
Cv-ketel
Cv-ketel
Ferroli (gas gestookt, eigendom)

Kadastrale gegevens

GRONINGEN B 11739
Kadastrale kaart
Eigendomssituatie
Volle eigendom

Buitenruimte

Ligging
Aan vaarwater, in centrum en in woonwijk
Tuin
Achtertuin
Achtertuin
24 m² (5,70 meter diep en 4,20 meter breed)
Ligging tuin
Gelegen op het zuidwesten bereikbaar via achterom

Bergruimte

Schuur/berging
Box
Voorzieningen
Elektra

Parkeergelegenheid

Soort parkeergelegenheid
Openbaar parkeren, parkeergarage en parkeervergunningen

VvE checklist

Inschrijving KvK
Ja
Jaarlijkse vergadering
Ja
Periodieke bijdrage
Ja (€ 205,00 per maand)
Reservefonds aanwezig
Ja
Onderhoudsplan
Ja
Opstalverzekering
Ja

Foto's 51

  • Foto 1 van Winschoterdiep 1-C
  • Foto 2 van Winschoterdiep 1-C
  • Foto 3 van Winschoterdiep 1-C
  • Foto 4 van Winschoterdiep 1-C
  • Foto 5 van Winschoterdiep 1-C
  • Foto 6 van Winschoterdiep 1-C
  • Foto 7 van Winschoterdiep 1-C
  • Foto 8 van Winschoterdiep 1-C
  • Foto 9 van Winschoterdiep 1-C
  • Foto 10 van Winschoterdiep 1-C
  • Foto 11 van Winschoterdiep 1-C
  • Foto 12 van Winschoterdiep 1-C
  • Foto 13 van Winschoterdiep 1-C
  • Foto 14 van Winschoterdiep 1-C
  • Foto 15 van Winschoterdiep 1-C
  • Foto 16 van Winschoterdiep 1-C
  • Foto 17 van Winschoterdiep 1-C
  • Foto 18 van Winschoterdiep 1-C
  • Foto 19 van Winschoterdiep 1-C
  • Foto 20 van Winschoterdiep 1-C
  • Foto 21 van Winschoterdiep 1-C
  • Foto 22 van Winschoterdiep 1-C
  • Foto 23 van Winschoterdiep 1-C
  • Foto 24 van Winschoterdiep 1-C
  • Foto 25 van Winschoterdiep 1-C
  • Foto 26 van Winschoterdiep 1-C
  • Foto 27 van Winschoterdiep 1-C
  • Foto 28 van Winschoterdiep 1-C
  • Foto 29 van Winschoterdiep 1-C
  • Foto 30 van Winschoterdiep 1-C
  • Foto 31 van Winschoterdiep 1-C
  • Foto 32 van Winschoterdiep 1-C
  • Foto 33 van Winschoterdiep 1-C
  • Foto 34 van Winschoterdiep 1-C
  • Foto 35 van Winschoterdiep 1-C
  • Foto 36 van Winschoterdiep 1-C
  • Foto 37 van Winschoterdiep 1-C
  • Foto 38 van Winschoterdiep 1-C
  • Foto 39 van Winschoterdiep 1-C
  • Foto 40 van Winschoterdiep 1-C
  • Foto 41 van Winschoterdiep 1-C
  • Foto 42 van Winschoterdiep 1-C
  • Foto 43 van Winschoterdiep 1-C
  • Foto 44 van Winschoterdiep 1-C
  • Foto 45 van Winschoterdiep 1-C
  • Foto 46 van Winschoterdiep 1-C
  • Foto 47 van Winschoterdiep 1-C
  • Foto 48 van Winschoterdiep 1-C
  • Foto 49 van Winschoterdiep 1-C
  • Foto 50 van Winschoterdiep 1-C
  • Foto 51 van Winschoterdiep 1-C

© 2001-2025 funda