Dit huis op Funda: https://www.funda.nl/detail/koop/groot-ammers/huis-standerdmolen-4/43959274/

Omschrijving
Ruime tussenwoning (bouwjaar 2003) met aanbouw van 2 meter en heerlijk ruime woonkamer van 37 m² met openslaande tuindeuren, open keuken, dakkapel en 3 dakramen op zolder, totaal maar liefst 5 slaapkamers en aparte wasruimte, bergzolder met vlizotrap, goed en keurig onderhouden woning, volledig geïsoleerd met 9 zonnepanelen (2011) met energielabel A, met zonnige achtertuin op het zuidwesten voorzien van stenen berging, veranda en houten vlonder, kindvriendelijke ligging
Overdracht woning per uiterlijk 1 december 2025
-Bouwjaar 2003
-Aanbouw van 2 meter diep, met 2 solar tubes in platte dak (2008)
-Ruime woningbrede woonkamer van maar liefst 37 m²
-Volledig geïsoleerd vanuit de bouw
-Energielabel A
-9 zonnepanelen (2011)
-Alle verdiepingen betonvloeren
-Hardhouten kozijnen met HR++ glas, dakkapel kunststof kozijn
-Voorzien van rolluik, screens en horren en zonnescherm
-Schilderwerk 2024
-Dakkapel, 3 dakramen zolder en vlizotrap (2012)
-5 slaapkamers
-Badkamer met ligbad incl douchehoek, toilet en wastafelmeubel
-Voorzolder met aparte wasruimte, spoelbak en CV-ketel
-Voortuin nieuw aangelegd in 2022
-Zonnige achtertuin op het zuidwesten met stenen berging, veranda met houten vlonder
-Kindvriendelijke ligging
-Goed onderhouden en keurig verzorgde woning
-Op het perceel aan de overzijde van de woning staat hoogstwaarschijnlijk de nieuwbouw van de Brede School en kinderopvang gepland
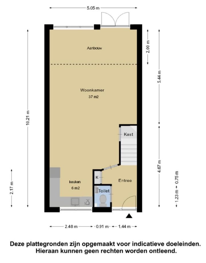
BEGANE GROND
Entree / hal
-Hal
-Meterkast
-Trapopgang
-Trendy zwarte deur met glas tussen hal en woonkamer
Toilet
-Duoblok
-Fonteintje
-Betegeld tot het plafond
-Mechanische ventilatie
Woonkamer – circa 37 m²
-Ruime, woningbrede woonkamer
-Aanbouw van 2 meter diep, met 2 solar tubes in platte dak (2008)
-Openslaande tuindeuren
-Trapkast
-Laminaatvloer / renovlies wanden / spuitwerk plafond
Keuken – circa 6 m²
-Hoekkeuken (2003)
-Voorzien van diverse inbouwapparatuur
-Koel-/vriescombinatie
-4-pitsgaskooktoestel met afzuiger
-Vaatwasser
-Hetelucht / stoomoven
-Diverse onder- en bovenkastjes
-Op dit moment nog vrij uitzicht aan de voorzijde
1E VERDIEPING
Slaapkamer I – circa 12 m²
-Achterzijde
-Screen
Slaapkamer II – circa 9 m²
-Voorzijde
-Rolluik
Slaapkamer III – circa 8 m²
-Achterzijde
-Screen
Badkamer – circa 5 m²
-Badkamer uit 2003
-Ligbad met douchemogelijkheid
-Toilet
-Wastafelmeubel
-Spiegelkast
-Mechanische ventilatie alsmede natuurlijke ventilatie via raam
-Groot formaat tegelwerk, betegeld tot het plafond
ZOLDER
Voorzolder
-Vaste trap naar zolder (standaard vanuit de bouw)
-Zolder opnieuw ingedeeld en verbouwd met dakkapellen en dakramen in 2012
-Opstelplaats wasmachine en droger
-Spoelbak
-CV-ketel
-Dakraam achterzijde
-Vlizotrap naar bergzolder (nokhoogte 1,52 m¹)
-Screen
Slaapkamer IV – circa 10 m²
-Dakkapel
-Vaste kast
-Mechanische ventilatie unit
-Bergruimte onder de schuine kap
-Voorzijde
-Screen
Slaapkamer V – circa 9 m²
-2 dakramen
-Bergruimte onder de schuine kap
-Achterzijde
-Screen
TUIN
-Kavel van 140 m² / kadaster E 1014
-Achtertuin afmeting 5,55 x 10,76 m (breedte x diepte), circa maten, gemeten vanaf de kadastrale kaart
-Zonnige achtertuin op het zuidwesten
-Zonnescherm elektrisch achtergevel aanbouw
-Stenen berging 2,29 x 3,83 = 9 m², met bergzolder
-Houten vlonder met veranda
-Buitenkraan achterzijde
-Vijver
-Keurig verzorgd en strak aangelegde voor- en achtertuin
-Voortuin nieuw aangelegd in 2022
-Voorzien van achterom via afsluitbare poort
-Kindvriendelijke ligging nabij speeltuintje
-Op het perceel aan de overzijde van de woning staat hoogstwaarschijnlijk de nieuwbouw van de Brede School en kinderopvang gepland. Kijk voor meer informatie daarover op projectenmolenlanden.nl
BOUWAARD / KENMERKEN
-Bouwjaar 2003
-Aanbouw achterzijde 2008
-Traditioneel gebouwd
-Woning is onderheid, betonpalen
-Vloeren: betonvloeren
-Gevels: gemetselde spouwmuurconstructie
-Dak: geïsoleerde dakplaten, met pannen gedekt. Plat dak aanbouw: bitumineuze dakbedekking
-Dakkapel voorzijde 2012
-Kozijnen: hardhouten kozijnen met HR++ glas (openslaande tuindeuren en dakramen HR glas). Dakkapel kunststof kozijnen met HR++ glas
-Schilderwerk 2024
-Isolatie: volledig geïsoleerd vanuit de bouw (vloer, gevels, dak en HR++ glas)
-Energielabel A
-Warm water en verwarming: CV-combiketel Intergas 2011
-Zonnepanelen: 9 stuks, 200 Wp, geplaatst 2011
-Meterkast: glasvezel aanwezig, aardlekschakelaar, analoge elektra- en gasmeter (géén slimme meters)
-Door het gehele huis zitten horren
-Rolluik op de 1e verdieping slaapkamer voorzijde (slaapkamer II), screen op de 1e verdieping slaapkamers achterzijde (slaapkamers I en III). Screens voor- en achterzijde op zolder
-Goed onderhouden en keurig verzorgde woning!
-Woonoppervlakte circa 120 m²
-Externe bergruimte circa 9 m²
-Inhoud circa 428 m³
Kenmerken
Overdracht
- Laatste vraagprijs
- € 399.000 kosten koper
- Vraagprijs per m²
- € 3.325
- Status
- Verkocht
Bouw
- Soort woonhuis
- Eengezinswoning, tussenwoning
- Soort bouw
- Bestaande bouw
- Bouwjaar
- 2003
- Soort dak
- Zadeldak bedekt met pannen
Oppervlakten en inhoud
- Gebruiksoppervlakten
- Wonen
- 120 m²
- Externe bergruimte
- 9 m²
- Perceel
- 140 m²
- Inhoud
- 428 m³
Indeling
- Aantal kamers
- 6 kamers (5 slaapkamers)
- Aantal badkamers
- 1 badkamer en 1 apart toilet
- Badkamervoorzieningen
- Ligbad, toilet, en wastafelmeubel
- Aantal woonlagen
- 3 woonlagen
- Voorzieningen
- Buitenzonwering, mechanische ventilatie, en zonnepanelen
Energie
- Energielabel
- Isolatie
- Dakisolatie, dubbel glas, HR-glas, muurisolatie, vloerisolatie en volledig geïsoleerd
- Verwarming
- Cv-ketel
- Warm water
- Cv-ketel
- Cv-ketel
- Intergas HR (gas gestookt combiketel uit 2011, eigendom)
Kadastrale gegevens
- GROOT-AMMERS E 1014
- Kadastrale kaart
- Oppervlakte
- 140 m²
- Eigendomssituatie
- Volle eigendom
Buitenruimte
- Ligging
- In woonwijk
- Tuin
- Achtertuin en voortuin
- Achtertuin
- 60 m² (10,76 meter diep en 5,55 meter breed)
- Ligging tuin
- Gelegen op het zuidwesten bereikbaar via achterom
Bergruimte
- Schuur/berging
- Vrijstaande stenen berging
- Voorzieningen
- Elektra
Foto's 49
© 2001-2026 funda
















































