Dit huis op Funda: https://www.funda.nl/detail/koop/grootebroek/huis-huisplaats-30/43873995/

Omschrijving
Modern, duurzaam en gasloos wonen
Een prachtige kans voor wie een zeer recentelijk gebouwde (2021 !) instapklare (hoek)woning zoekt, duurzaam en gasloos wil wonen en een rustige woonplaats zoekt, maar met alle voorzieningen op zeer korte loop-/fietsafstand van de woning.
Deze moderne hoekwoning heeft aan de achterzijde een grote serre-aanbouw (geheid) over de gehele breedte van de woning en een prachtige open keuken. Verder een drietal slaapkamers op de eerste verdieping en natuurlijk een badkamer. Op de tweede verdieping is een mooie vierde slaapkamer gerealiseerd. Een vijfde zou op deze verdieping zeker nog mogelijk zijn. Verder een kompacte, onderhoudsvrije en superknusse achtertuin met berging en op het zuidelijke dak liggen 13 zonnepanelen.
Wilt u deze unieke woonkans benutten? Yvonne van der Jagt Makelaardij nodigt u graag uit voor een bezichtiging.
INDELING
Als u aan komt…
…vallen meteen de mooie kleurnuances van de gevelbakstenen op. Van warm oranje naar roodbruin met hier en daar een vleugje fris grijs. En dat matcht dan weer met de kleur van de voordeur. De rollaag boven het slaapkamerkozijn is speels vooruitspringend gemetseld en verticaal verlengd waardoor het huis een statige ‘look’ krijgt. Het franse balkon aan de voorzijde is ook een leuk detail ! De voor-, zij-, en achtertuin zijn in zijn geheel keurig getegeld met mixed grey 60 x 40 tegels.
Welkom binnen!
Via de entree komt u in de hal met de toiletruimte, meterkast en trapopgang (met pvc bekleed) naar de eerste verdieping. Hier ervaart u al de fijne sfeer van het huis. Hoge plafonds en deuren, strakke vloeren en wanden. Uiteraard een meer dan keurige toiletruimte met wandcloset en fonteintje.
U bent thuis
Goede sfeer hier in de woonkamer! Op de gehele begane grond vloer (en ook op de eerste verdieping) ligt een mooie gietvloer in de kleur mixed graphite, voorzien van vloerverwarming (begane grond en eerste verdieping). Prachtig en gemakkelijk schoon te houden! Leuke zithoek, maar de serre lonkt; een geweldige verlenging van uw woonkamer van bijna drie meter! De voorzijde van de serre kan bijna in zijn geheel open, dus op warme dagen haalt u het zonnetje rechtstreeks in huis. En wordt het te warm, dan sluit u de serrezonwering. De kozijnen zijn uitgevoerd in zwart kunststof en op de vloer liggen dito plavuizen. In het dak zijn enkele dimbare led-spots aangebracht. Halverwege de woonkamer beschikt u nog over een grote trapkast.
Lekker kokkerellen
Heerlijke open keuken met een rechte unit langs beide wanden. Links het kunststof gemêleerde middengrijze werkblad met inductie kookplaat, centrale afzuiging en de vaatwasser. Erboven een speelse plank voor uw snuisterijen en een vleugje warmte in landelijke stijl is verwerkt in de off white wandtegel. Aan deze kant hebben de laden en kasten een eikenhoutprint. Rechts een stoer zwart hoog wandmeubel met daarin meer dan voldoende kastruimte en de overige inbouwapparatuur: een combi oven/magnetron en de koelvriescombinatie.
Buiten
De achtertuin is zo’n 8 meter diep en geheel voorzien van de al eerder genoemde sierbestrating. Aangezien u toch geen tijd heeft om een groene tuin te onderhouden is dit natuurlijk ideaal. Tuinset erin, hier en daar wellicht een plantenbak en genieten maar! Achter in de tuin staat een berging. Er is geen achterom, u verlaat de tuin langs de zijkant van de woning. Een buitenkraan is aanwezig.
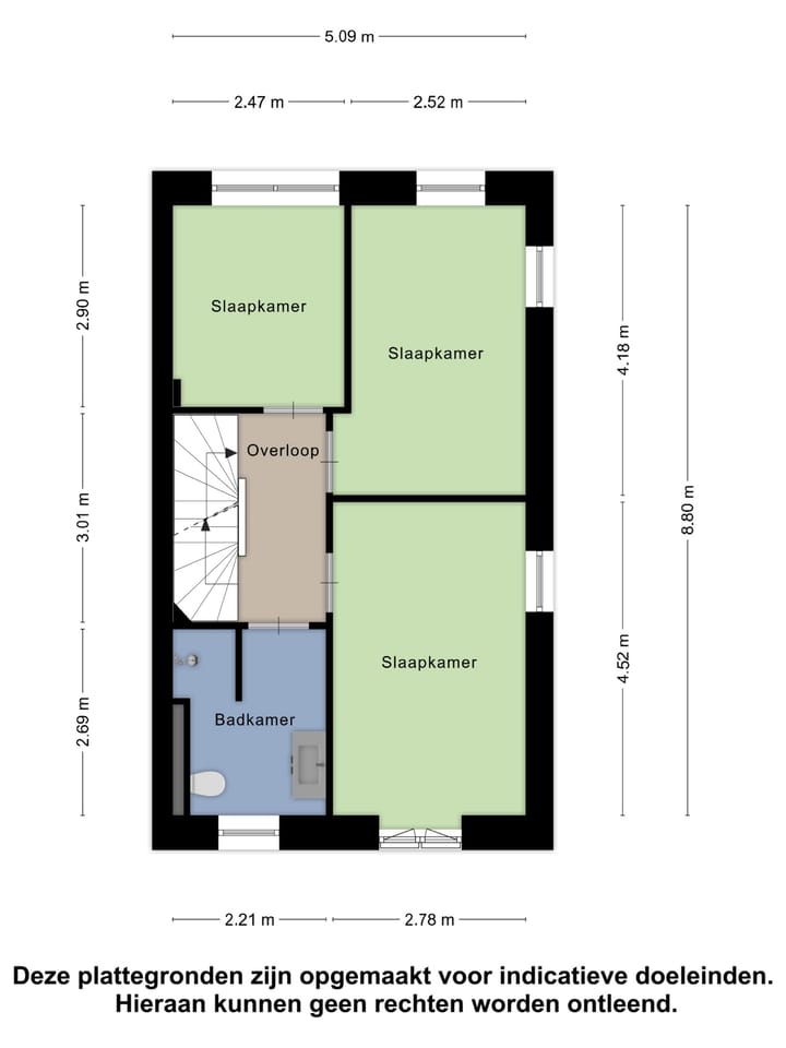
Drie fijne slaapkamers
De eerste verdieping heeft drie prima slaapkamers en een badkamer. Op deze gehele verdieping ligt dezelfde gietvloer (met vloerverwarming) als op de begane grond. De slaapkamer aan de voorzijde heeft twee openslaande deuren die tevens kunnen kiepen; er achter het franse balkon. Ook heeft deze slaapkamer een zijraam, zo ook één van de slaapkamers aan de achterzijde. Alle ramen hebben verduisterende rolgordijnen van goede kwaliteit. Deze blijven voor u achter.
Moderne badkamer
De moderne badkamer is gemêleerd grijs met wit getegeld, heeft een raam voorzien van folie waardoor uw privacy is gewaarborgd, u doucht in een fijne ruime inloopdouche met handdouchekop. Verder is er een wastafelmeubel (twee laden) met een belgisch hardstenen wastafel, een wandcloset en handdoekradiator.
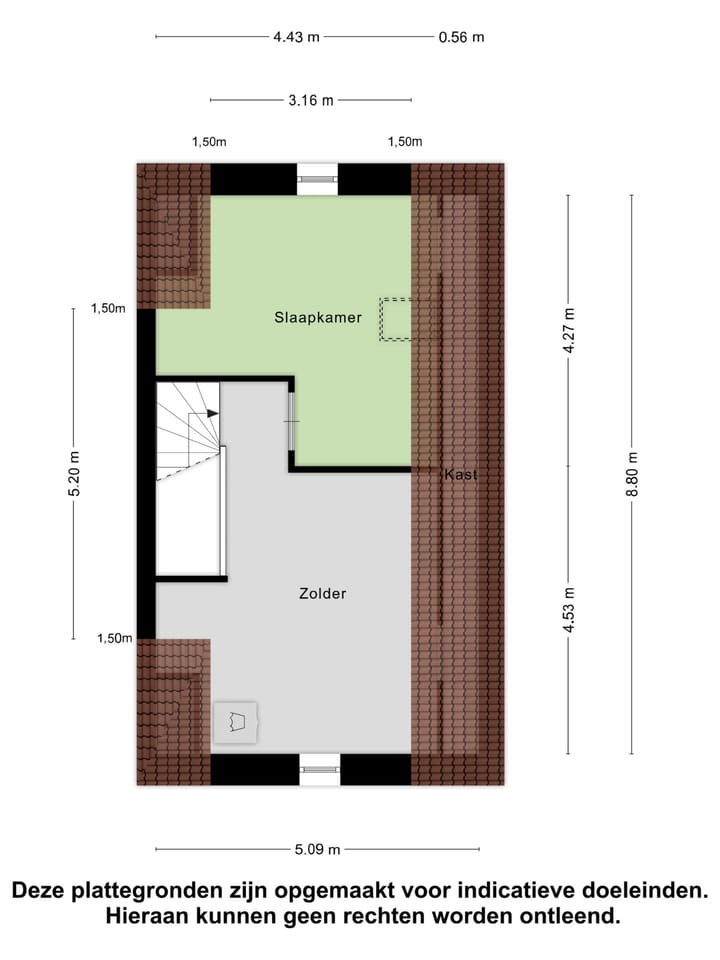
Vierde slaapkamer op de tweede verdieping
Er is een toffe vierde slaapkamer gerealiseerd op deze verdieping met voldoende daglicht middels twee ramen. Op de vloer ligt pvc. Er zou zelfs een vijfde slaapkamer mogelijk zijn op deze verdieping.
Het overige deel op deze verdieping is nu open. In de hoek staat de cilinder-unit (boilervat 200 liter) van de warmtepomp opgesteld, als ook het Buva ventilatiesysteem en de omvormer van de zonnepanelen. Ook zitten hier de aansluitingen voor de wasmachine en droger. U houdt nog voldoende opbergruimte over voor uw spullen.
Zonnepanelen
Op het zuidelijke dak liggen 13 stuks Canadian Solar zonnepanelen met ieder een vermogen van 305 Wp.
Gemeente Stede Broec / Dorpskern Grootebroek
Gemeente Stede Broec voorziet in alles voor het hele gezin: de woning ligt op enkele minuten loopafstand van een groot park. Een sporthal, een overdekt zwembad, een supermarkt, meerdere basisscholen en middelbaar onderwijs bevinden zich op 5 minuten fietsafstand. NS-station Bovenkarspel-Grootebroek, winkelcentrum het Streekhof en Theater Het Postkantoor bevinden zich op 10 minuten fietsafstand van de woning. Ook recreatiegebied het Streekbos, sportfaciliteiten en zorgvoorzieningen bevinden zich allemaal op 5 tot 10 minuten fietsafstand van de woning. Via de N307 rijdt u binnen 10 a 15 minuten op de A7 richting Amsterdam.
Kenmerken
Overdracht
- Laatste vraagprijs
- € 475.000 kosten koper
- Vraagprijs per m²
- € 3.800
- Status
- Verkocht
Bouw
- Soort woonhuis
- Eengezinswoning, hoekwoning
- Soort bouw
- Bestaande bouw
- Bouwjaar
- 2021
- Soort dak
- Zadeldak bedekt met pannen
- Keurmerken
- Energie Prestatie Advies
Oppervlakten en inhoud
- Gebruiksoppervlakten
- Wonen
- 125 m²
- Overige inpandige ruimte
- 16 m²
- Externe bergruimte
- 6 m²
- Perceel
- 156 m²
- Inhoud
- 504 m³
Indeling
- Aantal kamers
- 5 kamers (4 slaapkamers)
- Aantal badkamers
- 1 badkamer en 1 apart toilet
- Badkamervoorzieningen
- Inloopdouche, toilet, vloerverwarming, wastafel, en wastafelmeubel
- Aantal woonlagen
- 3 woonlagen
- Voorzieningen
- Frans balkon, glasvezelkabel, mechanische ventilatie, en zonnepanelen
Energie
- Energielabel
- A
- Isolatie
- Dakisolatie, HR-glas, muurisolatie, vloerisolatie en volledig geïsoleerd
- Verwarming
- Gedeeltelijke vloerverwarming en warmtepomp
- Warm water
- Elektrische boiler
Kadastrale gegevens
- STEDE BROEC E 3106
- Kadastrale kaart
- Oppervlakte
- 156 m²
- Eigendomssituatie
- Volle eigendom
Buitenruimte
- Balkon/dakterras
- Frans balkon aanwezig
- Ligging
- Aan rustige weg, beschutte ligging en in woonwijk
- Tuin
- Achtertuin
- Achtertuin
- 52 m² (8,00 meter diep en 6,50 meter breed)
- Ligging tuin
- Gelegen op het oosten
Bergruimte
- Schuur/berging
- Vrijstaande houten berging
- Voorzieningen
- Elektra
Parkeergelegenheid
- Soort parkeergelegenheid
- Openbaar parkeren
Foto's 42
© 2001-2025 funda









































