Dit huis op Funda: https://www.funda.nl/detail/koop/grootegast/huis-leeuwerik-31/43738769/

Omschrijving
In het kort:
twee-onder-een-kap - vier slaapkamers - label A - ruime garage - tuinschuur
Deze nette twee-onder-een-kap woning met extra grote garage en vier slaapkamers staat in een kindvriendelijke buurt met dichtbij een speeltuintje.
De bovenverdieping is voorzien van kunststofkozijnen en kunststofgevelbekleding.
Op het dak liggen 18 zonnepanelen.
In de tuin een mooie praktische tuinschuur.
Grootegast is een aantrekkelijk dorp om te wonen. Het heeft een ruim aanbod aan winkels, diverse scholen en sportvoorzieningen. Met de auto zijn Groningen en Drachten via de A7 prima bereikbaar.
Indeling:
Begane grond:
Overkapping, entree/hal, toilet, woonkamer, eetkeuken en praktische bijkeuken met toegang tot garage.
Eerste verdieping:
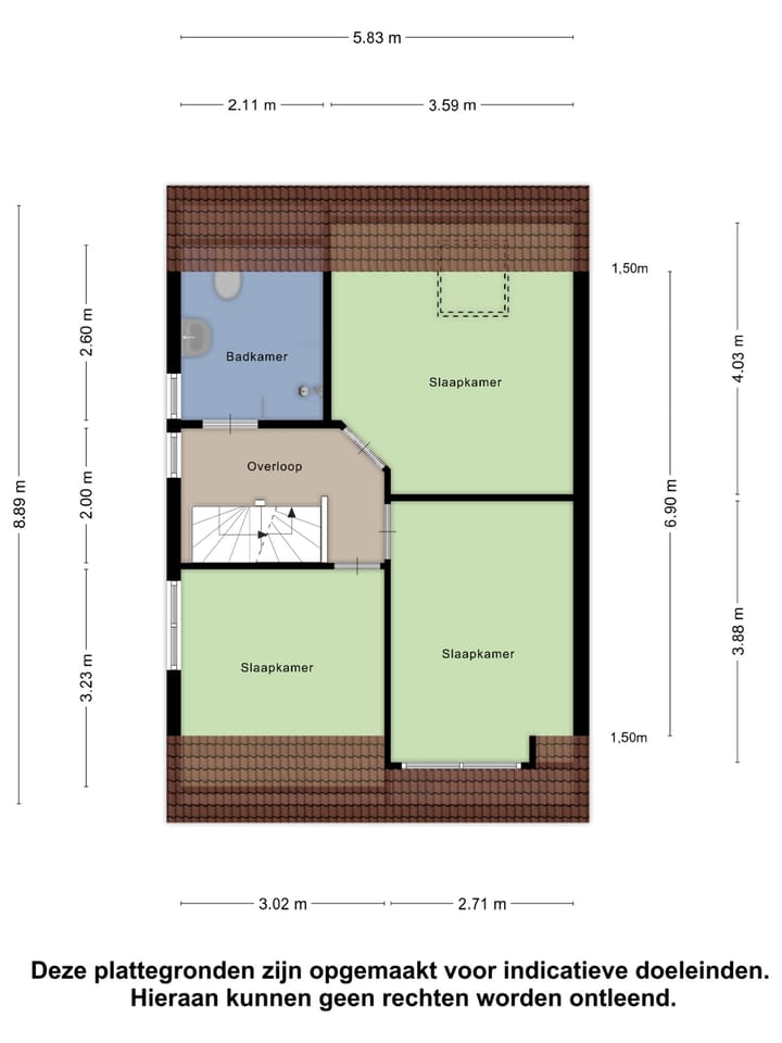
Overloop, drie slaapkamers en badkamer met douche, wastafel en toilet.
Tweede verdieping:
Overloop, bergruimte en slaapkamer.
Buitenruimte:
Keurig aangelegde voor- en achtertuin.
Naast de woning een oprit.
In de achtertuin een praktische houten tuinschuur.
In de buurt een leuke speeltuin.
Kenmerken
Overdracht
- Laatste vraagprijs
- € 299.000 kosten koper
- Vraagprijs per m²
- € 2.743
- Status
- Verkocht
Bouw
- Soort woonhuis
- Eengezinswoning, 2-onder-1-kapwoning
- Soort bouw
- Bestaande bouw
- Bouwjaar
- 1990
- Soort dak
- Zadeldak bedekt met pannen
Oppervlakten en inhoud
- Gebruiksoppervlakten
- Wonen
- 109 m²
- Overige inpandige ruimte
- 27 m²
- Gebouwgebonden buitenruimte
- 10 m²
- Externe bergruimte
- 11 m²
- Perceel
- 252 m²
- Inhoud
- 483 m³
Indeling
- Aantal kamers
- 5 kamers (4 slaapkamers)
- Aantal badkamers
- 1 badkamer en 1 apart toilet
- Aantal woonlagen
- 3 woonlagen
- Voorzieningen
- Zonnepanelen
Energie
- Energielabel
- A
- Isolatie
- Dubbel glas
- Verwarming
- Cv-ketel
- Warm water
- Cv-ketel
- Cv-ketel
- Gas gestookt combiketel
Kadastrale gegevens
- GROOTEGAST D 3802
- Kadastrale kaart
- Oppervlakte
- 252 m²
Buitenruimte
- Ligging
- Aan rustige weg en in woonwijk
- Tuin
- Achtertuin
- Achtertuin
- 144 m² (16,00 meter diep en 9,00 meter breed)
Garage
- Soort garage
- Aangebouwde stenen garage
- Capaciteit
- 1 auto
Parkeergelegenheid
- Soort parkeergelegenheid
- Op eigen terrein
Foto's 30
© 2001-2025 funda





























