
Omschrijving
Deze recent compleet gerenoveerde en uitgebouwde bungalow met groot souterrain ligt prachtig op een talud en heeft daardoor een extra mooi uitzicht! Bij de verbouwing is gebruik gemaakt van mooie moderne materialen en er is veel aandacht besteed aan duurzaamheid; het geheel is uitstekend geïsoleerd en voorzien van o.a. een hybride Cv-ketel met warmtepomp en zonnepanelen. Het souterrain biedt veel extra woonruimte die je multifunctioneel kan gebruiken (bijv. extra slaapkamers, kantoor, hobbyruimte en garage/stalling, of zelfs dubbele bewoning). De grote tuin met veel privacy maakt het woongenot van dit unieke object compleet.
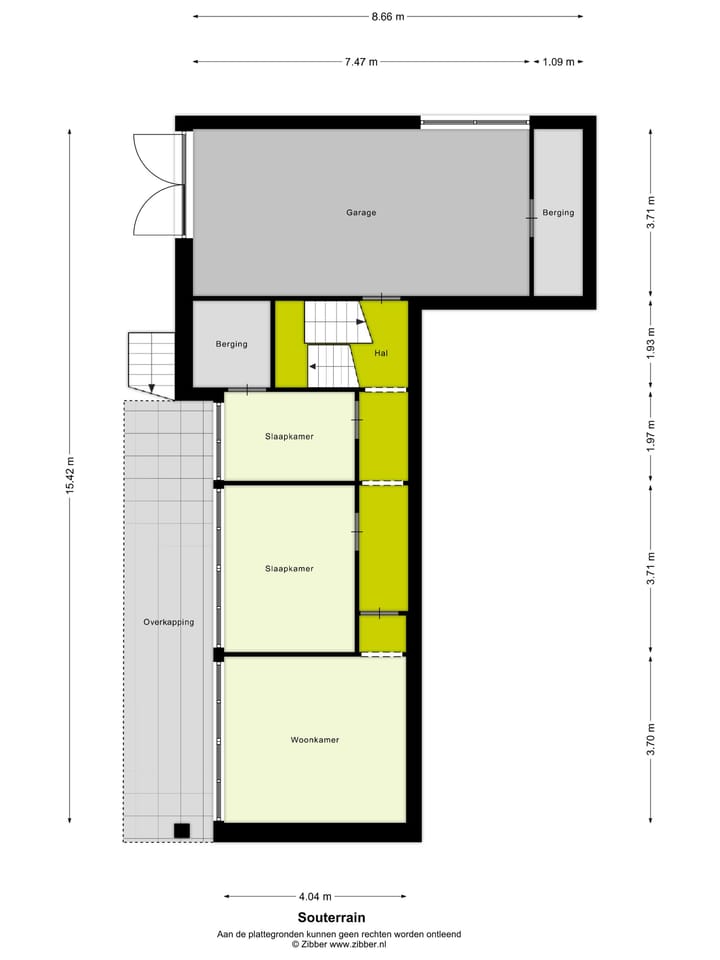
Souterrain:
Het souterrain heeft veel daglicht via de grote raampartijen. De indeling is als volgt: grote garage/stalling, CV ruimte met Hybride Cv-ketel merk: Nefit (2020) en warmtepomp merk Bosch (2020), voorts zijn hier nog 3 ruimtes met veel daglicht die als extra slaapkamers maar ook als kantoor of speelkamer en zelfs voor dubbele bewoning gebruikt kunnen worden.
Begane grond:
Via de architectonische zwevende trap aan de voorzijde van de woning bereik je het bordes en de voordeur. Zodra je de woning binnen gaat merk je gelijk de prettige ruimtes, de mooie sfeer en de goede lichtinval; de prachtige gietvloeren zijn een echte blikvanger. De woonkamer is lekker ruim en licht en heeft aan de voorzijde mooi uitzicht door de ligging op het talud en aan de achterzijde is er optimaal tuincontact door de grote raampartijen. De raampartijen aan de voorzijde zijn voorzien van elektrisch bedienbare screens. Via de schuifpui loop je gemakkelijk de tuin in. De open keuken met luxe inbouwcombi en XL-eiland biedt veel kast en laderuimte en er is uiteraard complete inbouwapparatuur inclusief een Quooker aanwezig. Via de hal is verder nog bereikbaar: toilet, masterbedroom met aansluitend de eigen badkamer met inloopdouche wastafel en toilet. Verder zijn er nog 2 kinderslaapkamers (voorzien van inbouwkasten), een 2e badkamer met ligbad en een dubbele wastafel en de praktische bijkeuken met wasmachineaansluiting aanwezig. Alle slaapkamers op deze woonlaag zijn voorzien van airco’s (2021).
Tuin:
De woning is omgeven door een grote tuin met onder meer volwassen bomen, gazon, terrassen en een tuinhuis. Er is veel privacy en je kunt hier heerlijk ontspannen. De achtertuin is ook vanuit de straatzijde middels een trap bereikbaar. Aan de straatzijde is een oprit voor 2 auto’s en direct voor het huis is veel extra parkeergelegenheid. In de voortuin is recent anti worteldoek aangebracht en nieuwe beplanting ter plaatse van het talud aan de linkerzijde.
Algemeen:
Deze woning is compleet verbouwd en aangebouwd in 2020. De aanbouw betreft de masterbedroom en de bijkeuken. Dakisolatie, spouwmuurisolatie, gevelisolatie inclusief nieuw stucwerk, aluminium kozijnen met dubbel hoogrendementsglas. Hybride Cv-ketel met warmtepomp (Nefit en Bosch). Vloerverwarming en koeling. 24 Zonnepanelen (2022), airco’s (2021). Er is een professionele inbraakbeveiligingsinstallatie en camerasysteem aanwezig. Vrije ligging doch op korte afstand van de dorpskern maar ook op korte afstand ten opzichte van de Maas en haar uiterwaarden en bosgebied. Goede aansluiting op Nederlandse en Duitse snelwegen.
• Bouwjaar: 1968
• Perceeloppervlakte: ca. 742 m²
• Gebruiksoppervlakte wonen: ca. 204 m²
• Oppervlakte overige inpandige ruimte: ca. 36 m²
• Oppervlakte gebouw gebonden buitenruimte: ca. 38 m²
• Oppervlakte externe bergruimte: ca. 7 m²
• Inhoud: ca. 890 m³
• Definitief energielabel: A
Kenmerken
Overdracht
- Laatste vraagprijs
- € 850.000 kosten koper
- Vraagprijs per m²
- € 4.167
- Status
- Verkocht
Bouw
- Soort woonhuis
- Eengezinswoning, vrijstaande woning
- Soort bouw
- Bestaande bouw
- Bouwjaar
- 1968
- Soort dak
- Plat dak bedekt met bitumineuze dakbedekking
Oppervlakten en inhoud
- Gebruiksoppervlakten
- Wonen
- 204 m²
- Overige inpandige ruimte
- 36 m²
- Gebouwgebonden buitenruimte
- 38 m²
- Externe bergruimte
- 7 m²
- Perceel
- 742 m²
- Inhoud
- 890 m³
Indeling
- Aantal kamers
- 8 kamers (6 slaapkamers)
- Aantal badkamers
- 2 badkamers en 1 apart toilet
- Badkamervoorzieningen
- Inloopdouche, 2 toiletten, 2 wastafels, en ligbad
- Aantal woonlagen
- 1 woonlaag en een kelder
- Voorzieningen
- Airconditioning, schuifpui, en zonnepanelen
Energie
- Energielabel
- A
- Isolatie
- Dakisolatie, driedubbel glas en muurisolatie
- Verwarming
- Cv-ketel, gedeeltelijke vloerverwarming en warmtepomp
- Warm water
- Cv-ketel
- Cv-ketel
- Nefit/Bosch (gas gestookt combiketel uit 2020, eigendom)
Kadastrale gegevens
- GRUBBENVORST C 3560
- Kadastrale kaart
- Oppervlakte
- 742 m²
- Eigendomssituatie
- Volle eigendom
Buitenruimte
- Ligging
- Aan rustige weg en vrij uitzicht
- Tuin
- Tuin rondom
Bergruimte
- Schuur/berging
- Vrijstaande houten berging
Garage
- Soort garage
- Inpandig
- Capaciteit
- 1 auto
- Voorzieningen
- Elektra
Parkeergelegenheid
- Soort parkeergelegenheid
- Op eigen terrein en openbaar parkeren
Foto's 41
© 2001-2025 funda








































