Dit huis op Funda: https://www.funda.nl/detail/koop/haaksbergen/huis-ridderspoor-16/43250548/

Ridderspoor 167483 AW HaaksbergenHassinkbrink
€ 445.000 k.k.
Omschrijving
Zes slaapkamers, een verrassende indeling én een geliefde ligging – dit huis tikt stiekem alle vakjes aan. In de fijne wijk Hassinkbrink staat deze geschakelde twee-onder-een-kapper uit 2000, met een woonoppervlakte van 154 m² en een perceel van 189 m². En ja, dat betekent lekker veel ruimte – binnen én buiten.
Wat direct opvalt? Eén van de slaapkamers ligt op de begane grond. Handig voor wie graag alles gelijkvloers wil houden, maar minstens zo interessant als thuiskantoor, speelkamer of praktijkruimte. En over praktijkruimtes gesproken: die is er dus óók nog – een aparte ruimte die op dit moment die functie vervult, maar zich net zo goed leent als berging of hobbyruimte.
Tel daar de kindvriendelijke omgeving, de goede bereikbaarheid én de nabijheid van scholen en winkels bij op, en je snapt: dit is zo’n huis dat maar zelden op de markt komt.
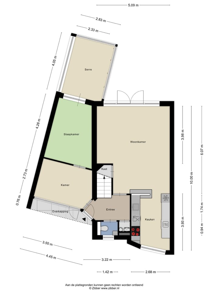
Binnenkomen voelt hier meteen goed. Je stapt binnen in de hal waar je toegang hebt tot het toilet, de woonkamer én die multifunctionele ruimte op de begane grond. Vanuit daar loop je door naar een slaapkamer, die op zijn beurt weer direct verbonden is met de serre. Een heerlijke plek waar je het hele jaar door kunt genieten van daglicht en uitzicht op de tuin.
De woonkamer is ruim en licht, openslaande deuren verbinden binnen moeiteloos met buiten. De open keuken is een echte blikvanger: voorzien van een gezellig barretje en luxe inbouwapparatuur, en bovendien genoeg kastruimte voor al je keukenspullen.
Op de eerste verdieping vind je drie ruime slaapkamers en een vierde, wat kleinere kamer die je moeiteloos inricht als thuiswerkplek, strijkruimte of inloopkast. De badkamer is stijlvol afgewerkt met een dubbele wastafel en een royale inloopdouche.
En dan de tweede verdieping: bereikbaar met een vaste trap, en verrassend ruim. Hier vind je nóg een slaapkamer en een heerlijk dakterras.
Welkom in Hassinkbrink – een wijk waar het gezinsleven centraal staat. Autoluwe straten zorgen voor rust en veiligheid, terwijl kinderen zich uitleven in de speeltuintjes of op het schoolplein van de basisschool om de hoek. Ook een kinderdagverblijf is dichtbij. Voor je boodschappen hoef je niet ver: het centrum ligt op nog geen 600 meter afstand, dus wandelend of op de fiets sta je binnen no-time bij de bakker of supermarkt.
De tuin is strak aangelegd en onderhoudsarm. De serre zorgt ervoor dat je het gehele jaar kunt genieten van het buitenleven. Dankzij de handige achterom is ook de fiets of container zo op z’n plek.
Bijzonderheden op een rij:
- Bouwjaar: 2000
- Energielabel: B
- Woonoppervlakte: 154 m²
- Perceeloppervlakte: 189 m²
- Maar liefst 6 slaapkamers, waarvan 1 op de begane grond
- Praktijkruimte op de begane grond (ook te gebruiken als berging of hobbyruimte)
- Dakkapellen voor extra ruimte en licht
- Gelegen in de kindvriendelijke wijk Hassinkbrink, op loopafstand van het centrum;
- Aanvaarding in overleg;
- Bij koop is een waarborgsom/bankgarantie vereist van 10% van de koopsom
- Mogelijkheid tot hypotheek met NHG (Nationale Hypotheek Garantie)
- In de koopovereenkomst wordt een niet-zelf-bewoningsclausule en de as is, where is clausule opgenomen;
- Deze presentatie is informatief en geheel vrijblijvend. Aan eventuele onjuistheden kunnen geen rechten worden ontleend.
Ben je enthousiast geworden? Wacht dan niet te lang! Maak een afspraak voor een bezichtiging en kom met eigen ogen ontdekken hoe fijn het hier wonen is. Wie weet stap jij straks je nieuwe thuis binnen.
Kenmerken
Overdracht
- Aangeboden sinds
- Aanvaarding
- In overleg
- Vraagprijs
- € 445.000 kosten koper
- Vraagprijs per m²
- € 2.890
- Status
- Beschikbaar
Bouw
- Soort woonhuis
- Eengezinswoning, geschakelde 2-onder-1-kapwoning
- Soort bouw
- Bestaande bouw
- Bouwjaar
- 2000
- Soort dak
- Samengesteld dak bedekt met pannen
Oppervlakten en inhoud
- Gebruiksoppervlakten
- Wonen
- 154 m²
- Gebouwgebonden buitenruimte
- 23 m²
- Externe bergruimte
- 4 m²
- Perceel
- 189 m²
- Inhoud
- 546 m³
Indeling
- Aantal kamers
- 9 kamers (6 slaapkamers)
- Aantal badkamers
- 1 badkamer en 1 apart toilet
- Badkamervoorzieningen
- Douche, dubbele wastafel, toilet, en wastafelmeubel
- Aantal woonlagen
- 3 woonlagen
- Voorzieningen
- Buitenzonwering, mechanische ventilatie, en natuurlijke ventilatie
Energie
- Energielabel
- Isolatie
- Dubbel glas en volledig geïsoleerd
- Verwarming
- Cv-ketel
- Warm water
- Cv-ketel
- Cv-ketel
- Gas gestookt uit 2020, eigendom
Kadastrale gegevens
- HAAKSBERGEN B 4885
- Kadastrale kaart
- Oppervlakte
- 189 m²
- Eigendomssituatie
- Volle eigendom
Buitenruimte
- Ligging
- Aan rustige weg en in woonwijk
- Tuin
- Achtertuin en voortuin
- Achtertuin
- 72 m² (9,00 meter diep en 8,00 meter breed)
- Ligging tuin
- Gelegen op het noorden
Bergruimte
- Schuur/berging
- Vrijstaande houten berging
- Voorzieningen
- Elektra
Parkeergelegenheid
- Soort parkeergelegenheid
- Op eigen terrein
Bedrijfsruimte
- Praktijkruimte
- 9 m², inpandig
Foto's 35
© 2001-2026 funda


































