
Omschrijving
Dit goed ingedeelde twee (voormalig 3) kamer appartement, met balkon aan het park, ligt op de vierde en hoogste verdieping van een goed onderhouden appartementencomplex. Vanuit het appartement heb je een fantastisch weids uitzicht over het Engelandpark! Het complex is tevens voorzien van een lift.
OMGEVING EN BEREIKBAARHEID
Het complex is zo gesitueerd dat je op de fiets in slechts 10 minuten in de historische binnenstad van Haarlem bent. De diverse aansluitingen richting Amsterdam, Hoofddorp en luchthaven Schiphol, zijn vlakbij, waardoor het meeste in 15 minuten te bereiken is. Parkeren voor de deur is gratis! Op loopafstand tref je tevens diverse bus verbindingen
Winkelcentrum Schalkwijk ligt op loopafstand en biedt een diversiteit aan leuke eettentjes, supermarkten, een bioscoop en nog veel meer. In de Markthal kan je dagelijks een ruim assortiment aan lekkernijen en kruiden kopen. In de omgeving tref je ook diverse scholen en kinderdagverblijven.
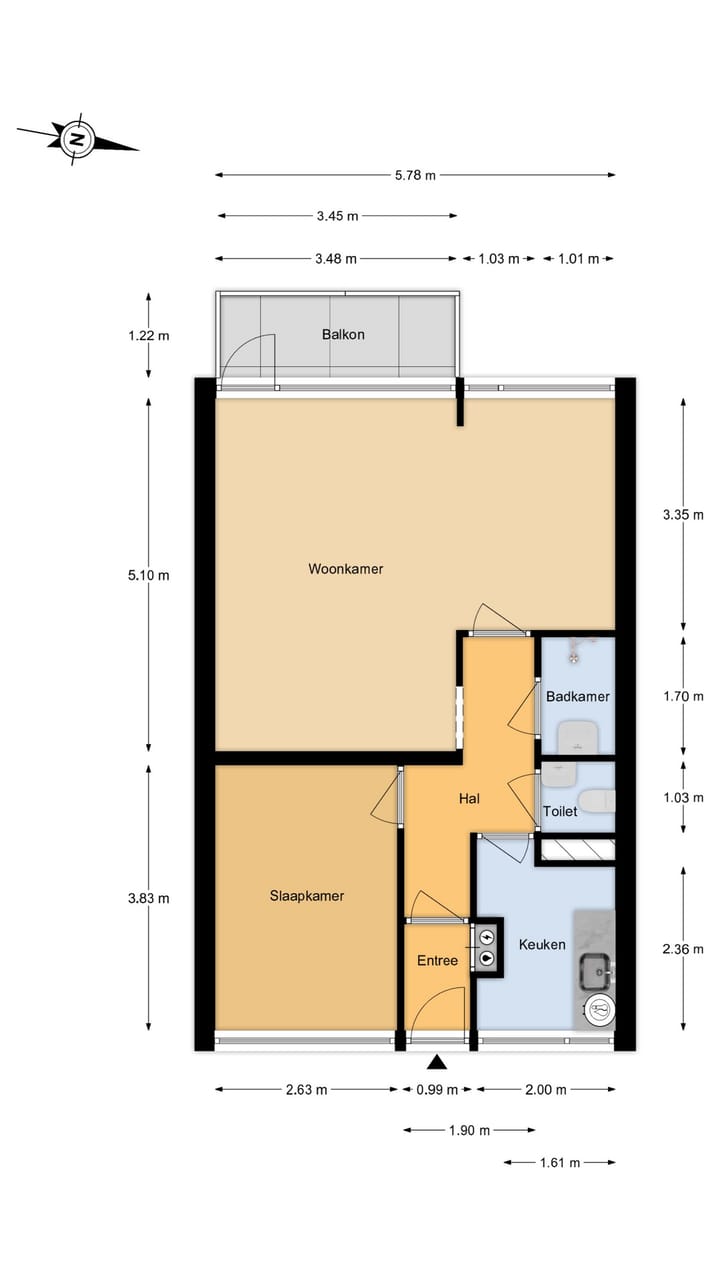
INDELING (zie plattegronden)
Entree van het appartement op de 4e verdieping. Entree, hal, meterkast en toegang tot alle vertrekken. Apart toilet. Zowel de keuken als de slaapkamer zijn gesitueerd aan de galerijzijde. De dichte keuken is voorzien een keukenblok met een gootsteen en boiler. Het balkon (west) grenst aan de heerlijk ruime en lichte woonkamer. De badkamer is voorzien van een douche en wastafel.
Separate berging in de onderbouw.
BIJZONDERHEDEN
- Fantastisch weids uitzicht over park;
- Ruime slaapkamer;
- Balkon op het westen;
- Ruime berging in de onderbouw;
- Verwarming d.m.v. blokverwarming en warmwater d.m.v. eigen boiler;
- Complex voorzien van lift;
- Duinen en strand en het gezellige centrum van Haarlem op fietsafstand;
- Diverse clausules van toepassing: Zuiverings-, Ouderdoms-, Milieu- (bodemgesteldheid), Waterhuishouding-, Asbest-, Funderings-, As-is-where-is- en niet-zelfbewoondclausule. Deze clausules worden in de brochure verder toegelicht
- Startersvrijstelling overdrachtsbelasting van toepassing en voordeel overdrachtsbelasting voor verkoper;
- Projectnotaris NU-notarissen;
- Oplevering in overleg.
VERENIGING VAN EIGENAARS
De actieve Vereniging van Eigenaars is genaamd "Vereniging Van Eigenaars VvE complex Engelandlaan 1242 t/m 1292 (Even) te Haarlem" en wordt professioneel beheerd door Amstarr VvE beheer. De maandelijkse bijdrage is €129,75 (woning) en €18,16 (berging). Voorschot stookkosten €82,50 (gebaseerd op gebruik voormalig huurder). Er is een MJOP aanwezig.
EIGENDOM
De woning is gelegen op eigen grond.
DUURZAAMHEID
Dit woning beschikt over energielabel G.
Wil je weten hoe je deze woning kunt verduurzamen? Kijk verderop in de brochure waar je aan kunt denken en wat je kunt doen.
KADASTRALE AANDUIDING
a. het appartementsrecht, rechtgevende op het uitsluitend gebruik van de woning gelegen te 2034 GN Haarlem, Engelandlaan 1292, kadastraal bekend gemeente Haarlem II, sectie Y, complexaanduiding 2364A, appartementsindex 1, uitmakende het 55/2773ste aandeel in de gemeenschap
b. het appartementsrecht, rechtgevende op het uitsluitend gebruik van de berging gelegen te Haarlem, Engelandlaan (ongenummerd), kadastraal bekend gemeente Haarlem, sectie Q, complexaanduiding 1878, appartementsindex 46, uitmakende het 9/2773ste aandeel in de gemeenschap.
----------------------------------------------------------------------
This well-laid-out two-room (formerly three-room) apartment with a balcony overlooking the park is located on the fourth and top floor of a well-maintained apartment complex. The apartment offers a fantastic panoramic view of the Engelandpark! The complex also features an elevator.
SURROUNDINGS AND ACCESSIBILITY
The complex is ideally situated, just a 10-minute bike ride from the historic center of Haarlem. It is conveniently close to various connections to Amsterdam, Hoofddorp, and Schiphol Airport, making most destinations reachable within 15 minutes. Parking in front of the building is free! Additionally, several bus connections are within walking distance.
The Schalkwijk shopping center is also within walking distance and offers a variety of delightful eateries, supermarkets, a cinema, and much more. The Market Hall provides a daily selection of delicious treats and spices. The area is home to several schools and daycare centers.
LAYOUT (see floor plans)
Entrance to the apartment on the 4th floor. Entry, hallway, meter cupboard, and access to all rooms. Separate toilet. Both the kitchen and bedroom are located on the gallery side. The closed kitchen is equipped with a countertop, sink, and boiler. The west-facing balcony adjoins the wonderfully spacious and bright living room. The bathroom features a shower and sink.
Separate storage space in the basement.
FEATURES
- Fantastic panoramic view of the park;
- Spacious bedroom;
- West-facing balcony;
- Large storage room in the basement;
- Heating via block heating and hot water via private boiler;
- Complex equipped with an elevator;
- Dunes, beach, and Haarlem's lively city center are within biking distance;
- Various clauses apply: Sewage, Age, Environmental (soil condition), Water Management, Asbestos, Foundation, and Non-Owner-Occupied clauses. These are further explained in the brochure;
- Starter's exemption from transfer tax and seller's transfer tax benefit apply;
- Delivery in consultation.
OWNERS' ASSOCIATION
The active Owners' Association is called "Owners' Association VvE Complex Engelandlaan 1242 to 1292 (Even) in Haarlem" and is professionally managed by Amstarr VvE Management. The monthly contribution is €129.75 (apartment) and €18.16 (storage). Advance heating costs are €82.50 (based on usage by the previous tenant). A multi-year maintenance plan (MJOP) is in place.
OWNERSHIP
The property is located on freehold land.
SUSTAINABILITY
This property has an energy label G.
Would you like to know how to make this home more sustainable? Refer to the brochure for suggestions and options.
CADASTRAL DESCRIPTION
a. The apartment right, entitling the exclusive use of the residence located at 2034 GN Haarlem, Engelandlaan 1292, registered with the Municipality of Haarlem II, Section Y, complex designation 2364A, apartment index 1, comprising a 55/2773rd share in the community.
b. The apartment right, entitling the exclusive use of the storage space located in Haarlem, Engelandlaan (unnumbered), registered with the Municipality of Haarlem, Section Q, complex designation 1878, apartment index 46, comprising a 9/2773rd share in the community.
Kenmerken
Overdracht
- Laatste vraagprijs
- € 225.000 kosten koper
- Vraagprijs per m²
- € 4.245
- Status
- Verkocht
- Bijdrage VvE
- € 147,91 per maand
- Koopmengvorm
- Is onderdeel uitpondproject
Bouw
- Soort appartement
- Galerijflat (appartement)
- Soort bouw
- Bestaande bouw
- Bouwjaar
- 1970
- Specifiek
- Kluswoning
- Soort dak
- Plat dak bedekt met bitumineuze dakbedekking
Oppervlakten en inhoud
- Gebruiksoppervlakten
- Wonen
- 53 m²
- Gebouwgebonden buitenruimte
- 4 m²
- Externe bergruimte
- 5 m²
- Inhoud
- 173 m³
Indeling
- Aantal kamers
- 2 kamers (1 slaapkamer)
- Aantal badkamers
- 1 badkamer en 1 apart toilet
- Badkamervoorzieningen
- Douche en wastafel
- Aantal woonlagen
- 1 woonlaag
- Voorzieningen
- Lift
- Gelegen op
- 4e woonlaag
Energie
- Energielabel
- G
- Isolatie
- Gedeeltelijk dubbel glas
- Verwarming
- Blokverwarming
- Warm water
- Elektrische boiler
Kadastrale gegevens
- HAARLEM II Y 2364A
- Kadastrale kaart
- Eigendomssituatie
- Volle eigendom
Buitenruimte
- Ligging
- Aan park en in woonwijk
- Balkon/dakterras
- Balkon aanwezig
Bergruimte
- Schuur/berging
- Box
Parkeergelegenheid
- Soort parkeergelegenheid
- Openbaar parkeren
VvE checklist
- Inschrijving KvK
- Ja
- Jaarlijkse vergadering
- Ja
- Periodieke bijdrage
- Ja (€ 147,91 per maand)
- Reservefonds aanwezig
- Ja
- Onderhoudsplan
- Ja
- Opstalverzekering
- Ja
Foto's 35
© 2001-2025 funda


































