
Kogelstraat 1-A2014 JA HaarlemNatuurkundigenbuurt-oost
€ 325.000 k.k.
Omschrijving
Uitzicht over open vaarwater!
In één van de leukste straatjes van Haarlem Zuidwest op de hoek van de Leidsevaart, met in de directe nabijheid het centrum en uitvalswegen, ligt deze goed onderhouden bovenwoning in gedeeltelijk VERHUURDE staat. De 2e etage wordt leeg opgeleverd, de 1e etage is thans verhuurd. Ideaal voor ouders die voor hun (studerende) kinderen een startersappartement zoeken of voor starters die een gedeelte van hun hypotheekkosten willen terug verdienen!
LIGGING:
De ligging is absoluut ideaal te noemen, met station Haarlem en Heemstede (met verbinding naar Amsterdam en Den Haag/Rotterdam) op korte fietsafstand. Een buurt met alle voorzieningen om de hoek: openluchtzwembad, diverse sportclubs, supermarkten en het stadscentrum van Haarlem is op nog geen 10 minuten fietsen gelegen. Het fraaie Landgoed Elswout en uitvalsweg randweg N208 zijn zeer nabij.
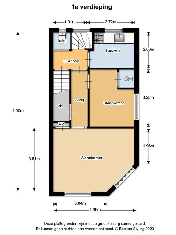
INDELING:
1e etage: Entree, overloop met toilet, gang, keuken, slaapkamer met douche, woonkamer voorzien van vaste kast, verhuurd;
2e etage: Entree, woonkamer met nieuwe open keuken en voorzien van twee dakkapellen (2018), slaapkamer, badkamer voorzien van toilet en douche, leeg op te leveren.
BIJZONDERHEDEN:
~ Bouwjaar ca. 1921;
~ Totale woonoppervlakte van beide etages is ca. 70 m², inhoud is ca. 237 m³,
~ Geheel voorzien van dubbel glas;
~ Voorzien van dakisolatie;
~ Verwarming en warm water middels cv-combiketel;
~ 1e etage thans verhuurd voor € 1.013,87 p.m. inclusief GWL;
~ 2e etage wordt leeg opgeleverd;
~ Vrij uitzicht over open vaarwater;
~ Oplevering in overleg.
Kenmerken
Overdracht
- Aangeboden sinds
- Aanvaarding
- In overleg
- Vraagprijs
- € 325.000 kosten koper
- Vraagprijs per m²
- € 4.643
- Status
- Beschikbaar
Bouw
- Soort appartement
- Bovenwoning (appartement)
- Soort bouw
- Bestaande bouw
- Bouwjaar
- 1921
Oppervlakten en inhoud
- Gebruiksoppervlakten
- Wonen
- 70 m²
- Inhoud
- 237 m³
Indeling
- Aantal kamers
- 4 kamers (2 slaapkamers)
- Aantal badkamers
- 1 badkamer en 1 apart toilet
- Badkamervoorzieningen
- Douche en toilet
- Aantal woonlagen
- 2 woonlagen
Energie
- Energielabel
- Isolatie
- Dakisolatie en dubbel glas
- Verwarming
- Cv-ketel
- Warm water
- Cv-ketel
- Cv-ketel
- Gas gestookt combiketel
Kadastrale gegevens
- HAARLEM S 2672
- Kadastrale kaart
- Eigendomssituatie
- Volle eigendom
Buitenruimte
- Ligging
- Aan rustige weg en in woonwijk
VvE checklist
- Inschrijving KvK
- Nee
- Jaarlijkse vergadering
- Nee
- Periodieke bijdrage
- Nee
- Reservefonds aanwezig
- Nee
- Onderhoudsplan
- Nee
- Opstalverzekering
- Nee
Foto's 16
© 2001-2026 funda















