
Omschrijving
PUUR* sfeervol en gezellig wonen in deze heerlijk lichte gezinswoning met diepe en zonnige achtertuin. Deze fijne woning is in 2020 op de begane grond uitgebouwd, intern gerenoveerd en goed onderhouden. Hierdoor is de woning instapklaar. Door de aanbouw is er een riante leefruimte ontstaan met een moderne eilandkeuken aan de tuinzijde en veel ruimte voor een grote eettafel. Zowel in de voor- als achtertuin kun je heerlijk zitten en genieten van de zon. De woning is voor de leeftijd goed geïsoleerd en heeft op dit moment al een energielabel C. Kom kijken en ervaar de ruimte en de sfeer!
De ligging is ideaal, aan een kindvriendelijke en rustige straat in het Vondelkwartier met diverse winkels (o.a. winkelcentrum Marsmanplein), scholen, kinderdagverblijven, het Schoterbos, de Hekslootpolder en openbaar vervoer op loopafstand. Het centrum van Haarlem, de duinen en het strand van Bloemendaal zijn op fietsafstand. De woning ligt nabij uitvalswegen richting Amsterdam/Schiphol en Alkmaar.
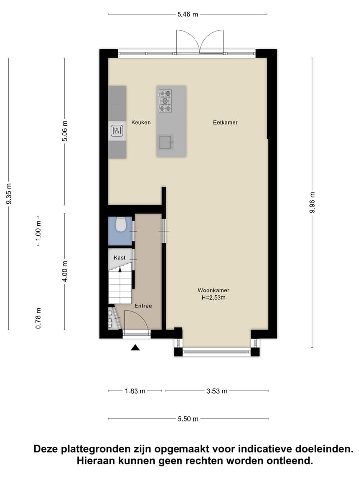
Zie voor de indeling en de maatvoering de plattegronden. Een brochure is via onze website te downloaden.
Goed om te weten
* Heerlijk licht en sfeervol gezinshuis
* Zeer goed onderhouden woning en makkelijk te betrekken
* Woonoppervlak ca. 98 m2 (zie meetrapport)
* In 2020 uitgebouwd en gemoderniseerd
* Goede isolatie en energielabel C (meer leencapaciteit)
* Riante leefruimte op de begane grond
* Moderne eilandkeuken met apparatuur, moderne badkamer en toilet
* Voor-/ en diepe achtertuin met veel zon (nieuw aangelegd in 2020)
* Vloerverwarming in de aanbouw
* Gemetselde (stenen) fundering
* Op loopafstand van diverse winkels (Marsmanplein)
* Vrij parkeren in de straat
* Aanvaarding in overleg, kan snel
Indeling:
Begane grond: entree/gang met trapkast en toiletruimte. Ruime en lichte leefruimte met het zitgedeelte aan de voorzijde en moderne eilandkeuken (met inbouwapparatuur) aan de achterzijde in de aanbouw. Openslaande deuren geven toegang tot de fijne tuin met berging en achterom.
1e Verdieping: overloop, slaapkamer voorzijde v.v. dakkapel. Wasruimte / berging voorzijde. Slaapkamer achterzijde met dakkapel. Moderne badkamer met inloopdouche / groot wastafelmeubel en toilet.
2e Verdieping: ruime overloop / voorzolder met opstelling cv-ketel en dakraam. Knusse (slaap)-kamer onder de kap met dakraam en bergruimte.
*ENGLISH TEXT*
PUUR* atmospheric and cozy living in this wonderfully light family home with a deep and sunny backyard. This fine home was expanded on the ground floor in 2020, renovated internally and well maintained. This makes the home ready to move in. The extension has created a spacious living space with a modern island kitchen on the garden side and plenty of space for a large dining table. Both in the front and back garden you can sit and enjoy the sun. The house is well insulated for its age and currently already has an energy label C. Come and see and experience the space and atmosphere!
The location is ideal, on a child-friendly and quiet street in the Vondelkwartier with various shops (including the Marsmanplein shopping center), schools, daycare centers, the Schoterbos, the Hekslootpolder and public transport within walking distance. The center of Haarlem, the dunes and the beach of Bloemendaal are within cycling distance. The house is located near highways to Amsterdam/Schiphol and Alkmaar.
See the floor plans for the layout and dimensions. A brochure can be downloaded from our website.
Good to know
* Lovely light and atmospheric family home
* Very well maintained house and easy to move into
* Living area approx. 98 m2 (see measurement report)
* Extended and modernized in 2020
* Good insulation and energy label C (more borrowing capacity)
* Spacious living space on the ground floor
* Modern island kitchen with appliances, modern bathroom and toilet
* Front and deep back garden with lots of sun (newly constructed in 2020)
* Underfloor heating in the extension
* Brick (stone) foundation
* Within walking distance of various shops (Marsmanplein)
* Free parking in the street
* Acceptance in consultation, can be quick
Layout:
Ground floor: entrance/hall with staircase cupboard and toilet. Spacious and light living space with the sitting area at the front and modern island kitchen (with built-in appliances) at the rear in the extension. French doors give access to the lovely garden with storage room and back entrance.
1st Floor: landing, bedroom at the front with dormer window. Laundry room / storage room at the front. Bedroom at the back with dormer window. Modern bathroom with walk-in shower / large washbasin and toilet.
2nd Floor: spacious landing / landing with central heating boiler and skylight. Cozy (bed)room under the roof with skylight and storage space.
Kenmerken
Overdracht
- Laatste vraagprijs
- € 550.000 kosten koper
- Vraagprijs per m²
- € 5.612
- Status
- Verkocht
Bouw
- Soort woonhuis
- Eengezinswoning, tussenwoning
- Soort bouw
- Bestaande bouw
- Bouwjaar
- 1952
- Soort dak
- Zadeldak bedekt met pannen
Oppervlakten en inhoud
- Gebruiksoppervlakten
- Wonen
- 98 m²
- Externe bergruimte
- 5 m²
- Perceel
- 139 m²
- Inhoud
- 346 m³
Indeling
- Aantal kamers
- 4 kamers (3 slaapkamers)
- Aantal badkamers
- 1 badkamer en 1 apart toilet
- Badkamervoorzieningen
- Inloopdouche, toilet, en wastafelmeubel
- Aantal woonlagen
- 3 woonlagen
- Voorzieningen
- Dakraam
Energie
- Energielabel
- C
- Isolatie
- Dakisolatie, dubbel glas en vloerisolatie
- Verwarming
- Cv-ketel en gedeeltelijke vloerverwarming
- Warm water
- Cv-ketel
- Cv-ketel
- Intergas HRE (gas gestookt combiketel uit 2020, eigendom)
Kadastrale gegevens
- SCHOTEN A 1937
- Kadastrale kaart
- Oppervlakte
- 139 m²
- Eigendomssituatie
- Volle eigendom
Buitenruimte
- Ligging
- Aan rustige weg en in woonwijk
- Tuin
- Achtertuin en voortuin
- Achtertuin
- 51 m² (9,30 meter diep en 5,50 meter breed)
- Ligging tuin
- Gelegen op het noordoosten bereikbaar via achterom
Bergruimte
- Schuur/berging
- Vrijstaande stenen berging
- Voorzieningen
- Elektra
Parkeergelegenheid
- Soort parkeergelegenheid
- Openbaar parkeren
Foto's 43
© 2001-2025 funda










































