
De Weide Veluwe fase 5 Bouwnummer 048 (Bouwnr. 048)3845 KA HarderwijkHarderweide
Onder optie
€ 595.000 v.o.n.
Omschrijving
Ooit gedacht dat je zo ruimtelijk zou kunnen wonen? In De Weide Veluwe ben je omringd door water en groen en toch ben je zo in het centrum van Harderwijk om een terrasje te pakken. Deze charmante en duurzame hoekwoning van circa 134 m2 heeft alles in huis voor een heerlijk leven. Dankzij de hoekligging geniet je van extra lichtinval en een ruime tuin. En verder heb je met 3 slaapkamers en een zolder genoeg ruimte en privacy. Parkeren? Dat doe je gemakkelijk in een parkeerhofje. Zo staat je auto altijd in de buurt. Voelt dit als jouw thuis?
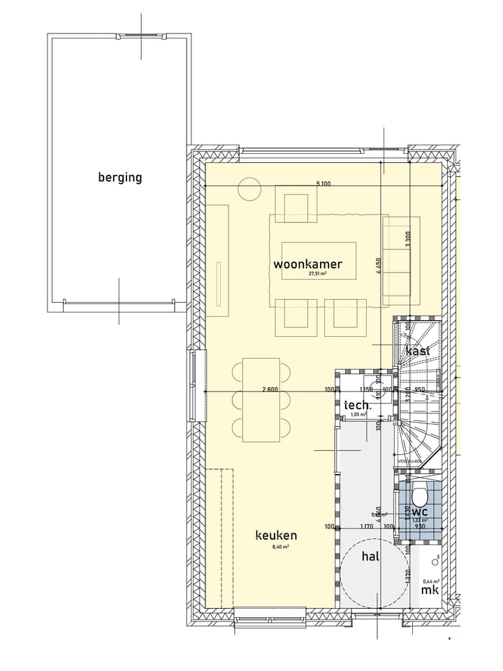
Open woonruimte en volop tuinplezier
Via de voordeur stap je de royale hal van je nieuwe hoekwoning binnen. Hier vind je onder andere een separaat toilet, de trap naar boven en de deur tot de lichte leefruimte. Dankzij de open indeling loopt de volledig uitgeruste keuken – met alles wat je nodig hebt om lekker te koken – naadloos over in de ruime woonkamer (5,4 m2 breed). De glazen pui met openslaande deur naar de tuin zorgt voor een heerlijk lichte sfeer. In de tuin is altijd wel een fijn plekje te vinden voor een kop koffie, of ga lekker borrelen en eten in de buitenlucht. De houten berging in de tuin biedt plek voor je fiets, gereedschap of tuinkussens. Zo heb je alles bij de hand!
Drie slaapkamers en een grote zolder
Boven vind je nog meer ruimte. Op de eerste verdieping wachten 3 lichte slaapkamers op je en een compleet ingerichte badkamer met douche, toilet en wastafel. De tweede verdieping is een fijne extra ruimte: een open zolder die je helemaal naar eigen wens kunt inrichten. Denk aan een werkplek, logeerkamer of sportruimte. Verder is hier een afgesloten techniekruimte met plek voor je wasmachine en droger. En natuurlijk is de woning helemaal klaar voor de toekomst met energielabel A++++: gasloos, uitstekend geïsoleerd, voorzien van zonnepanelen en een duurzame bodemwarmtepomp. Dankzij de vloerverwarming is het bovendien het hele jaar door comfortabel in huis.
Kenmerken
Overdracht
- Aangeboden sinds
- Aanvaarding
- In overleg
- Vraagprijs
- € 595.000 vrij op naam
- Vraagprijs per m²
- € 4.648
- Status
- Onder optie
Bouw
- Soort woonhuis
- Eengezinswoning, hoekwoning
- Soort bouw
- Nieuwbouw
- Bouwjaar
- 2026
Oppervlakten en inhoud
- Gebruiksoppervlakten
- Wonen
- 128 m²
- Perceel
- 155 m²
- Inhoud
- 520 m³
Indeling
- Aantal kamers
- 4 kamers (3 slaapkamers)
- Aantal woonlagen
- 2 woonlagen en een zolder
Energie
- Energielabel
- Niet beschikbaar
Kadastrale gegevens
- 1 00001
- Kadastrale kaart
- Oppervlakte
- 155 m²
- Eigendomssituatie
- Volle eigendom
Buitenruimte
- Ligging
- Aan park en in woonwijk
- Tuin
- Achtertuin
- Achtertuin
- 56 m² (9,10 meter diep en 6,20 meter breed)
- Ligging tuin
- Gelegen op het noorden
Foto's 9
© 2001-2025 funda








