Dit huis op Funda: https://www.funda.nl/detail/koop/harderwijk/huis-jp-heyelaan-60/43801951/

Omschrijving
Bent u op zoek naar een sfeervolle gezinswoning in een kindvriendelijke buurt? Kom dan zeker langs bij deze goed onderhouden tussenwoning aan de J.P. Heyelaan 60!
Gelegen in de populaire woonwijk Stadsdennen, biedt deze woning alles wat u nodig heeft: een fijne locatie, veel woonruimte en uitstekende isolatie. Het huis is gebouwd in 1973 en staat op een ruim perceel van 233 m², nabij scholen, het wijkwinkelcentrum met diverse voorzieningen, speelplekken voor kinderen en goede uitvalswegen. De gezellige binnenstad van Harderwijk is bovendien op fietsafstand te bereiken.
Wat deze woning echt bijzonder maakt, is de brede opzet van circa 6 meter en de dakkapellen aan beide zijden, waardoor de woonoppervlakte maar liefst 134 m² is en de woning maar liefst 6 slaapkamers heeft! Waar vindt u dat nog? De slaapkamers zijn stuk voor stuk mooi qua formaat, waardoor ze ideaal zijn voor een gezin. Of het nu gaat om een ruime master bedroom, kinderkamers of zelfs een werkkamer, hier is genoeg ruimte voor iedereen om zich comfortabel te voelen.
De lichte woonkamer aan de voorzijde van de woning biedt veel sfeer en privacy dankzij de bomen en groene beplanting. De open verbinding met de gezellige eethoek en keuken zorgt voor een prettig ruimtelijk gevoel. De nette keuken, die in 2017 is vernieuwd, is voorzien van moderne gemakken. Bovendien is de gehele begane grond uitgerust met vloerverwarming, wat zorgt voor extra comfort.
En dan heeft de woning ook nog eens een diepe achtertuin van ca. 17 meter, gelegen op het zonnige zuidwesten. Dit is ideaal om volop van de zon te genieten en biedt daarnaast veel privacy. De tuin is een perfecte plek om te ontspannen of met het gezin te genieten. Daarnaast beschikt de woning over een vrijstaande garage van 23 m² met een eigen achterom, wat perfect is voor extra opslag of als hobbyruimte.
Ook aan isolatie is gedacht: de woning is uitstekend geïsoleerd en beschikt over volledige HR-beglazing (m.u.v. de beglazing van de voordeur). Het energielabel A onderstreept de energiezuinigheid van deze woning, wat zowel bijdraagt aan lagere energiekosten als aan een duurzaam en comfortabel leefklimaat.
Een woning ziet, voelt en beleeft u pas echt bij een vrijblijvende bezichtiging. Wilt u meer weten over deze RUIME tussenwoning? Bel of mail ons voor een afspraak. Wij leiden u graag rond in dit prachtige huis en wellicht wordt dit wel uw nieuwe thuis!
KENMERKEN
Woonoppervlakte: 134 m²
Externe bergruimte: 23 m²
Inhoud: 463 m³
Perceel: 233 m²
Energielabel: definitief A-label
INDELING:
Begane grond:
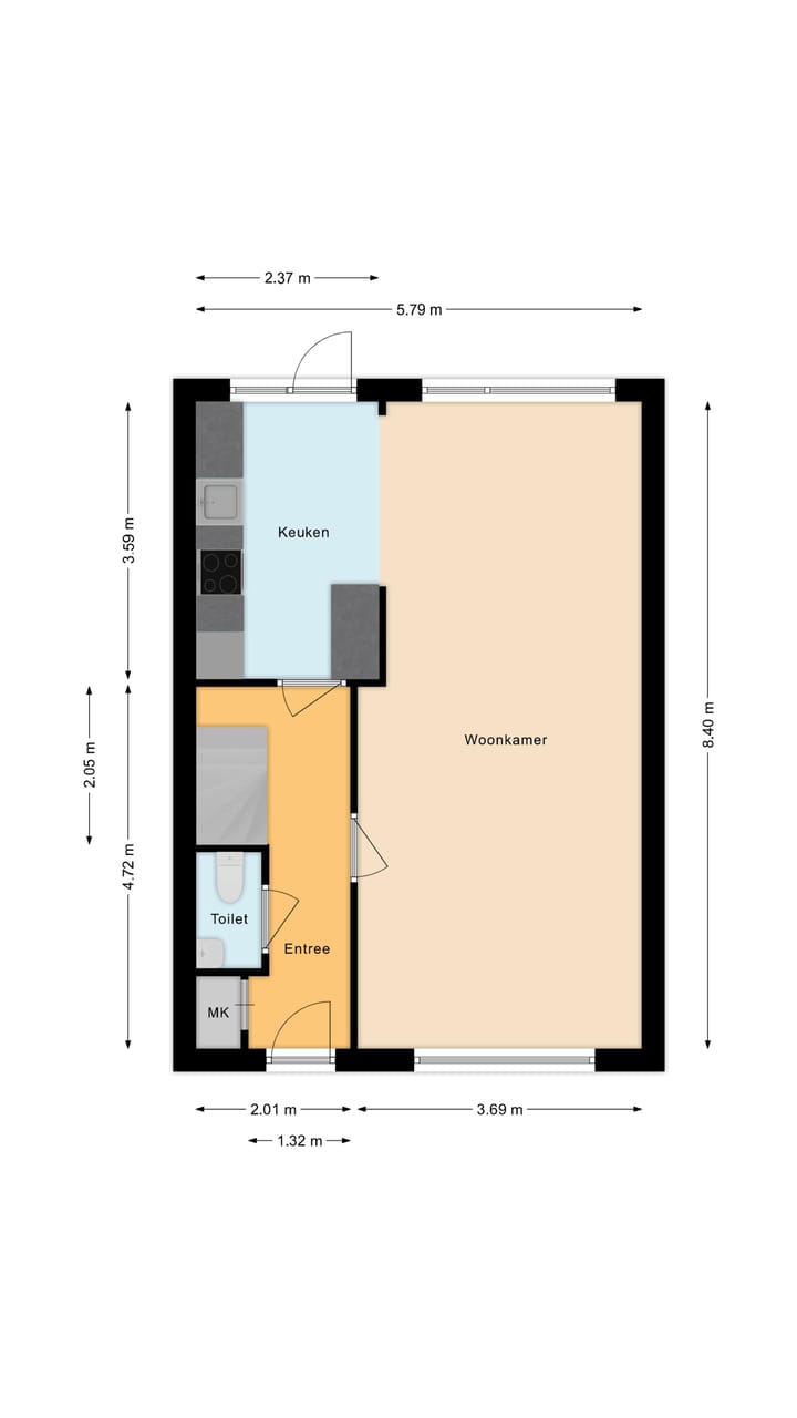
Bij binnenkomst in de woning komt u in de hal, die toegang biedt tot de garderobe, de meterkast, de toiletruimte, de keuken en de woonkamer. De woonkamer is gesitueerd aan de voorzijde van de woning en heeft grote raampartijen aan zowel de voor- als achterzijde, waardoor de ruimte veel lichtinval krijgt. De woonkamer heeft een open verbinding met de keuken, waarbij de eetkamer tussen deze twee ruimtes is gepositioneerd, wat zorgt voor een gezellige en praktische indeling. Aan de achterzijde van de woning bevindt zich de keuken, die voorzien is van voldoende werk- en opbergruimte, evenals een loopdeur naar de achtertuin.
Eerste verdieping:
Op de overloop heeft u toegang tot de drie ruime slaapkamers, vaste opbergkast en de badkamer. Nette badkamer is voorzien van een douche, toilet, wastafelmeubel en een ligbad. De drie slaapkamers zijn respectievelijk ca. 9 m², 10 m² en 13 m² groot en beschikken allemaal over handige vaste kastenwanden voor extra opbergruimte.
Tweede verdieping:
Middels een vaste trap bereikt u de tweede verdieping. Vanaf de kleine overloop heeft u toegang tot een afgesloten bergkast, waar zich de aansluitingen voor de wasmachine en wasdroger bevinden, evenals de opstelplaats voor de C.V.-combiketel (2016) en de mechanische ventilatie (2003). Daarnaast heeft u toegang tot drie slaapkamers. Zowel aan de voor- als achterzijde van de woning is een dakkapel aanwezig, waardoor het mogelijk was om drie slaapkamers te realiseren. De slaapkamers zijn respectievelijk ca. 7 m², 9 m² en 13 m² groot, en beschikken over knieschotten voor extra opbergruimte. Vanuit de achterste slaapkamer is de bergvliering te bereiken.
BIJZONDERHEDEN:
- RUIME tussenwoning met vrijstaande GARAGE;
- Beschikt over maar liefst 6 slaapkamers;
- Gelegen in de woonwijk 'Stadsdennen', nabij scholen, het wijkwinkelcentrum, speelvoorzieningen voor de kinderen en de binnenstad van Harderwijk;
- Uitstekende isolatie en beglazing, energielabel A;
- Grote raampartijen door de gehele woning, welke zorgen voor veel natuurlijk daglicht;
- Diepe achtertuin van ca. 17 meter op het Zuidwesten met achterom.
VRAAGPRIJS € 450.000,- k.k.
Aanvaarding in overleg
Disclaimer:
Alhoewel zorgvuldig samengesteld, kunnen er aan deze tekst geen rechten worden ontleend. Wij staan dan ook niet in voor de juistheid en volledigheid van de getoonde gegevens.
Kenmerken
Overdracht
- Laatste vraagprijs
- € 450.000 kosten koper
- Vraagprijs per m²
- € 3.358
- Status
- Verkocht
Bouw
- Soort woonhuis
- Eengezinswoning, tussenwoning
- Soort bouw
- Bestaande bouw
- Bouwjaar
- 1973
- Soort dak
- Zadeldak bedekt met pannen
Oppervlakten en inhoud
- Gebruiksoppervlakten
- Wonen
- 134 m²
- Externe bergruimte
- 23 m²
- Perceel
- 233 m²
- Inhoud
- 463 m³
Indeling
- Aantal kamers
- 7 kamers (6 slaapkamers)
- Aantal badkamers
- 1 badkamer en 1 apart toilet
- Badkamervoorzieningen
- Douche, ligbad, toilet, wastafel, en wastafelmeubel
- Aantal woonlagen
- 3 woonlagen en een vliering
- Voorzieningen
- Buitenzonwering, dakraam, glasvezelkabel, mechanische ventilatie, natuurlijke ventilatie, en TV kabel
Energie
- Energielabel
- A
- Isolatie
- Dakisolatie, HR-glas, muurisolatie, vloerisolatie en volledig geïsoleerd
- Verwarming
- Cv-ketel en gedeeltelijke vloerverwarming
- Warm water
- Cv-ketel
- Cv-ketel
- ATAG (gas gestookt combiketel uit 2016, eigendom)
Kadastrale gegevens
- HARDERWIJK D 7120
- Kadastrale kaart
- Oppervlakte
- 233 m²
- Eigendomssituatie
- Volle eigendom
Buitenruimte
- Ligging
- Aan rustige weg en in woonwijk
- Tuin
- Achtertuin en voortuin
- Achtertuin
- 102 m² (17,00 meter diep en 6,00 meter breed)
- Ligging tuin
- Gelegen op het zuidwesten bereikbaar via achterom
Garage
- Soort garage
- Vrijstaande stenen garage
- Capaciteit
- 1 auto
- Voorzieningen
- Elektra en stromend water
Parkeergelegenheid
- Soort parkeergelegenheid
- Openbaar parkeren
Foto's 47
© 2001-2025 funda














































