Dit huis op Funda: https://www.funda.nl/detail/koop/harderwijk/huis-musicaldreef-63/43727274/

Omschrijving
CHARMANTE EENGEZINSWONING CENTRAAL IN DRIELANDEN!
In "Muziekland IV" in de geliefde en kindvriendelijke woonwijk Drielanden, bevindt zich deze in jaren '30 stijl opgetrokken EENGEZINSWONING met BERGING en gunstig gesitueerde tuin op het zuiden. Deze bouwstijl kenmerkt zich door het gebruik van donkerrode bakstenen, roedeverdeling in raampartijen en brede overstekken, waardoor een karakteristiek en charmant straatbeeld ontstaat.
De woning is gelegen in een veilige, kindvriendelijke buurt met veel voorzieningen. Scholen, kinderopvang, speelplaatsen, zorg, sport- en recreatiemogelijkheden en een compleet winkelaanbod in de geliefde woonwijk Drielanden: het is hier allemaal! Alles binnen handbereik en met de fiets of het openbaar vervoer is de stad binnen ook gemakkelijk te bereiken.
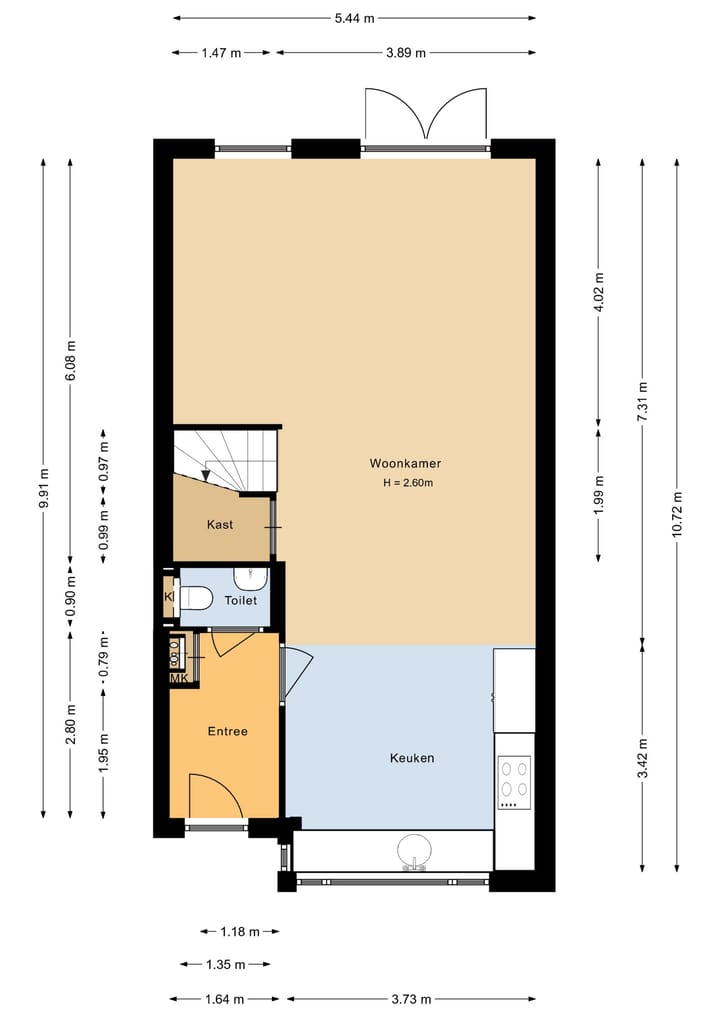
Via de hal met garderobe, meterkast en toilet bereik je de sfeervolle en ruime woonkamer met plavuizenvloer. De begane grond biedt een royale leefruimte die je geheel naar eigen wens in kunt delen. Een groot voordeel is dat alle woonlagen over vloerverwarming beschikken zodat er nergens in de woning een radiator te vinden is. De keuken is aan de voorzijde van de woning gerealiseerd en tijdens het koken kijk je leuk weg door de mooie woonstraat.
Op de eerste verdieping zijn 3 goede slaapkamers aanwezig, waarvan de ouderslaapkamer beschikt over een ruime inloopkast waardoor je kleding, schoenen en accessoires allemaal netjes kunt opbergen. De badkamer is uitgerust met een ligbad, douche en badmeubel. Tevens is op deze woonlaag een separaat 2e toilet met fonteintje aanwezig.
De zolderverdieping is nog volledig vrij in te delen en biedt met een plafond tot in de nok en een dakkapel veel ruimte en daglicht. Hier zijn eenvoudig nog twee extra slaapkamers te realiseren wat het totaal op 5 brengt. Verder vind je hier de aansluitingen van de wasapparatuur, de opstelling HR cv-ketel (2006), MV-box en zonneboiler.
De achtertuin heeft een gunstige zonligging (zuid/zuidoost) en is voorzien van sierbestrating, diverse beplanting, een vrijstaande houten berging met overkapping en een achterom.
Hebben wij jouw interesse gewekt? Neem dan snel contact op met ons kantoor voor een vrijblijvend bezichtiging en wij laten je deze woning graag zien!
INDELING
begane grond: hal/entree met meterkast en toilet met fonteintje, toegang tot de keuken met diverse inbouwapparatuur, waaronder vaatwasser, inductiekookplaat, afzuigkap, koelkast en oven, woonkamer met plavuizen vloer, trapkast en openslaande deuren naar de achtertuin op het zuiden;
1e verdieping: overloop, 1e slaapkamer, 2e slaapkamer, badkamer met ligbad, douche en wastafel, 3e slaapkamer met walk-in closet, separaat toilet met fonteintje;
2e verdieping: open zolderverdieping met plafond tot in de nok, aansluitingen wasmachine en droger en opstelling HR cv-ketel;
VOORZIENINGEN
De centrale verwarming en de warmwatervoorziening geschieden via de HR CV combiketel (2006) inclusief een energiezuinige zonneboiler (2006) wat bijdraagt tot zeer lage energielasten. De woning is op alle woonlagen voorzien van vloerverwarming. Tevens is de woning uitgerust met mechanische ventilatie.
PARKEREN en BERGING
Aan de straatzijde kan er geparkeerd worden en in de nabije omgeving is er verder voldoende openbare parkeergelegenheid. Achterin de tuin bevindt zich de vrijstaande fietsenberging voorzien van elektra en de achterom.
VERDER / TUIN
De tuin heeft een gunstige zonligging op het zuid/zuidoosten waardoor je hier volop kunt profiteren van de zon. De tuin is voorzien van sierbestrating en diverse beplanting.
BROCHURE
Van deze woning is een unieke woningwebsite (Musicaldreef63.nl) beschikbaar. Op deze website kunt u de brochure downloaden waar u alle gegevens van de woning kunt vinden.
Kenmerken
Overdracht
- Laatste vraagprijs
- € 475.000 kosten koper
- Vraagprijs per m²
- € 3.571
- Status
- Verkocht
Bouw
- Soort woonhuis
- Eengezinswoning, tussenwoning
- Soort bouw
- Bestaande bouw
- Bouwjaar
- 2005
- Soort dak
- Zadeldak bedekt met pannen
Oppervlakten en inhoud
- Gebruiksoppervlakten
- Wonen
- 133 m²
- Externe bergruimte
- 7 m²
- Perceel
- 148 m²
- Inhoud
- 469 m³
Indeling
- Aantal kamers
- 5 kamers (4 slaapkamers)
- Aantal badkamers
- 1 badkamer en 1 apart toilet
- Badkamervoorzieningen
- Douche, ligbad, en wastafelmeubel
- Aantal woonlagen
- 3 woonlagen
- Voorzieningen
- Glasvezelkabel, mechanische ventilatie, en TV kabel
Energie
- Energielabel
- A
- Isolatie
- Dubbel glas, HR-glas en volledig geïsoleerd
- Verwarming
- Gehele vloerverwarming
- Warm water
- Cv-ketel en zonneboiler
Kadastrale gegevens
- HARDERWIJK I 5916
- Kadastrale kaart
- Oppervlakte
- 148 m²
- Eigendomssituatie
- Volle eigendom
Buitenruimte
- Ligging
- Aan rustige weg en in woonwijk
- Tuin
- Achtertuin en voortuin
- Achtertuin
- 53 m² (9,50 meter diep en 5,60 meter breed)
- Ligging tuin
- Gelegen op het zuiden bereikbaar via achterom
Bergruimte
- Schuur/berging
- Vrijstaande houten berging
- Voorzieningen
- Elektra
Parkeergelegenheid
- Soort parkeergelegenheid
- Openbaar parkeren
Foto's 43
© 2001-2025 funda










































