Dit huis op Funda: https://www.funda.nl/detail/koop/harderwijk/huis-strekdam-88/43924870/

Omschrijving
Strekdam 88 te 3841 WD Harderwijk
Stel je voor! Je eigen boothuis, direct aan het open vaarwater en met een erg leuk bovengelegen appartement met
fraai balkon/terras met glazen balustrade en een perfect uitzicht!! En dat alles direct bij het historische centrum en de vissershaven van Harderwijk! Mooier wordt het toch niet!? Parkeren doe je gewoon op je eigen oprit en je beschikt daarbij over een prachtig afgewerkte binnen ligplaats in combinatie met een fijne buitensteiger.
Aan de Strekdam in Harderwijk, direct achter het Dolfinarium en op steenworp afstand van de historische binnenstad van Harderwijk, is de afgelopen jaren een uniek project gerealiseerd dat zijn gelijke niet kent in Nederland! Het bestaat uit 40 boothuizen in verschillende grootte en deze boothuizen zijn destijds allemaal gekocht door liefhebbers, veelal voor privé gebruik en met de bedoeling het in de familie te houden. Er wordt echter deels ook recreatief verhuurd, waarbij aantrekkelijke rendementen haalbaar zijn.
Wij hebben nu beschikbaar een BOOTHUIS (buitenmaat circa 5,0 m¹ bij circa 11,00 m¹) met twee privé parkeerplaatsen, een binnen ligplaats, een grote buitensteiger (samen met de buurman) en een compleet appartement met balkon/terras en een slaapverdieping. Het geheel is degelijk, eigentijds, onderhoudsarm en energie-vriendelijk gebouwd.
De huidige eigenaar heeft het boothuis zelf in gebruik. Overigens mag een eigenaar 365 dagen per jaar gebruik maken van het boothuis, maar het heeft geen bestemming "wonen". Het geheel wordt te koop aangeboden exclusief BTW, en deze is voor zakelijke kopers en particulieren die recreatief gaan verhuren (onder voorwaarden) te verrekenen.
De ligging van het boothuis is uniek, vrij gelegen direct aan het vaarwater, recht tegenover de hippe woonwijk "Waterfront", schuin tegenover jachthaven "de Knar" en op de scheiding tussen het "Wolderwijd" en het "Veluwemeer".
Zo kunt u direct alle kanten op en is ook de polder middels de nabijgelegen "Hoge Dwarsvaart' bij het "Lovink Gemaal" vlot bereikbaar. Tegelijkertijd liggen de historische binnenstad van Harderwijk en de daarvoor gelegen boulevard met passantenhaven op minder dan 400 meter lopen van het boothuis. De Harderwijkse binnenstad biedt op Horecagebied alles wat u zoekt en dat binnen een straal van 500 meter! Van gezellig café naar trendy brasserie en van familierestaurant tot restaurant met één of twee Michelinsterren. Ook dat is uniek en vindt u nergens anders in Nederland. In de nabijheid treft u bovendien diverse makkelijk bereikbare jachthavens, scheepsreparatiebedrijven en winterstallingen.
Harderwijk zelf ligt zeer centraal in Nederland en erg praktisch ten opzichte van de uitvalswegen en de snelwegen A-28 en A-6. Hierdoor is het grootste deel van Nederland binnen een uurtje rijden bereikbaar. Zo liggen Zwolle, Amersfoort en Almere op circa 30 auto-minuten en Amsterdam op circa 45 auto-minuten. Verder is Harderwijk omgeven door uitgestrekte natuurgebieden en kunt u hier ook uitstekend terecht in de bossen, de heide en de zandverstuiving. Ideaal dus als u houdt van rust en natuur, maar toch op korte afstand van de "bewoonde wereld", de voorzieningen en de uitvalswegen wilt wonen.
Aan de voorzijde van het boothuis parkeer je eenvoudig op twee privé parkeerplekken en is er ook nog ruimte om op een bankje in het avondzonnetje te zitten. Het boothuis heeft een eigen opgang en kan daardoor eenvoudig separaat gebruikt worden van het bovengelegen appartement. Het geheel is verder uitstekend gebouwd (destijds zelfs onder SWK-garantie) met een betonnen onderbouw en een geïsoleerde dubbelwandige opbouw met onderhoudsarme materialen, waaronder kunststof ramen en kozijnen en een geïsoleerd dak met stalen dakpanplaten. Uiteraard is het geheel voorzien van HR++ glas en een cv-installatie (gas) met vloerverwarming.
INDELING:
Boothuis: hal/entree, meterkast, wasmachine-/drogeraansluiting, loopsteiger, ligplaats (afmeting circa 3,50 meter bij 9,25 meter) met elektrisch bedienbare overhead en loopdeur naar grote buitensteiger (afmeting circa 2,20 meter bij 7,15 meter
in deelgebruik met de buurman).
Appartement:
Begane grond: hal/entree met trap naar....
1e Verdieping: overloop, woonkamer (circa 16 m²) met vide constructie en hoogte tot in de nok, royale buitenruimte (circa 2,00 meter bij 4,70 meter) met glazen balkonscherm en een schitterend uitzicht , nette badkamer in neutrale kleurstelling en met toilet, wastafel en douchecabine, half open keuken met zitgedeelte, cv-/bergkast en nette inrichting met inbouwapparatuur.
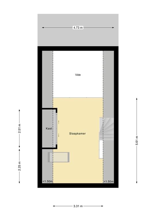
2e Verdieping: royale overloop met fraaie vide-constructie en vrij indeelbare slaapzolder met dakraam en kastenwand.
OPVALLEND:
- Heerlijk BOOTHUIS aan vaarwater in het hippe "Waterfront";
- Ligging achter het Dolfinarium en direct bij de historische binnenstad;
- Twee privé parkeerplaatsen en ruime ligplaats met buitensteiger;
- Goed onderhouden, uitstekend geïsoleerd en onderhoudsarm;
- Indeling met separate toegang naar boothuis en appartement;
- Prima, eigentijdse afwerking met een doelmatige indeling;
- Voorzien van heerlijke buitenruimte aan de waterzijde;
- Uitstekend geschikt voor eigen gebruik, maar ook voor de verhuur;
- Koopsom exclusief BTW en kosten koper.
Wil je dit boothuis graag bekijken? Dan kan eenvoudig! Neem contact op met ons kantoor en wij maken graag een afspraak voor een bezichtiging!
Kenmerken
Overdracht
- Laatste vraagprijs
- € 595.000 kosten koper
- Status
- Verkocht
- Permanente bewoning
- Permanente bewoning is niet toegestaan
Bouw
- Soort woonhuis
- Grachtenpand, geschakelde woning (waterwoning)
- Soort bouw
- Bestaande bouw
- Bouwjaar
- 2018
- Specifiek
- Gemeubileerd en gestoffeerd
- Soort dak
- Zadeldak bedekt met metaal
- Keurmerken
- SWK Garantiecertificaat
Oppervlakten en inhoud
- Gebruiksoppervlakten
- Wonen
- 62 m²
- Overige inpandige ruimte
- 13 m²
- Gebouwgebonden buitenruimte
- 10 m²
- Perceel
- 129 m²
- Inhoud
- 428 m³
Indeling
- Aantal kamers
- 3 kamers (1 slaapkamer)
- Aantal badkamers
- 1 badkamer
- Badkamervoorzieningen
- Douche, toilet, vloerverwarming, en wastafel
- Aantal woonlagen
- 3 woonlagen
- Voorzieningen
- Glasvezelkabel en mechanische ventilatie
Energie
- Energielabel
- Niet beschikbaar
- Isolatie
- Dakisolatie, HR-glas, muurisolatie en vloerisolatie
- Verwarming
- Cv-ketel en gedeeltelijke vloerverwarming
- Warm water
- Cv-ketel en elektrische boiler
- Cv-ketel
- 2018
Kadastrale gegevens
- HARDERWIJK E 6241
- Kadastrale kaart
- Oppervlakte
- 129 m²
- Eigendomssituatie
- Volle eigendom
Buitenruimte
- Ligging
- Aan rustige weg, aan vaarwater, aan water, in centrum en vrij uitzicht
- Balkon/dakterras
- Dakterras aanwezig
Bergruimte
- Schuur/berging
- Inpandig
- Voorzieningen
- Elektra en stromend water
Garage
- Soort garage
- Parkeerplaats
Parkeergelegenheid
- Soort parkeergelegenheid
- Op eigen terrein
Foto's 49
© 2001-2025 funda
















































