
Omschrijving
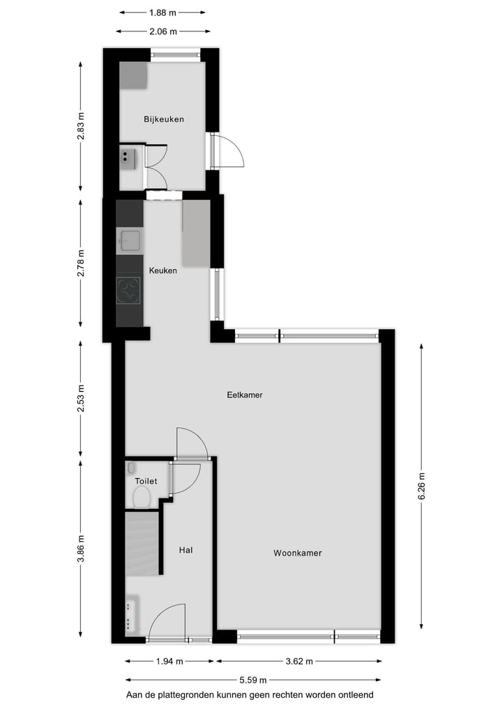
Nette, gemoderniseerde TUSSENWONING met tuin op het westen, gelegen aan een parkeerpleintje met veel groen in de buurt. Indeling: hal met trapopgang en toilet. Doorzonkamer. Aanbouw met moderne keuken met o.a. inductie kookplaat, afzuigkap, koel/vries combinatie en vaatwasser. Bijkeuken met witgoedaansluitingen en achterentree. Achtertuin op het westen met achterom en een houten schuur met overkapping. 1e verdieping: overloop. Drie slaapkamers. Kleine badkamer met inloopdouche en wastafeltje. 2e verdieping: middels een vaste trap te bereiken zolderverdieping met dakvenster. Bijzonderheden: - de wanden en het plafond van de woonkamer zijn gestuct, De badkamer is van 2020 - de keuken is van 2017 - het toilet is van 2018 - nagenoeg geheel v.v. dubbele beglazing en dakisolatie
Kenmerken
Overdracht
- Laatste vraagprijs
- € 239.500 kosten koper
- Vraagprijs per m²
- € 2.886
- Status
- Verkocht
Bouw
- Soort woonhuis
- Eengezinswoning, tussenwoning
- Soort bouw
- Bestaande bouw
- Bouwjaar
- 1964
- Soort dak
- Zadeldak bedekt met pannen
Oppervlakten en inhoud
- Gebruiksoppervlakten
- Wonen
- 83 m²
- Overige inpandige ruimte
- 6 m²
- Gebouwgebonden buitenruimte
- 9 m²
- Externe bergruimte
- 5 m²
- Perceel
- 162 m²
- Inhoud
- 292 m³
Indeling
- Aantal kamers
- 4 kamers (3 slaapkamers)
- Aantal badkamers
- 1 badkamer en 1 apart toilet
- Badkamervoorzieningen
- Inloopdouche en wastafel
- Aantal woonlagen
- 2 woonlagen en een zolder
Energie
- Energielabel
- D
- Isolatie
- Dakisolatie, dubbel glas en muurisolatie
- Verwarming
- Cv-ketel
- Warm water
- Cv-ketel
- Cv-ketel
- Intergas (gas gestookt combiketel uit 2013, eigendom)
Kadastrale gegevens
- HARLINGEN B 1742
- Kadastrale kaart
- Oppervlakte
- 162 m²
- Eigendomssituatie
- Volle eigendom
Buitenruimte
- Ligging
- In woonwijk
Bergruimte
- Schuur/berging
- Vrijstaande houten berging
Parkeergelegenheid
- Soort parkeergelegenheid
- Openbaar parkeren
Foto's 38
© 2001-2026 funda





































