Dit huis op Funda: https://www.funda.nl/detail/koop/hasselt/huis-fisselerstraat-14/43859723/

Omschrijving
Nieuw in de verkoop | Bert Leistra ERA Makelaardij
Fisselerstraat 14, Hasselt
Sfeervol wonen met hedendaags comfort
Gelegen in een rustige en groene wijk biedt deze charmante tussenwoning uit circa 1957 een perfecte balans tussen nostalgie en modern wooncomfort. Met een royale achtertuin van maar liefst 114 m², drie lichte slaapkamers en een praktische bijkeuken, is deze woning een ideale thuisbasis voor gezinnen.
Indeling
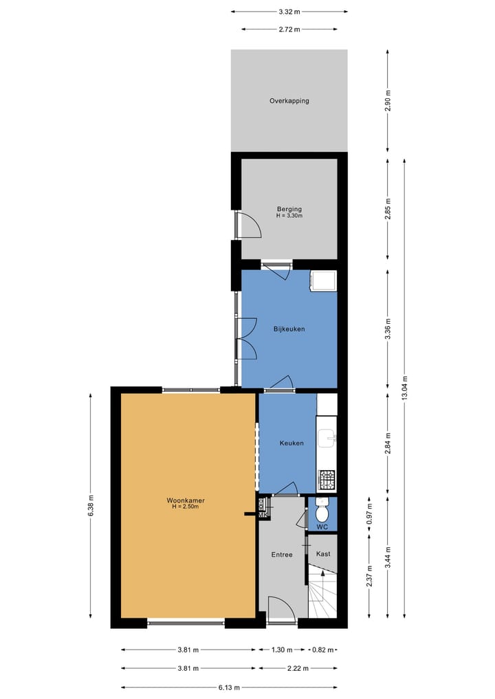
Begane grond
De entreehal verwelkomt u met een garderoberuimte, trapopgang en toegang tot een modern toilet. Vanuit de hal betreedt u de lichte woonkamer (ca. 24 m²), waar grote raampartijen zorgen voor een prettige lichtinval. Deze ruimte biedt volop mogelijkheden voor een persoonlijke inrichting en straalt een warme sfeer uit.
De halfopen keuken is efficiënt en praktisch ingericht, met voldoende werk- en opbergruimte. Aangrenzend bevindt zich de bijkeuken, ideaal voor extra opslag en huishoudelijke apparatuur. Vanuit de keuken heeft u directe toegang tot de diepe achtertuin, een groene oase die rust en privacy biedt.
Eerste verdieping
De eerste verdieping omvat drie slaapkamers, variërend van ca. 8 m² tot 11 m². Grote ramen zorgen in alle kamers voor een aangename lichtinval. De slaapkamers zijn voorzien van praktische vaste kasten. De badkamer is functioneel ingericht met een douche, wastafel en een tweede toilet.
Buitenruimte
De achtertuin van 114 m² is een heerlijke plek om te ontspannen of te genieten van lange zomeravonden. De tuin beschikt over een praktische berging (hoogte 3,3 meter) en een overkapping, ideaal voor het opbergen van fietsen en tuinmeubilair. De voortuin draagt bij aan de vriendelijke uitstraling van de woning.
Bijzonderheden
• Bouwjaar: circa 1957
• Woonoppervlakte: ca. 88 m²
• Inhoud: ca. 340 m³
• Perceeloppervlakte: ca. 211 m²
• Volledig voorzien van dak-, muur- en dubbelglas-isolatie
• Cv-ketel (eigendom) uit 2004
• Royale achtertuin met overkapping en berging
• Rustige ligging in een groene woonomgeving
Bezichtiging
Bent u op zoek naar een karaktervolle woning met een unieke mix van sfeer en comfort? Plan dan een bezichtiging en ervaar zelf de mogelijkheden die de Fisselerstraat 14 te bieden heeft.
Kenmerken
Overdracht
- Laatste vraagprijs
- € 315.000 kosten koper
- Vraagprijs per m²
- € 3.580
- Status
- Verkocht
Bouw
- Soort woonhuis
- Eengezinswoning, tussenwoning
- Soort bouw
- Bestaande bouw
- Bouwjaar
- 1957
- Specifiek
- Gedeeltelijk gestoffeerd
- Soort dak
- Zadeldak bedekt met pannen
Oppervlakten en inhoud
- Gebruiksoppervlakten
- Wonen
- 88 m²
- Overige inpandige ruimte
- 8 m²
- Gebouwgebonden buitenruimte
- 10 m²
- Perceel
- 211 m²
- Inhoud
- 340 m³
Indeling
- Aantal kamers
- 4 kamers (3 slaapkamers)
- Aantal badkamers
- 1 badkamer en 1 apart toilet
- Badkamervoorzieningen
- Douche, toilet, en wastafel
- Aantal woonlagen
- 2 woonlagen
- Voorzieningen
- TV kabel
Energie
- Energielabel
- E
- Isolatie
- Dakisolatie, dubbel glas, HR-glas en muurisolatie
- Verwarming
- Cv-ketel
- Warm water
- Cv-ketel
- Cv-ketel
- Hr cv combiketel (gas gestookt combiketel uit 2004, eigendom)
Kadastrale gegevens
- HASSELT A 4340
- Kadastrale kaart
- Oppervlakte
- 211 m²
- Eigendomssituatie
- Volle eigendom
Buitenruimte
- Ligging
- Aan rustige weg en in woonwijk
- Tuin
- Achtertuin en voortuin
- Achtertuin
- 123 m² (20,50 meter diep en 6,00 meter breed)
- Ligging tuin
- Gelegen op het westen bereikbaar via achterom
Bergruimte
- Schuur/berging
- Aangebouwde houten berging
- Voorzieningen
- Vliering en elektra
Parkeergelegenheid
- Soort parkeergelegenheid
- Openbaar parkeren
Foto's 57
© 2001-2025 funda
























































