Dit huis op Funda: https://www.funda.nl/detail/koop/hasselt/huis-het-ambt-70/89572701/

Omschrijving
Het Ambt 70, Hasselt | Ruimte, licht en comfort: een royale gezinswoning aan een groen plantsoen!
Aan een rustige en geliefde straat in Hasselt, tegenover een fraai plantsoen, staat deze ruime geschakelde 2-onder-1-kapwoning. Met een woonoppervlakte van 176 m², vijf slaapkamers, een garage, bijkeuken en een zonnige tuin op het zuiden, biedt deze woning volop leefruimte voor het hele gezin.
Indeling
Begane grond
Via de verzorgde voortuin betreedt u de ruime hal met meterkast, garderobe en een moderne toiletruimte. Vanuit de hal heeft u toegang tot zowel de woonkamer als de ruimte aan de voorzijde, die momenteel wordt gebruikt als kantoor/studeerkamer.
De tuingerichte woonkamer is heerlijk licht en ruim dankzij de uitbouw aan de achterzijde over de volle breedte (ca. 5,5 meter). De grote glaspui met openslaande deuren naar de tuin zorgt voor veel daglicht en een direct contact met buiten. Er is ruimte voor een royale zithoek en een eethoek met uitzicht op de tuin – een fijne plek om samen te komen met familie en vrienden.
De half-open keuken ligt centraal in het huis en is degelijk uitgevoerd, voorzien van diverse inbouwapparatuur waaronder een combimagnetron, gaskookplaat, afzuigkap en vaatwasser. De keuken verkeert in nette staat en kan, met vervanging van enkele apparaten, nog jaren mee. De praktische indeling en voldoende kastruimte maken dit tot een prettige werkplek voor de kookliefhebber.
De bijkeuken, bereikbaar vanuit de hal, beschikt over aansluitingen voor wasapparatuur en extra bergruimte. Vanuit hier bereikt u de aangebouwde stenen garage (ca. 21 m²), voorzien van elektra en water – ideaal voor het stallen van de auto, fietsen of als hobbyruimte.
Eerste verdieping
De eerste verdieping beschikt over een lichte overloop met toegang tot drie ruime slaapkamers van respectievelijk 11,4 m², 10,8 m² en 16,6 m². Alle kamers zijn voorzien van kunststof kozijnen met draai-kiepramen en rolluiken, wat zorgt voor een goed binnenklimaat en extra comfort.
De badkamer (ca. 5,4 m²) is modern uitgevoerd en voorzien van een ligbad, wandcloset en dubbele wastafel met meubel.
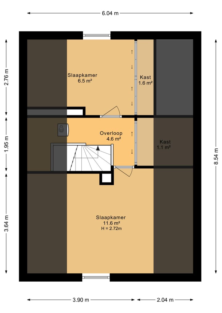
Tweede verdieping
Via een vaste trap bereikt u de zolderverdieping met overloop en vaste kast. Hier bevinden zich nog twee slaapkamers van respectievelijk 11,6 m² en 6,5 m². De kamers zijn praktisch in te delen en dankzij de lichte afwerking goed bruikbaar als logeerkamer, werkruimte of hobbykamer.
Buitenruimte
De fraai aangelegde achtertuin is gelegen op het zuiden en meet circa 130 m². De tuin is verzorgd aangelegd met sierbestrating, beplanting en meerdere zitplekken waar u de hele dag van de zon kunt genieten. Achterin de tuin staat een houten berging met elektra, ideaal voor tuingereedschap of fietsen. De voortuin sluit mooi aan bij het rustige straatbeeld en biedt parkeergelegenheid op eigen terrein.
Ligging en omgeving
Het Ambt is een rustige woonstraat met veel groen, brede trottoirs en parkeergelegenheid voor de deur. De ligging tegenover een plantsoen zorgt voor een ruimtelijk gevoel en een prettige, kindvriendelijke omgeving.
In de nabije omgeving vindt u winkels, scholen, sportvoorzieningen en speelgelegenheden. Het historische centrum van Hasselt ligt op fietsafstand en biedt sfeervolle horeca, winkels en grachten. Dankzij de gunstige ligging zijn steden als Zwolle, Meppel en Zwartsluis uitstekend bereikbaar via de N331 en A28.
Bijzonderheden & kenmerken
• Royale geschakelde 2-onder-1-kapwoning (bouwjaar 1975)
• Woonoppervlakte 176 m² | Inhoud 696 m³ | Perceeloppervlakte 319 m²
• De erfafscheiding aan de rechterzijde loopt iets af van de werkelijke kadastrale grens (lichtelijk in boog). Bij toekomstige vervanging zal dit naar de feitelijke situatie worden hersteld.
• Uitbouw aan de achterzijde over de volle breedte (ca. 5,5 m)
• Lichte woonkamer met openslaande deuren naar de tuin
• Half-open keuken in degelijke staat met inbouwapparatuur
• Kantoorruimte aan de voorzijde
• Bijkeuken met doorgang naar garage (21 m², voorzien van water en elektra)
• Totaal 5 slaapkamers, verdeeld over 2 verdiepingen
• Badkamer met ligbad, toilet en dubbele wastafel
• HR-combiketel (2016, eigendom)
• Energielabel C (geldig tot 03-05-2028)
• Dakisolatie en dubbel glas
• Rolluiken op de 1e en 2e verdieping
• Zonnige tuin op het zuiden met houten berging
• Daknok vernieuwd
• Rustige ligging aan plantsoen, nabij winkels, scholen en uitvalswegen
Samenvattend
Het Ambt 70 is een heerlijke gezinswoning met verrassend veel ruimte, een lichte leefruimte en een zonnige tuin. Een keurig onderhouden huis op een rustige locatie, waar comfort en privacy samenkomen.
Kom kijken en laat u verrassen!
Bent u op zoek naar een royale woning op een rustige en groene locatie in Hasselt? Neem dan contact op met Bert Leistra ERA Makelaardij voor een bezichtiging. Wij laten u graag ervaren hoe fijn wonen het is aan Het Ambt 70.
Kenmerken
Overdracht
- Laatste vraagprijs
- € 498.000 kosten koper
- Vraagprijs per m²
- € 2.830
- Status
- Verkocht
Bouw
- Soort woonhuis
- Eengezinswoning, geschakelde 2-onder-1-kapwoning
- Soort bouw
- Bestaande bouw
- Bouwjaar
- 1975
- Specifiek
- Gedeeltelijk gestoffeerd
- Soort dak
- Dwarskap bedekt met pannen
Oppervlakten en inhoud
- Gebruiksoppervlakten
- Wonen
- 176 m²
- Overige inpandige ruimte
- 23 m²
- Externe bergruimte
- 8 m²
- Perceel
- 319 m²
- Inhoud
- 696 m³
Indeling
- Aantal kamers
- 7 kamers (5 slaapkamers)
- Aantal badkamers
- 1 badkamer en 1 apart toilet
- Badkamervoorzieningen
- Dubbele wastafel, ligbad, en toilet
- Aantal woonlagen
- 2 woonlagen en een zolder
- Voorzieningen
- Mechanische ventilatie
Energie
- Energielabel
- Isolatie
- Dakisolatie en dubbel glas
- Verwarming
- Cv-ketel
- Warm water
- Cv-ketel
- Cv-ketel
- Combiketel (gas gestookt combiketel uit 2016, eigendom)
Kadastrale gegevens
- HASSELT C 1077
- Kadastrale kaart
- Oppervlakte
- 319 m²
- Eigendomssituatie
- Volle eigendom
Buitenruimte
- Ligging
- Aan rustige weg en in woonwijk
- Tuin
- Achtertuin en voortuin
- Achtertuin
- 130 m² (13,00 meter diep en 10,00 meter breed)
- Ligging tuin
- Gelegen op het zuiden
Bergruimte
- Schuur/berging
- Vrijstaande houten berging
- Voorzieningen
- Elektra
- Isolatie
- Geen isolatie
Garage
- Soort garage
- Aangebouwde stenen garage
- Capaciteit
- 1 auto
- Voorzieningen
- Elektra en stromend water
- Isolatie
- Geen isolatie
Parkeergelegenheid
- Soort parkeergelegenheid
- Op eigen terrein en openbaar parkeren
Foto's 51
© 2001-2026 funda


















































