Dit huis op Funda: https://www.funda.nl/detail/koop/heelweg/huis-molenweg-18-b/89451379/

Molenweg 18-B7055 AX HeelwegVerspreide huizen Heelweg
€ 410.000 v.o.n.
Omschrijving
Deze geschakelde hoekwoning met aangebouwde berging/garage behoort tot het blok van vier woningen welke gerealiseerd worden aan de Molenweg te Heelweg.
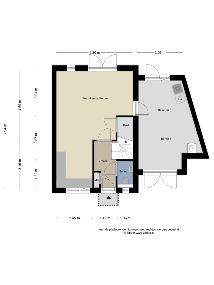
Indeling
Begane grond: entree/hal, ruimte voor een gastentoilet, trapopgang en meterkast. Tuingerichte woonkamer met praktische trapkast en middels openslaande deuren toegang tot de tuin, halfopen keuken met uitzicht op de straatzijde. Via de woonkamer is de berging/garage bereikbaar.
Eerste verdieping: overloop met toegang tot drie slaapkamers en badkamer met ruimte voor een douche, wastafel, ligbad en toilet.
Zolder: middels vlizotrap bereikbare zolderverdieping.
Aan de zijkant van de woning is de in steen opgetrokken garage/berging met plek voor de binnenunit van de warmtepomp. De berging wordt volledig geïsoleerd en is voorzien van dubbele deuren aan de voorzijde en aan de tuinzijde voorzien van deur naar de tuin. De berging is vanuit de woonkamer binnendoor bereikbaar.
Perceeloppervlak circa 289 m²
Woonoppervlak 103 m²
Voorlopig energielabel A+++.
De keukeninrichting, sanitair en tegelwerk zijn niet in de prijs inbegrepen.
Kenmerken
Overdracht
- Aangeboden sinds
- Aanvaarding
- In overleg
- Vraagprijs
- € 410.000 vrij op naam
- Vraagprijs per m²
- € 3.981
- Status
- Beschikbaar
Bouw
- Soort woonhuis
- Eengezinswoning, geschakelde woning
- Soort bouw
- Nieuwbouw
- Bouwjaar
- 2025
- Soort dak
- Zadeldak bedekt met pannen
Oppervlakten en inhoud
- Gebruiksoppervlakten
- Wonen
- 103 m²
- Perceel
- 289 m²
- Inhoud
- 374 m³
Indeling
- Aantal kamers
- 4 kamers (3 slaapkamers)
- Aantal badkamers
- 1 badkamer en 1 apart toilet
- Badkamervoorzieningen
- Douche, toilet, en wastafel
- Aantal woonlagen
- 2 woonlagen en een vliering
- Voorzieningen
- Mechanische ventilatie
Energie
- Energielabel
- A+++
- Isolatie
- Dakisolatie, HR-glas, muurisolatie, vloerisolatie en volledig geïsoleerd
- Verwarming
- Warmtepomp
- Warm water
- Elektrische boiler
Kadastrale gegevens
- VARSSEVELD H 3051
- Kadastrale kaart
- Oppervlakte
- 289 m²
- Eigendomssituatie
- Volle eigendom
Buitenruimte
- Ligging
- Aan rustige weg
- Tuin
- Achtertuin en voortuin
Bergruimte
- Schuur/berging
- Aangebouwde stenen berging
- Isolatie
- Volledig geïsoleerd
Parkeergelegenheid
- Soort parkeergelegenheid
- Openbaar parkeren
Foto's 12
Plattegronden 2
© 2001-2025 funda













