
Omschrijving
Op een aantrekkelijke locatie aan de rand van het dorp op “Het Hoornerveen” staat deze schitterende helft van dubbele woning met vrijstaande garage en grote veranda.
De woning is gebouwd in 2012, volledig voorzien van kunststof kozijnen en is de woning daardoor onderhoudsarm. De woning is luxe afgewerkt met een volledig uitgeruste keuken en twee moderne badkamers. Het perceel is 893 m².
In 2018 zijn er ook nog eens 21 zonnepanelen geplaatst waardoor de energielasten laag zijn. De houtkachel zorgt ervoor dat het gasverbruik minimaal is.
De tuin is vrij gelegen en er is een beek die langszij loopt. Vanuit de veranda is er een mooi uitzicht over het perceel.
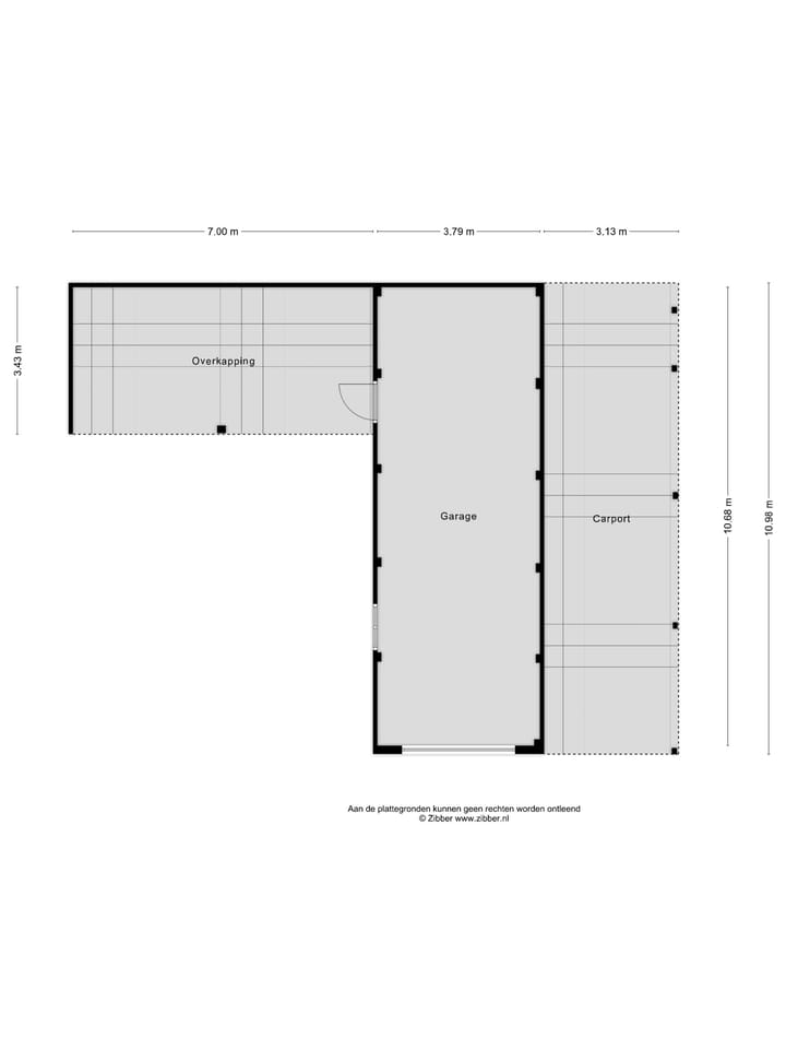
Zo hebt u de hele dag zon en kunt u door de veranda achterin de tuin ook ervoor kiezen om in de schaduw te zitten. De 11 meter diepe garage maakt het geheel compleet. Naast deze garage is een evenzo grote carport.
De woning is op korte afstand van openbaar vervoer en uitvalswegen gelegen. Het centrum van het dorp is op fietsafstand te bereiken. Met 10 minuten fietsen ben je bij het Heerderstrand en zijn de uitgestrekte Veluwse bossen op loopafstand te bereiken. Met een half uurtje ben in hartje Apeldoorn en Zwolle is ruim een kwartier autorijden.
Indeling:
Begane grond:
Entree/hal. Zeer royale living van circa 50 m² met vloerverwarming, houtkachel (ter overname) en apart eetgedeelte. Zeer luxe handgemaakte open keuken in U-vorm voorzien van een inductiekookplaat, afzuigkap, combi-oven, koffiemachine, Quooker en een vaatwasser. Vanuit de woonkamer loop je via de openslaande tuindeuren naar de overkapping die achter de woning zit.
Tussenhal, bijkeuken met aansluiting voor de wasmachine en de droger. Badkamer met douche, vrij hangend toilet en wastafel.
1e verdieping:
Overloop. 3 ruime slaapkamers met PVC-vloer en dakkapel. Badkamer met inloopdouche, dubbele wastafel, ligbad en een 2e zwevend toilet.
2e verdieping:
Via een vaste trap te bereiken royale zolderverdieping met de mogelijkheid voor een ruime extra kamer. Hier is veel bergruimte en tevens de opstelling van de HR cv combi ketel.
Ideaal geschikt voor de liefhebber van een complete, royale en luxe woning uit 2012. Zeker een bezichtiging waard!
Kenmerken
Overdracht
- Laatste vraagprijs
- € 775.000 kosten koper
- Vraagprijs per m²
- € 3.491
- Status
- Verkocht
Bouw
- Soort woonhuis
- Villa, 2-onder-1-kapwoning
- Soort bouw
- Bestaande bouw
- Bouwjaar
- 2013
- Soort dak
- Zadeldak bedekt met pannen
Oppervlakten en inhoud
- Gebruiksoppervlakten
- Wonen
- 222 m²
- Gebouwgebonden buitenruimte
- 20 m²
- Externe bergruimte
- 41 m²
- Perceel
- 893 m²
- Inhoud
- 788 m³
Indeling
- Aantal kamers
- 5 kamers (4 slaapkamers)
- Aantal badkamers
- 2 badkamers
- Badkamervoorzieningen
- 2 inloopdouches, 2 toiletten, wastafelmeubel, dubbele wastafel, en ligbad
- Aantal woonlagen
- 3 woonlagen
Energie
- Energielabel
- Isolatie
- Dakisolatie, dubbel glas, muurisolatie en vloerisolatie
- Verwarming
- Cv-ketel
- Warm water
- Cv-ketel
- Cv-ketel
- Vaillant (gas gestookt combiketel uit 2023, eigendom)
Kadastrale gegevens
- HEERDE A 3188
- Kadastrale kaart
- Oppervlakte
- 893 m²
- Eigendomssituatie
- Volle eigendom
Buitenruimte
- Ligging
- Aan rustige weg, buiten bebouwde kom en landelijk gelegen
- Tuin
- Achtertuin, voortuin en zijtuin
- Achtertuin
- 330 m² (21,00 meter diep en 17,00 meter breed)
- Ligging tuin
- Gelegen op het noordwesten bereikbaar via achterom
Garage
- Soort garage
- Carport en vrijstaande stenen garage
- Capaciteit
- 1 auto
- Voorzieningen
- Elektra
Parkeergelegenheid
- Soort parkeergelegenheid
- Op eigen terrein
Foto's 57
© 2001-2026 funda
























































