Dit huis op Funda: https://www.funda.nl/detail/koop/heerenveen/huis-badweg-20/43931508/

Omschrijving
Op loopafstand van alle (centrum) voorzieningen gelegen netjes onderhouden twee onder één kap woning met achterom, tuinhuis/fietsenberging en 157 m2 eigen grond. Leuke starterswoning in een sfeervolle buurt op loopafstand van open vaarwater. Mooie vrije ligging van de achtertuin op het zuidwesten. De afgelopen jaren is het huis goed onderhouden en er zijn drie slaapkamers.
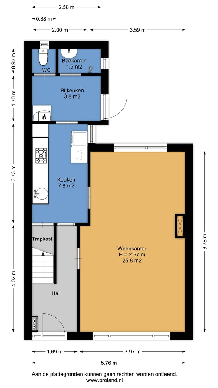
Indeling: hal, toilet, meterkast, werkkast/trapkast, lichte (doorzon) woonkamer, dichte keuken voorzien van diverse apparatuur (onder andere een 6 pits fornuis met grote oven), bijkeuken/achterom, apart toilet, badkamer met douche en vaste wastafel.
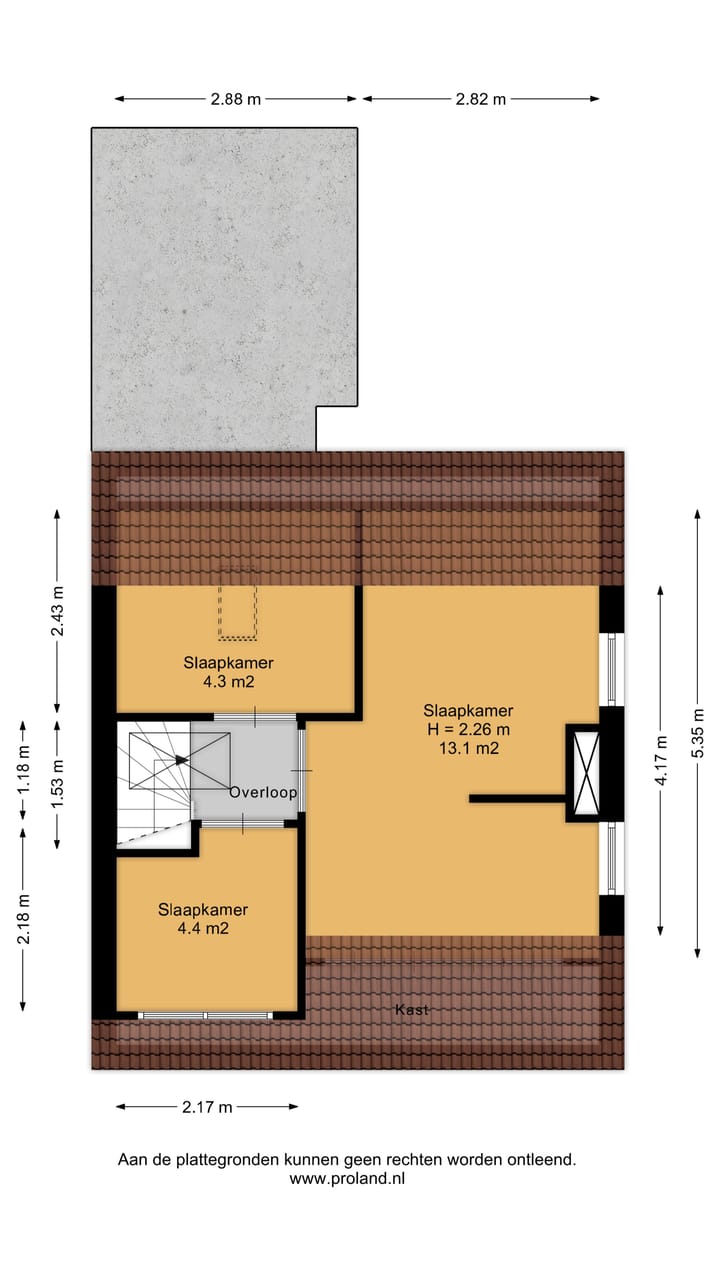
1e verdieping: overloop, 3 slaap-/werkkamers, diverse vaste kasten.
2e verdieping: bergzolder bereikbaar via vlizotrap.
Algemeen: bouwjaar 1936, deels kunststof ramen en kozijnen met dubbel glas, gevelisolatie, centrale verwarming en warm water via Remeha HR combiketel (2022), woonoppervlakte: 74,5 m2, energielabel E (geldig tot 30-12-2026).
Kenmerken
Overdracht
- Laatste vraagprijs
- € 249.000 kosten koper
- Vraagprijs per m²
- € 3.320
- Status
- Verkocht
Bouw
- Soort woonhuis
- Eengezinswoning, 2-onder-1-kapwoning
- Soort bouw
- Bestaande bouw
- Bouwjaar
- 1936
- Specifiek
- Gedeeltelijk gestoffeerd
- Soort dak
- Zadeldak bedekt met pannen
Oppervlakten en inhoud
- Gebruiksoppervlakten
- Wonen
- 75 m²
- Perceel
- 157 m²
- Inhoud
- 305 m³
Indeling
- Aantal kamers
- 4 kamers (3 slaapkamers)
- Aantal badkamers
- 1 badkamer en 1 apart toilet
- Badkamervoorzieningen
- Douche en wastafel
- Aantal woonlagen
- 2 woonlagen
- Voorzieningen
- TV kabel
Energie
- Energielabel
- E
- Isolatie
- Dubbel glas
- Verwarming
- Cv-ketel
- Warm water
- Cv-ketel
- Cv-ketel
- Remeha Tzerra Ace 28 (gas gestookt combiketel uit 2022, eigendom)
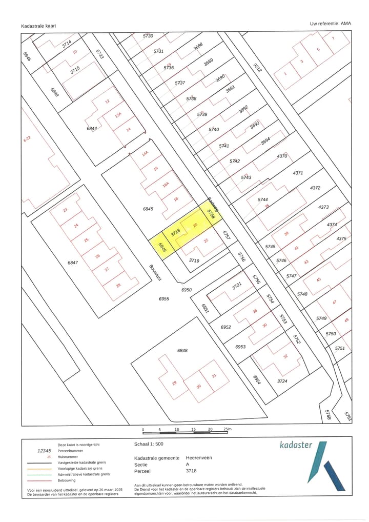
Kadastrale gegevens
- HEERENVEEN A 3718
- Kadastrale kaart
- Oppervlakte
- 96 m²
- Eigendomssituatie
- Volle eigendom
- HEERENVEEN A 5758
- Kadastrale kaart
- Oppervlakte
- 27 m²
- Eigendomssituatie
- Volle eigendom
- HEERENVEEN A 6949
- Kadastrale kaart
- Oppervlakte
- 34 m²
- Eigendomssituatie
- Volle eigendom
Buitenruimte
- Ligging
- Aan rustige weg en in centrum
- Tuin
- Achtertuin
- Achtertuin
- 48 m² (8,00 meter diep en 6,00 meter breed)
Bergruimte
- Schuur/berging
- Vrijstaande houten berging
Parkeergelegenheid
- Soort parkeergelegenheid
- Betaald parkeren en parkeervergunningen
Foto's 46
© 2001-2025 funda













































