
Omschrijving
Wonen op een royale hoek, met uitzicht op de velden van KSV, een zonnige tuin aan het water én ruimte voor het hele gezin? Vogelzangstraat 35 biedt het allemaal. Deze verrassend ruime gezinswoning beschikt over maar liefst vijf slaapkamers, een gloednieuwe badkamer, een sfeervolle woonkamer en een fijne tuin op het zuiden met achterom en een royale berging van ruim 12 m². Hier combineer je comfort, ruimte en een heerlijke ligging.
Wonen aan de Vogelzangstraat in Heerhugowaard betekent wonen in een rustige en kindvriendelijke straat met alle voorzieningen binnen handbereik. Hier profiteer je van de gemoedelijke sfeer van de buurt, terwijl je tegelijkertijd dicht bij het levendige stadshart van Heerhugowaard woont. Winkels, scholen en sportvoorzieningen zijn op loop- of fietsafstand bereikbaar en ook het station en uitvalswegen zijn snel te bereiken. Bovendien nodigen de nabijgelegen parken en het recreatiegebied Park van Luna uit om in je vrije tijd te genieten van groen, water en ruimte.
Begane grond
Bij binnenkomst tref je de hal met garderobe, meterkast en trapopgang. Vanuit hier stap je de royale woonkamer binnen, waar de warme houten vloer direct voor sfeer zorgt. De woonkamer is straatgericht en biedt een gezellig uitzicht op de rustige straat. Aan de tuinzijde vind je de woonkeuken: een knusse, nette ruimte met moderne inbouwapparatuur en grote raampartijen die zorgen voor een prachtige lichtinval. Vanuit de keuken heb je toegang tot een compacte tussenhal met de berging en het moderne, recent vernieuwde toilet.
Eerste verdieping
De overloop biedt toegang tot drie slaapkamers. Twee kamers zijn royaal van formaat en geschikt voor een tweepersoonsbed, terwijl de derde kamer thans in gebruik is als inloopkast, maar uiteraard ook prima als slaapkamer of werkkamer kan dienen. De nieuwe badkamer is een frisse en eigentijdse ruimte, helemaal klaar voor dagelijks comfort.
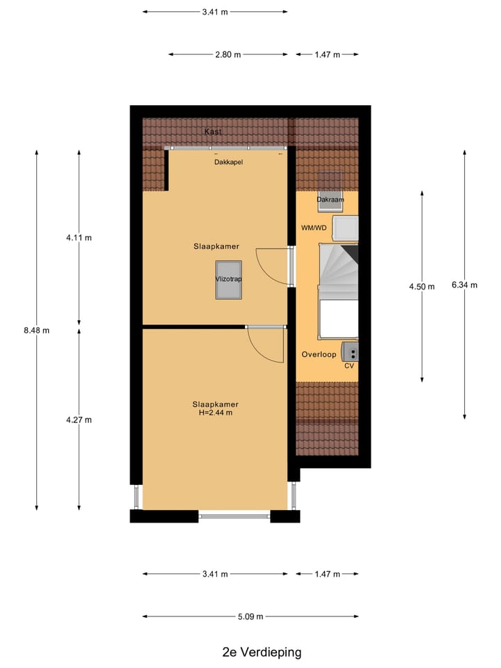
Tweede verdieping
Een vaste trap leidt naar de verrassend ruime tweede verdieping. Dankzij de grote dakkapel is er een zee aan licht en ruimte ontstaan. Op de overloop vind je de technische opstelling met cv-ketel, mechanische ventilatie en aansluitingen voor de wasmachine en droger. Daarnaast zijn er twee volwaardige slaapkamers, waarvan één momenteel als muziekstudio is ingericht. Ook hier is ruimte in overvloed – ideaal voor grotere gezinnen, hobby’s of werken vanuit huis.
Buitenleven
De achtertuin is een heerlijke plek om te genieten. Gelegen op het zonnige zuidoosten, met uitzicht over het water, vormt dit de perfecte plek om lange zomerdagen door te brengen. De tuin beschikt over een achterom en een grote berging van ruim 12 m², ideaal voor fietsen, gereedschap en extra opslag.
Omgeving
De ligging is minstens zo aantrekkelijk. Je woont hier nabij het Kruis en met vrij uitzicht op de velden van KSV. Voor de deur kun je altijd gemakkelijk parkeren. Het winkelcentrum Middenwaard ligt op korte fietsafstand en ook het NS-station is binnen enkele minuten bereikbaar. Kortom: een centrale, praktische en tegelijk rustige woonomgeving.
Kenmerken
Overdracht
- Laatste vraagprijs
- € 435.000 kosten koper
- Vraagprijs per m²
- € 3.321
- Status
- Verkocht
Bouw
- Soort woonhuis
- Eengezinswoning, eindwoning
- Soort bouw
- Bestaande bouw
- Bouwjaar
- 1994
- Soort dak
- Plat dak bedekt met bitumineuze dakbedekking
Oppervlakten en inhoud
- Gebruiksoppervlakten
- Wonen
- 131 m²
- Externe bergruimte
- 12 m²
- Perceel
- 195 m²
- Inhoud
- 500 m³
Indeling
- Aantal kamers
- 6 kamers (5 slaapkamers)
- Aantal badkamers
- 1 badkamer en 1 apart toilet
- Badkamervoorzieningen
- Dubbele wastafel, inloopdouche, toilet, en wastafelmeubel
- Aantal woonlagen
- 3 woonlagen en een vliering
- Voorzieningen
- Buitenzonwering, dakraam, mechanische ventilatie, natuurlijke ventilatie, en TV kabel
Energie
- Energielabel
- B
- Isolatie
- Dakisolatie, dubbel glas, muurisolatie en vloerisolatie
- Verwarming
- Cv-ketel
- Warm water
- Cv-ketel
- Cv-ketel
- Intergas (gas gestookt combiketel uit 2019, eigendom)
Kadastrale gegevens
- HEERHUGOWAARD P 2547
- Kadastrale kaart
- Oppervlakte
- 195 m²
- Eigendomssituatie
- Volle eigendom
Buitenruimte
- Ligging
- Aan rustige weg, aan water, beschutte ligging en in woonwijk
- Tuin
- Achtertuin en voortuin
- Achtertuin
- 55 m² (10,00 meter diep en 5,50 meter breed)
- Ligging tuin
- Gelegen op het zuidoosten bereikbaar via achterom
Bergruimte
- Schuur/berging
- Vrijstaande stenen berging
- Voorzieningen
- Elektra
Parkeergelegenheid
- Soort parkeergelegenheid
- Openbaar parkeren
Foto's 53
© 2001-2025 funda




















































