Dit huis op Funda: https://www.funda.nl/detail/koop/heerlen/huis-eekhoornstraat-10/43271154/

Eekhoornstraat 106414 VM HeerlenHeksenberg
€ 350.000 k.k.
Omschrijving
UITSTEKEND ONDERHOUDEN HALFVRIJSTAAND WOONHUIS MET RIANTE GARAGE EN ONDERHOUDSARME TUIN GELEGEN IN EEN RUSTIGE STRAAT OP LOOPAFSTAND VAN DE BRUNSSUMMERHEIDE
KELDER:
Voorraadruimte.
BEGANE GROND:
Hal met trap naar verdieping, modern toilet en toegang tot kelder; open leefkeuken met moderne aanbouwinstallatie voorzien van inbouwapparatuur (inductiekookplaat - afzuigkap - vaatwasser - koelkast - vriezer - magnetron - oven) en toegang tot overdekt terras; woonkamer; onderhoudsarme tuin met overdekt terras, achterom en toegang tot garage; garage met smeerput, meterkast, zolderruimte (bereikbaar via vaste trap), elektrisch bedienbare sectionaalpoort; oprit.
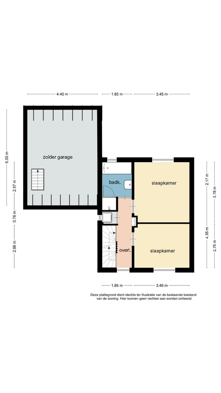
VERDIEPING:
Overloop met vaste trap naar zolderverdieping en washok; 2 slaapkamers; moderne badkamer met ligbad, douche en vaste wastafel.
ZOLDER:
Overloop; bergruimte, hier hangt de cv-combiketel; 3e slaapkamer met dakkapel en bergruimte.
BIJZONDERHEDEN:
Deze INSTAPKLARE woning is gelegen in een rustige en geliefde woonomgeving. Vanaf het moment van aankoop is deze woning op smaakvolle en deugdelijke wijze uitgebouwd, gemoderniseerd en bijgehouden. De woning is voorzien van kunststof kozijnen met HR++-beglazing en rolluiken. Daarbij zijn er op iedere verdieping airco's geplaatst. De garage is voor diverse doeleinden geschikt. Naast de garage is er nog voldoende parkeergelegenheid op het eigen terrein.
Bouwjaar: 1948. Inhoud: 650 m3. Perceelgrootte: 306 m2. Woonoppervlakte: 118 m2. Overige inpandige ruimte: 76 m2.
De waarborgsom/bankgarantie is 10% van de koopsom. De koper dient deze binnen 2 weken nadat het financieringsvoorbehoud is verlopen bij de desbetreffende notaris te deponeren.
Ter bescherming van de belangen van zowel koper als ook verkoper wordt uitdrukkelijk gesteld dat een koopovereenkomst met betrekking tot deze onroerende zaak eerst dan tot stand komt nadat koper en verkoper de koopovereenkomst hebben getekend (schriftelijkheidsvereiste).
Alle door ons kantoor verstrekte informatie omtrent onroerende zaken, moet beschouwd worden als een uitnodiging om in onderhandeling te treden, en is geheel vrijblijvend! Aangegeven maten zijn slechts bij benadering. Aan deze beperkte info kunnen geen rechten worden ontleend. Indien c.v.ketel en/of warmwatervoorziening een huurtoestel is, dient koper de huurovereenkomst over te nemen.
Een (eventueel) bijgevoegde plattegrond dient uitsluitend als globale indicatie/visualisatie. Hieraan kunnen uitdrukkelijk tevens geen rechten worden ontleend.
Kenmerken
Overdracht
- Aangeboden sinds
- Aanvaarding
- In overleg
- Vraagprijs
- € 350.000 kosten koper
- Vraagprijs per m²
- € 2.966
- Status
- Beschikbaar
Bouw
- Soort woonhuis
- Eengezinswoning, halfvrijstaande woning
- Soort bouw
- Bestaande bouw
- Bouwjaar
- 1948
Oppervlakten en inhoud
- Gebruiksoppervlakten
- Wonen
- 118 m²
- Overige inpandige ruimte
- 76 m²
- Gebouwgebonden buitenruimte
- 16 m²
- Perceel
- 306 m²
- Inhoud
- 650 m³
Indeling
- Aantal kamers
- 5 kamers (3 slaapkamers)
- Aantal badkamers
- 1 badkamer en 1 apart toilet
- Badkamervoorzieningen
- Inloopdouche, ligbad, toilet, en wastafel
- Aantal woonlagen
- 2 woonlagen, een zolder, en een kelder
- Voorzieningen
- Airconditioning en rolluiken
Energie
- Energielabel
- C
- Isolatie
- Dakisolatie en muurisolatie
- Verwarming
- Cv-ketel
- Warm water
- Cv-ketel
- Cv-ketel
- Nefit Topline (gas gestookt combiketel uit 2017, eigendom)
Kadastrale gegevens
- HEERLEN B 6232
- Kadastrale kaart
- Oppervlakte
- 306 m²
- Eigendomssituatie
- Volle eigendom
Buitenruimte
- Ligging
- Aan rustige weg, in bosrijke omgeving en in woonwijk
- Tuin
- Achtertuin en voortuin
- Achtertuin
- 75 m² (9,50 meter diep en 10,00 meter breed)
- Ligging tuin
- Gelegen op het zuidoosten bereikbaar via achterom
Garage
- Soort garage
- Aangebouwde stenen garage
- Capaciteit
- 2 auto's
Foto's 39
© 2001-2025 funda






































