
Omschrijving
Stel je eens voor...
Een schitterende ligging van deze eindwoning in de Vesting die zich kenmerkt door een prachtig uitzicht op de haven aan de achterzijde en aan de voorzijde een dakterras waar je kunt genieten van de middag- en avondzon met zicht op het Haringvliet. Oftewel, een vrij uitzicht aan beide zijdes en volledige privacy. En dat letterlijk om de hoek van de levendigheid van de Vesting en wonen aan het water. Laat je verrassen door de gezelligheid van de terrasjes, de historische panden, wandelpaden en het strand. En je hebt de mogelijkheid om je boot voor de deur af te meren.
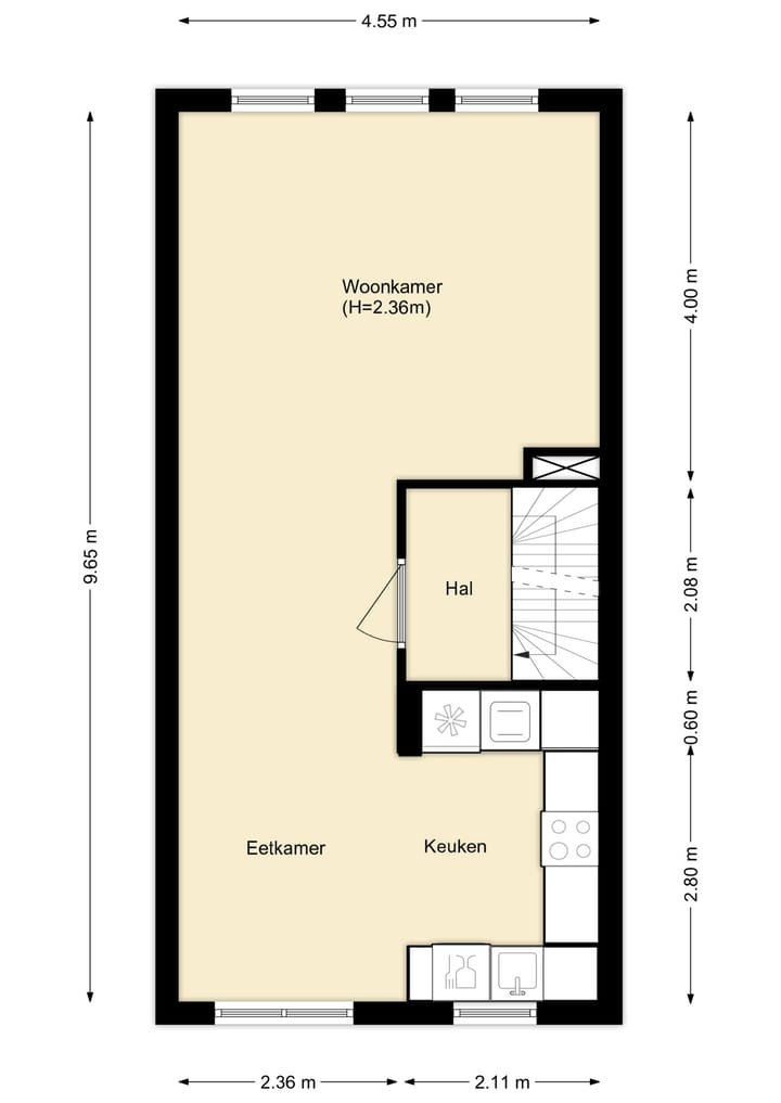
Deze kadewoning is door de huidige eigenaren met liefde onderhouden en kent met vier slaapkamers en een woonoppervlakte van 138m2 veel mogelijkheden. Op de begane grond een aparte (slaap)kamer, maar dit kan voor vele andere doeleinden worden gebruikt; kantoor, tv- of kinderkamer, praktijk of als tweede keuken. Mogelijkheden genoeg, de keuze is aan jou.
Je hebt de mogelijkheid om via de voor- of achterkant de woning te betreden. De achterkant, grenzend aan de jachthaven, geeft direct toegang tot een mooie kamer op de begane grond. Nu in gebruik als tweede woonkamer maar uiteraard kun je hier jouw eigen invulling aan geven. Zet de deur open en je ervaart direct het wonen aan de haven. De inpandige berging heeft een eigen entree en is netjes afgewerkt met betegelde wanden en een tegelvloer met vloerverwarming. Tevens bevindt zich hier de wasmachineaansluiting en de opstelplaats voor de droger (met doorvoer naar buiten). De gehele begane grondvloer biedt vloerverwarming (uitgezonderd het toilet).
Op de eerste verdieping vind je de woonverdieping waardoor je maximale privacy geniet. En niet alleen dat, want door de hogere ligging geniet je nog beter van het uitzicht. In de woonkamer aan de achterzijde valt direct de grote raampartijen op. Een optimale beleving van het water en de boten voor de deur. De keuken bevindt zich aan de voorkant met uitzicht op de wallen. Deze is uitgerust met een luxe inbouwkeuken (Grando) voorzien van koelvriesinstallatie (Pelgrim), koffiemachine (Miele), gas op glaskookplaat met aparte wokpit, combi- oven (Etna, 2025) en een vaatwasmachine (Siemens). In 2018 is de PVC vloer gelegd door Van Son Vloeren en de ramen aan de keukenzijde zijn voorzien van elektrisch bedienbare screens.
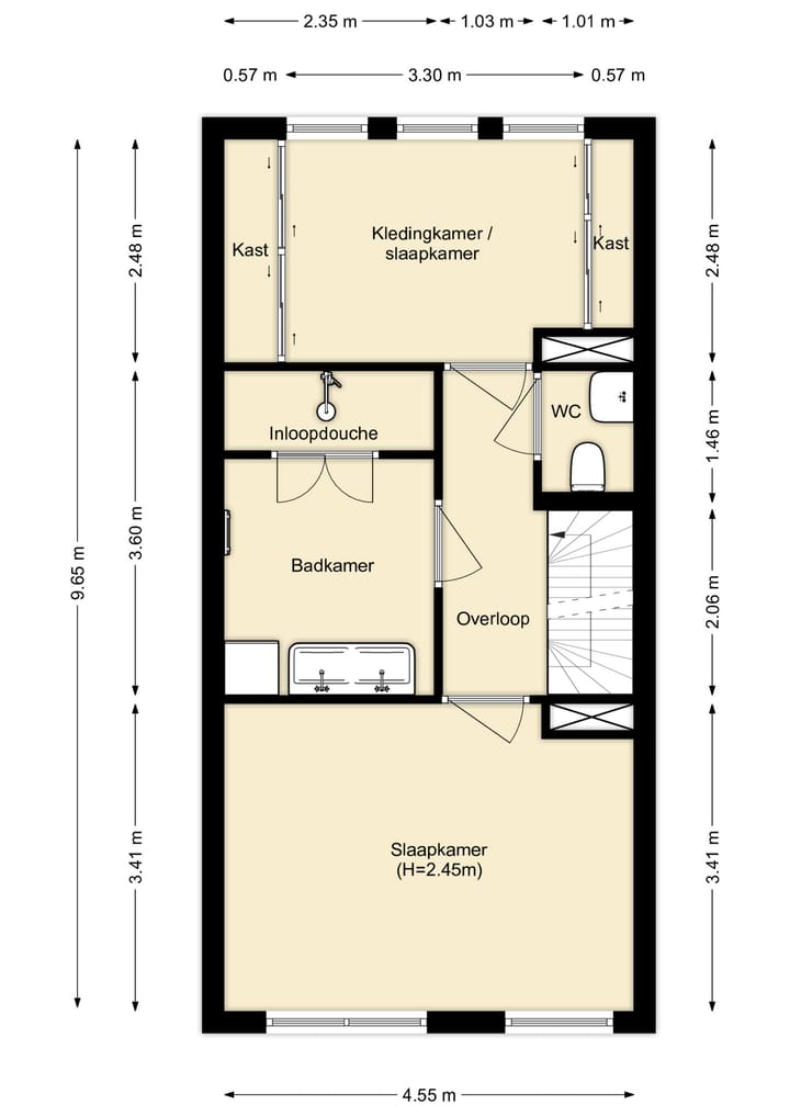
Twee ruime slaapkamers op de tweede verdieping over de volledige breedte van de woning. De hoofdslaapkamer aan de voorzijde is voorzien van elektrische rolluiken. De badkamer is ruim van opzet en voorziet in een luxe cabine met massagejets, regen- en handdouche (Villeroy & Boch), een wastafelmeubel en een designradiator. De wanden zijn deels betegeld en deels voorzien van betoncire. Een prettig gegeven is het toilet, separaat in de hal.
Laat je verrassen door de bovenste verdieping. Want naast een vierde slaapkamer heb je aangrenzend een dakterras van 14 m2. De slaapkamer biedt een spectaculair uitzicht door de openslaande deuren. Vanaf het dakterras geniet je van de middagzon totdat deze ondergaat. Geniet van een glas wijn, uitzicht op het Haringvliet en de ondergaande zon. Wat wil je nog meer? Het zonnescherm is elektrisch bedienbaar en voorzien van een windsensor en door de hoekligging biedt het terras extra privacy.
De technische ruimte is keurig weggewerkt en voorziet in de CV-installatie (Atag 2015) en warmteterugwininstallatie.
Een ligging op de hoek, wonen in de historische Vesting en overal een schitterend uitzicht.
Dat is de Burgemeester van der Jagtkade 37.
Uitblinkers:
-HR++ beglazing in de gehele woning (2003);
-screens op de eerste verdieping aan de wallenzijde, in de hoofdslaapkamer zijn rolluiken geplaatst;
-horren op elke verdieping;
-inbouwverlichting, gestuukte plafonds en wanden door het hele huis;
-mogelijkheden voor een slaapkamer (en badkamer), praktijk/salon of kantoor aan huis;
-buitenschilderwerk professioneel uitgevoerd in 2023.
Bijzonderheden:
-beschermd stads en/of dorpsgezicht;
-oplevering; in overleg (voorkeur verkopers begin februari 2026).
Kenmerken
Overdracht
- Laatste vraagprijs
- € 499.000 kosten koper
- Vraagprijs per m²
- € 3.616
- Status
- Verkocht
Bouw
- Soort woonhuis
- Eengezinswoning, eindwoning
- Soort bouw
- Bestaande bouw
- Bouwjaar
- 2003
- Soort dak
- Zadeldak bedekt met pannen
Oppervlakten en inhoud
- Gebruiksoppervlakten
- Wonen
- 138 m²
- Overige inpandige ruimte
- 10 m²
- Gebouwgebonden buitenruimte
- 15 m²
- Perceel
- 60 m²
- Inhoud
- 502 m³
Indeling
- Aantal kamers
- 5 kamers (4 slaapkamers)
- Aantal badkamers
- 1 badkamer en 2 aparte toiletten
- Badkamervoorzieningen
- Douche, dubbele wastafel, en wastafelmeubel
- Aantal woonlagen
- 4 woonlagen
- Voorzieningen
- Alarminstallatie, buitenzonwering, en rolluiken
Energie
- Energielabel
- A
- Isolatie
- Dakisolatie, dubbel glas, HR-glas, muurisolatie en vloerisolatie
- Verwarming
- Cv-ketel en warmte terugwininstallatie
- Warm water
- Cv-ketel
- Cv-ketel
- Atag CW5 (gas gestookt combiketel uit 2015, eigendom)
Kadastrale gegevens
- HELLEVOETSLUIS A 2618
- Kadastrale kaart
- Oppervlakte
- 60 m²
- Eigendomssituatie
- Volle eigendom
Buitenruimte
- Ligging
- Aan rustige weg, aan vaarwater, aan water, open ligging en vrij uitzicht
- Balkon/dakterras
- Dakterras aanwezig
Bergruimte
- Schuur/berging
- Inpandig
- Voorzieningen
- Elektra, verwarming en stromend water
- Isolatie
- Volledig geïsoleerd
Parkeergelegenheid
- Soort parkeergelegenheid
- Openbaar parkeren
Foto's 59
© 2001-2026 funda


























































