
Omschrijving
Stel je eens voor...
Wonen op een hoek met een rustige en open ligging in Den Bonsen Hoek. Een heerlijke plek in de wijk met een centrale ligging dicht bij de voorzieningen.
De straat is doodlopend en kent daardoor alleen bestemmingsverkeer met voldoende parkeergelegenheid. Een mooie plek met een singel voor de deur en een speeltuin/parkje met vijver om de hoek.
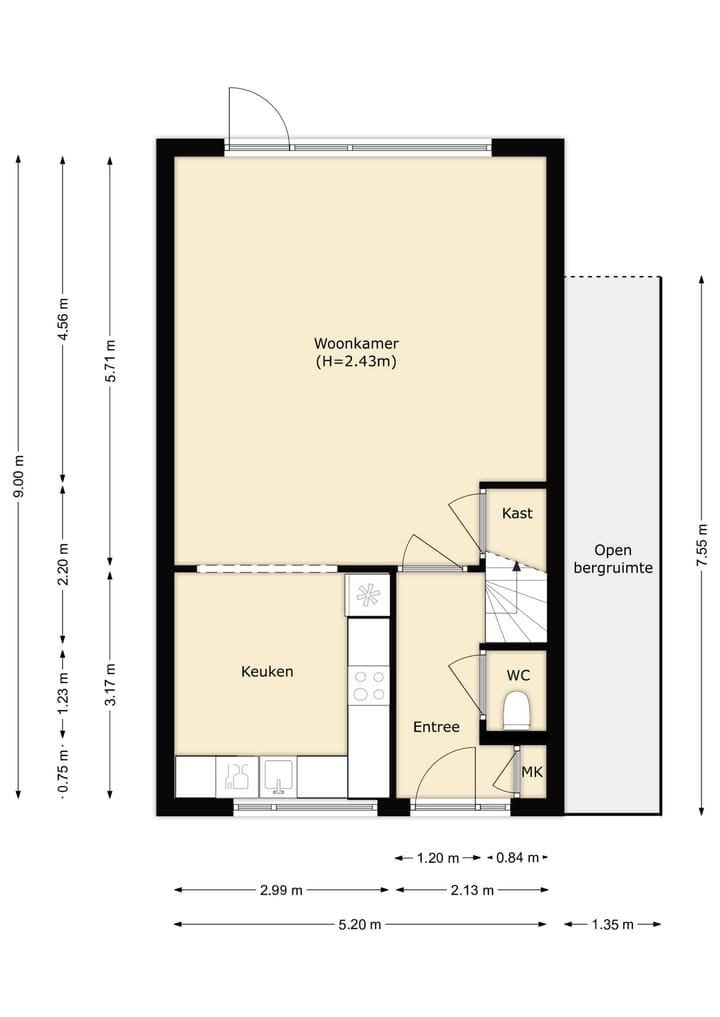
Aan de voorzijde van de woning vind je de keuken die een bijzonder ruime opzet kent. Een neutrale kleurstelling in het wit, afgewerkt met een 'hout look' aanrechtblad. Uiteraard geen gebrek aan comfort met alle inbouwapparatuur. Zo heb je de beschikking over een koelkast, vriezer, combi-oven, vaatwasser, inductie kookplaat en afzuigkap.
Door haar ligging ervaar je in het woongedeelte geen directe inkijk, wel zo prettig een beetje privacy. In combinatie met een ligging op het zuiden maakt het dit ook tot een lichte woning. Dit betekent dat je in de tuin geniet van de zon van 's ochtends vroeg, totdat deze ondergaat. Door de ligging op de hoek heb je ook een mooi stuk zijtuin tot je beschikking, aan bergruimte geen gebrek. De tuin is gerenoveerd in 2019, voor een groot deel bestraat en voorzien van kunstgras. De overkapping is zelfs pas één jaar oud, de plek waar je overdag geniet van de schaduw en ‘s avonds van de ondergaande zon.
Op de eerste verdieping beschik je over mooi formaat kamers, enerzijds door haar rechte gevel en anderzijds door de dakkapel aan de achterzijde. Uitgevoerd in kunststof en de elektrische rolluiken zorgen voor een prettig klimaat in je slaapkamer.
De badkamer is uitgevoerd met grote vloer- en wandtegels, antraciet en wit. Je hebt een ruime inloopdouche, wastafelmeubel en tweede toilet.
De zolderverdieping is een open ruimte, maar biedt de mogelijkheid om hier een vierde slaapkamer te realiseren. Op dit moment biedt deze verdieping vooral veel berg- en kastruimte, naast de opstelplaats voor je wasmachine/droger en CV-ketel (bouwjaar 2020).
Een hoekwoning met open ligging, nette keuken/sanitair en centraal bij de voorzieningen.
Dat is de Cannenburchstraat 1.
Uitblinkers:
-woning volledig geïsoleerd (vanuit de bouw);
-schilderwerk uitgevoerd in 2020 (enkele delen in 2024);
-dakkapel eerste verdieping uitgevoerd in kunststof kozijnen met rolluiken;
-tuin gerenoveerd in 2019, overkapping geplaatst in 2023;
-badkamer vernieuwd in 2015;
-keuken vernieuwd in 2016 (oven en vaatwasser vernieuwd in 2023);
-oplevering: in overleg (snelle oplevering mogelijk).
Kenmerken
Overdracht
- Laatste vraagprijs
- € 395.000 kosten koper
- Vraagprijs per m²
- € 3.692
- Status
- Verkocht
Bouw
- Soort woonhuis
- Eengezinswoning, hoekwoning
- Soort bouw
- Bestaande bouw
- Bouwjaar
- 1987
- Soort dak
- Zadeldak bedekt met pannen
Oppervlakten en inhoud
- Gebruiksoppervlakten
- Wonen
- 107 m²
- Gebouwgebonden buitenruimte
- 10 m²
- Externe bergruimte
- 5 m²
- Perceel
- 156 m²
- Inhoud
- 371 m³
Indeling
- Aantal kamers
- 5 kamers (4 slaapkamers)
- Aantal badkamers
- 1 badkamer en 1 apart toilet
- Badkamervoorzieningen
- Inloopdouche, toilet, en wastafelmeubel
- Aantal woonlagen
- 2 woonlagen en een zolder
- Voorzieningen
- Buitenzonwering en mechanische ventilatie
Energie
- Energielabel
- C
- Isolatie
- Dakisolatie, dubbel glas, muurisolatie en vloerisolatie
- Verwarming
- Cv-ketel
- Warm water
- Cv-ketel
- Cv-ketel
- Remeha Avant CW4 (gas gestookt combiketel uit 2020, eigendom)
Kadastrale gegevens
- HELLEVOETSLUIS L 1542
- Kadastrale kaart
- Oppervlakte
- 156 m²
- Eigendomssituatie
- Volle eigendom
Buitenruimte
- Ligging
- Aan rustige weg, in woonwijk en open ligging
- Tuin
- Achtertuin, voortuin en zijtuin
- Achtertuin
- 70 m² (10,00 meter diep en 7,00 meter breed)
- Ligging tuin
- Gelegen op het zuiden bereikbaar via achterom
Bergruimte
- Schuur/berging
- Vrijstaande stenen berging
- Voorzieningen
- Elektra
Parkeergelegenheid
- Soort parkeergelegenheid
- Openbaar parkeren
Foto's 49
© 2001-2025 funda
















































