
Opzoomerlaan 1163221 AP HellevoetsluisDe Vesting
€ 1.150.000 k.k.
BlikvangerUnieke vrijstaande woning in de historische vesting gelegen!
Omschrijving
Midden in de historische vesting van Hellevoetsluis, op een royaal perceel van maar liefst 959 m², staat deze unieke vrijstaande woning die moderne luxe combineert met karakter en historie. Een woning, ontworpen door Zeelenberg Architecten, als deze kom je zelden tegen: gebouwd op de oude fundering van een voormalige kerk, waarvan het metselwerk op verrassende wijze nog zichtbaar is in het souterrain.
Bij binnenkomst valt direct de ruimtelijkheid op. De woonkamer heeft een indrukwekkende hoge nok met zicht op de vide, een sfeervolle gashaard en een grote schuifpui naar de tuin. Het daglicht stroomt rijkelijk binnen, mede dankzij de ramen die tot op de vloer reiken aan de voor- en aan de achterzijde. De keuken is een echte eyecatcher: handgemaakt door Harry Westhoeve, volledig op maat, en voorzien van hoogwaardige Neff apparatuur en een stijlvol schiereiland.
Aan de zijkant van de woning bevindt zich een ruime serre, een fijne plek om het hele jaar door van de tuin te genieten, ongeacht het weer.
De woning biedt een zee aan ruimte, met meerdere slaapkamers op de begane grond en eerste verdieping, én onder het huis een compleet souterrain. Deze extra verdieping is verrassend veelzijdig: nu deels in gebruik als opslag, maar ook perfect als wellness ruimte, bioscoop of muziekkamer. Dankzij daglichttoetreding in twee grote ruimtes zijn de mogelijkheden eindeloos.
De tuin rondom het huis is fraai aangelegd en biedt volop privacy, meerdere terrassen, een tuinhuis en zelfs een vijver met vissen. Met een dubbele garage, een automatisch hekwerk, parkeerruimte voor meerdere auto's én een aparte plek voor een camper, is dit een droomhuis voor wie ruimte, comfort en karakter zoekt, op een historische plek waar je het echte Hellevoetsluis kunt beleven.
Het gezellige centrum van Hellevoetsluis, met haar pittoreske straatjes, terrassen en diverse winkels, ligt op loopafstand. Hier proef je de sfeer van de oude vesting en geniet je van het beste wat deze charmante havenstad te bieden heeft.
Rondleiding door de woning:
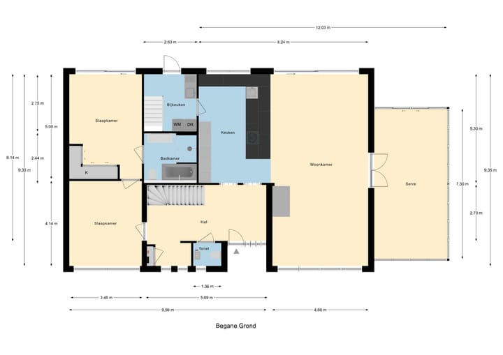
Bij binnenkomst in de woning valt direct de ruime hal op, hier is toegang tot het moderne toilet, een garderobe en de open trap naar de verdieping. Vanuit de hal loop je door naar de royale woonruimte, met een indrukwekkende nokhoogte en zicht op de vide. De grote ramen tot aan de vloer zorgen voor een overvloed aan lichtinval, terwijl de gashaard het geheel een warme sfeer geeft. Aan de achterzijde biedt een brede schuifpui toegang tot het terras en de tuin.
Aan de woning vast bevindt zich een ruime serre, die dankzij de grote raampartijen een prachtige verbinding vormt met de tuin. De serre is voorzien van automatische zonwering, die zich volledig zelfstandig aanpast op basis van zonlicht, bewolking en wind, voor optimaal comfort onder alle weersomstandigheden.
De open woonkeuken is het hart van het huis. Deze is op maat gemaakt door de keukenarchitect Harry Westhoeve uit Ouddorp, volledig met de hand vervaardigd in eiken fineer, met zwarte interieurs in de kastwanden en een stijlvol schiereiland. De keuken is uitgerust met luxe Neff-apparatuur, waaronder een inductiekookplaat met geïntegreerde afzuiging, stoomoven, koffieautomaat en quooker. Het composiet werkblad loopt elegant door in de vensterbank en het schiereiland. Direct grenzend aan de keuken ligt de praktische bijkeuken met aansluitingen voor wasmachine en droger, op de vliering de elektrische boiler en vanuit de bijkeuken toegang tot het terras.
Op de begane grond bevinden zich twee slaapkamers, beide voorzien van een stijlvolle en onderhoudsvriendelijke pvc vloer. Vanuit de eerste kamer, die uitstekend dienst kan doen als werk- of logeerkamer, loop je door naar de royale hoofdslaapkamer aan de achterzijde van de woning. Deze kamer beschikt over een grote schuifpui naar de tuin, een praktische kastenwand en een elektrische radiator. Aangrenzend bevindt zich de luxe ensuite badkamer (2023), uitgerust met een ligbad, een inloopdouche met glazen schuifdeur en een infrarood Sunshower, een dubbele wastafel met meubel, een verwarmde spiegel met verlichting, elektrische vloerverwarming en een slim afzuigsysteem.
Eerste verdieping:
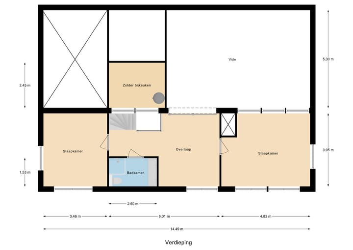
De eerste verdieping is voorzien van een laminaatvloer en heeft een royale overloop met zicht op de vide. Hier bevinden zich twee lichte slaapkamers, waarvan één met grote dakkapel. De verdieping beschikt over een eigen badkamer met douche, toilet, dubbele wastafel en designradiator.
Souterrain:
Onder de woning bevindt zich een volledig souterrain, bereikbaar via een vaste trap vanuit de bijkeuken. Deze verrassend ruime verdieping strekt zich uit onder de gehele woning én onder de serre, en ontvangt bovendien daglicht, wat zorgt voor een prettige sfeer. Momenteel is het souterrain ingericht met een wellness ruimte, een bioscoop en veel praktische bergruimte, maar de mogelijkheden zijn eindeloos – denk aan een atelier, hobbyruimte of zelfs een gastenverblijf. Vanuit het souterrain is er directe toegang tot de dubbele garage. Een bijzonder detail is de originele fundering van de oude kerk waarop deze woning is gebouwd, die nog steeds zichtbaar is en de ruimte extra karakter en geschiedenis meegeeft.
Tuin:
Ook buiten is de woning minstens zo indrukwekkend als vanbinnen. De fraai aangelegde tuin omsluit de woning volledig en biedt volop privacy, met meerdere terrassen, een vijver met vissen, een tuinhuis en een rijke variatie aan groen. De dubbele garage is uitgerust met automatische deuren, en het terrein is volledig afsluitbaar dankzij een elektrisch bedienbaar toegangshek. Parkeren op eigen terrein is geen enkel probleem, er is ruimte voor meerdere auto’s én een camper. Aan de voorzijde is een automatisch screen geplaatst, terwijl aan de achterzijde elektrische zonwering zorgt voor extra comfort op zonnige dagen.
De unieke ligging, midden in de historische vesting van Hellevoetsluis en direct grenzend aan de Wallen, maakt deze woning tot een verborgen parel.
Wij behartigen de belangen van de verkopende partij.
Neem uw eigen NVM aankoop makelaar mee!
Alle verstrekte informatie moet beschouwd worden als uitnodiging tot het doen van een bod of om in onderhandeling te treden.
Er kunnen geen rechten worden ontleend aan deze woninginformatie.
Kenmerken
Overdracht
- Aangeboden sinds
- Aanvaarding
- In overleg
- Vraagprijs
- € 1.150.000 kosten koper
- Vraagprijs per m²
- € 3.846
- Status
- Beschikbaar
Bouw
- Soort woonhuis
- Eengezinswoning, vrijstaande woning
- Soort bouw
- Bestaande bouw
- Bouwjaar
- 1977
- Soort dak
- Samengesteld dak bedekt met pannen
Oppervlakten en inhoud
- Gebruiksoppervlakten
- Wonen
- 299 m²
- Overige inpandige ruimte
- 125 m²
- Perceel
- 959 m²
- Inhoud
- 1.538 m³
Indeling
- Aantal kamers
- 9 kamers (4 slaapkamers)
- Aantal badkamers
- 3 badkamers en 1 apart toilet
- Badkamervoorzieningen
- Sauna, 2 dubbele wastafels, inloopdouche, ligbad, 2 toiletten, vloerverwarming, 3 wastafelmeubels, en 2 douches
- Aantal woonlagen
- 3 woonlagen
- Voorzieningen
- Buitenzonwering, sauna, en schuifpui
Energie
- Energielabel
- C
- Isolatie
- Dubbel glas, HR-glas, muurisolatie en vloerisolatie
- Verwarming
- Cv-ketel, elektrische verwarming, gashaard, heteluchtverwarming en gedeeltelijke vloerverwarming
- Warm water
- Cv-ketel en elektrische boiler
- Cv-ketel
- Intergas Kompact (gas gestookt combiketel uit 2012, eigendom)
Kadastrale gegevens
- HELLEVOETSLUIS A 1683
- Kadastrale kaart
- Oppervlakte
- 600 m²
- Eigendomssituatie
- Volle eigendom
- HELLEVOETSLUIS A 2448
- Kadastrale kaart
- Oppervlakte
- 359 m²
- Eigendomssituatie
- Volle eigendom
Buitenruimte
- Ligging
- In centrum
- Tuin
- Tuin rondom
Garage
- Soort garage
- Inpandig en souterrain
- Capaciteit
- 2 auto's
- Voorzieningen
- Elektrische deur en elektra
Parkeergelegenheid
- Soort parkeergelegenheid
- Op eigen terrein
Foto's 94
Plattegronden 4
© 2001-2025 funda

































































































