
Omschrijving
TE KOOP
HOOGWAARDIG AFGEWERKTE BEDRIJFSWONING MET DRIE GESCHAKELDE BEDRIJFSRUIMTEN OP BEDRIJVENTERREIN HOOGEIND
HET BEDRIJFSGEDEELTE BESCHIKT OVER EEN ELEKTRISCH VERMOGEN VAN 630 KVA
EN EEN CONTRACTVERMOGEN VAN 16 KW.
Het object is gelegen op een rustige locatie aan de Duizeldonksestraat. Dit gedeelte van de Duizeldonksestraat kenmerkt zich door de aanwezigheid van meerdere (bedrijfs)woningen en de groene inrichting waardoor u niet het idee heeft om op een bedrijventerrein te wonen.
De bedrijfswoning kenmerkt zich door een hoog afwerkingsniveau met een zeer ruime woonkeuken en privacy biedende achtertuin met terrasoverkapping. Op de eerste verdieping zijn drie slaapkamers aanwezig met een ruime badkamer. Op de tweede verdieping is een vierde slaapkamer aanwezig. De ouderslaapkamer kenmerkt zich door de hoogte (tot in de nok), grootte inloopkast, gashaard en toegang tot een groot balkon met zicht op de achtertuin.
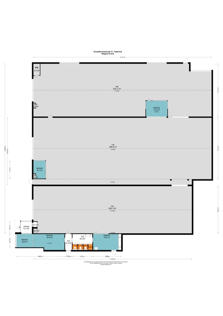
Het bedrijfsgedeelte bestaat uit drie geschakelde bedrijfsruimten. Indien gewenst dan zijn er uitstekende mogelijkheden voor gedeeltelijke verhuur.
Het betreft een object waar wonen en werken op één locatie perfect gecombineerd kan worden.
OPPERVLAKTEN (woonoppervlak en verhuurbaar vloeroppervlak):
Bedrijfswoning:
Woonoppervlakte: circa 198m².
Overige inpandige ruimten: circa 20m²
Gebouw gebonden buitenruimte: circa 44m²
Externe bergruimte: circa 40m²
Bedrijfsgedeelte:
Bedrijfsruimte 1: circa 301m²
Bedrijfsruimte 2: circa 469m²
Bedrijfsruimte 3: circa 355m²
Overige ruimten en kantoor: circa 125m²
De oppervlakten zijn ontleend aan een NEN2580 meetrapport.
KADASTRALE GEGEVENS:
Gemeente: Helmond.
Sectie: C.
Nummers: 11244 en 11245.
Grootte: resp. 2.160m² en 600m².
BESTEMMING:
Ter plaatse geldt het bestemmingsplan: ‘’Hoogeind’’
Binnen dit bestemmingsplan heeft het object de bestemming: ‘’Bedrijventerrein’’
Binnen deze bestemming is toegestaan:
Uitsluitend bedrijven in de milieucategorie 2 en 3.
Bedrijfswoning.
Bron:
Koper dient zelf e.e.a. te verifiëren.
ENERGIELABEL:
Bedrijfswoning: B, geldig tot oktober 2030.
BIJZONDERHEDEN BEDRIJFSWONING:
Zeer fraai afgewerkte bedrijfswoning met veel leefruimte.
Bouwjaar 1985, volledig verbouwd en gerenoveerd in 2010.
Volledig geïsoleerd.
Gevelkozijnen voorzien van HR++ beglazing.
Domotica systeem: Nico homecontrol, vernieuwd in 2024.
Vloerverwarming begane grond en t.p.v. de badkamer. Badkamer is tevens voorzien van een designradiator.
CV ketel: Nefit (bj 2009, 30KW, met 120 liter boiler).
Airco units op de begane grond en beide verdiepingen, op alle slaapkamers voor zowel verkoeling als verwarming.
Zeer grootte woonkeuken, uitsluitend voorzien van Miele apparatuur, als centrale ruimte met kookeiland en tuindeuren.
Vier slaapkamers waarvan één zeer riante masterbedroom
Grote vrij gelegen en zonnige achtertuin.
Grote badkamer, voorzien van ligbad, inloopdouche, dubbele wastafel en toilet.
BIJZONDERHEDEN BEDRIJFSRUIMTE:
Bouwjaar 1985, 1992 en 2005.
Eigen transformator station op binnenterrein.
Afgezekerd elektrisch vermogen 250KVA.
Contractueel vermogen 16KW.
Betreft drie geschakelde bedrijfsruimten.
Ruim eigen terrein.
Verwarming d.m.v. drie direct gestookte gastheaters 25KW, 35KW en 60KW.
Kantoorruimte en wasruimte aanwezig, verwarmd (CV ketel, 25KW, bj 2008).
Volledig geïsoleerd.
LED verlichting.
Vier elektrisch bedienbare overheaddeuren.
Bovenloopkraanbanen, hijsvermogen 3x 1 ton en 2x 1,6 ton.
Muurplaathoogte circa 3m en nokhoogte circa 5,50m.
Vloer bestaande uit betontegels en monolithische betonvloer.
KOOPGEGEVENS:
Aanvaarding:
In overleg.
Vraagprijs:
€ 1.250.000,= kosten koper.
Overdrachtsbelasting:
Bedrijfswoning: 2% (ingeval van eigen bewoning)
Bedrijfsruimte: 10,4%.
Omzetbelasting:
Niet van toepassing.
Opleveringsniveau:
In huidige staat, leeg en ontruimd.
Zekerheidsstelling:
Waarborgsom of bankgarantie ter grootte van 10% van de koopsom.
Voorbehoud:
Een en ander geschiedt onder aanvaarding en voorbehoud goedkeuring opdrachtgever.
Kenmerken
Overdracht
- Laatste vraagprijs
- € 1.250.000 kosten koper
- Vraagprijs per m²
- € 6.313
- Status
- Verkocht
Bouw
- Soort woonhuis
- Eengezinswoning, vrijstaande woning
- Soort bouw
- Bestaande bouw
- Bouwjaar
- 1985
Oppervlakten en inhoud
- Gebruiksoppervlakten
- Wonen
- 198 m²
- Overige inpandige ruimte
- 21 m²
- Gebouwgebonden buitenruimte
- 44 m²
- Externe bergruimte
- 40 m²
- Perceel
- 2.760 m²
- Inhoud
- 747 m³
Indeling
- Aantal kamers
- 8 kamers (4 slaapkamers)
- Aantal badkamers
- 1 badkamer en 1 apart toilet
- Badkamervoorzieningen
- Dubbele wastafel, inloopdouche, ligbad, toilet, en wastafelmeubel
- Aantal woonlagen
- 2 woonlagen en een zolder
Energie
- Energielabel
Kadastrale gegevens
- HELMOND C 11244
- Kadastrale kaart
- Oppervlakte
- 2.160 m²
- Eigendomssituatie
- Volle eigendom
- HELMOND C 11245
- Kadastrale kaart
- Oppervlakte
- 600 m²
- Eigendomssituatie
- Volle eigendom
Buitenruimte
- Ligging
- Bedrijventerrein
- Tuin
- Achtertuin
Foto's 95
© 2001-2026 funda






























































































