Dit huis op Funda: https://www.funda.nl/detail/koop/helmond/huis-vossenstraat-25/89369570/

Omschrijving
Op zoek naar een woning met mogelijkheden, een fijne locatie en een royale achtertuin? Deze charmante tussenwoning aan de Vossenstraat 25 in Helmond biedt een unieke kans om jouw ideale thuis te creëren! Gelegen in een rustige en kindvriendelijke wijk, is dit de perfecte plek voor jonge gezinnen, starters en mensen die graag zelf willen klussen en hun eigen draai aan het huis willen geven.
KENMERKEN:
• Woonoppervlakte: 82 m²
• Perceeloppervlakte: 135 m²
• Bouwjaar: 1915
• Energielabel: F
• Bouwjaar CV-ketel: 2023
• Begane grond voorzien van een betonnen vloer
• Royale achtertuin van maar liefst 78 m² inclusief berging
• Volledig voorzien van kunststof kozijnen met dubbelglas (m.u.v. het raam achterzijde 1e verdieping)
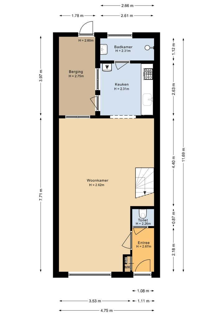
BEGANE GROND
De begane grond van deze woning beschikt over een ruime woonkamer met een trap naar de bovenverdieping. De halfopen keuken is praktisch ingedeeld en biedt voldoende ruimte. Daarnaast is er een badkamer met douche en wastafel, een handige bijkeuken met aansluitingen voor een wasmachine en water, en een apart toilet. Bovendien is de gehele begane grond voorzien van een betonnen vloer.
EERSTE VERDIEPING
Wanneer je de trap oploopt, kom je op de overloop, vanwaar je toegang hebt tot drie slaapkamers. Deze slaapkamers zijn alle drie voorzien van een nette laminaat vloer en bieden voldoende ruimte. De kamers zijn ideaal voor verschillende doeleinden, of je nu extra slaapkamer, een werkruimte of een hobbykamer nodig hebt. De verdieping biedt veel mogelijkheden om de ruimtes naar eigen wens in te richten!
TUIN
Royale achtertuin van maar liefst 78 vierkante meter, met een overvloed aan ruimte. De tuin ligt op het noorden, maar door de diepte kun je altijd genieten van de zon. Dit biedt de mogelijkheid voor zowel zonnige als schaduwrijke plekken, waardoor je op verschillende momenten van de dag en in elk seizoen kunt genieten van de aangename schaduw én de zonnige hoeken. Laat je creativiteit de vrije loop en ontwikkel hier je droomtuin!
OMGEVING
De Vossenstraat ligt in een gezellige wijk in Helmond, dichtbij verschillende voorzieningen zoals scholen, supermarkten en sportclubs. Het stadscentrum van Helmond is slechts enkele minuten rijden, waar je kunt genieten van een ruim aanbod aan winkels, restaurants en cafés. Ook het openbaar vervoer is goed bereikbaar, waardoor je snel in Eindhoven of andere omliggende steden bent. De rustige, groene omgeving biedt voldoende mogelijkheden voor wandel- en fietstochten, en is ideaal voor wie van de natuur houdt.
Grijp deze kans om jouw ideale woning te realiseren in een rustige buurt met alle voorzieningen binnen handbereik. Neem snel contact met ons op voor een bezichtiging en laat je verrassen door de mogelijkheden van deze woning!
__________________________________________________________
"As is, where is - clausule''
Ten aanzien van de feitelijke staat van het verkochte geldt uitdrukkelijk dat de koop ''as is'' tussen partijen is aangegaan, hetgeen inhoudt dat verkoper op geen enkele wijze instaat voor de feitelijke staat van het verkochte en koper het verkochte op de leveringsdatum zal aanvaarden in de (feitelijke) staat waarin het verkochte zich bevond op de datum van het sluiten van de koop. De koper erkent dat zij het verkochte item hebben onderzocht en de staat ervan hebben geaccepteerd. De verkoper is niet aansprakelijk voor enige gebreken, defecten, of tekortkomingen die kunnen worden ontdekt na de verkoop. Om dit risico voor koper te beperken heeft verkoper koper in de gelegenheid gesteld een bouwkundige inspectie uit te doen voeren.
Kenmerken
Overdracht
- Laatste vraagprijs
- € 250.000 kosten koper
- Vraagprijs per m²
- € 3.049
- Status
- Verkocht
Bouw
- Soort woonhuis
- Eengezinswoning, tussenwoning
- Soort bouw
- Bestaande bouw
- Bouwjaar
- 1915
- Soort dak
- Zadeldak bedekt met pannen
Oppervlakten en inhoud
- Gebruiksoppervlakten
- Wonen
- 82 m²
- Overige inpandige ruimte
- 7 m²
- Externe bergruimte
- 9 m²
- Perceel
- 135 m²
- Inhoud
- 329 m³
Indeling
- Aantal kamers
- 4 kamers (3 slaapkamers)
- Aantal badkamers
- 1 badkamer en 1 apart toilet
- Badkamervoorzieningen
- Douche en wastafel
- Aantal woonlagen
- 2 woonlagen
- Voorzieningen
- Natuurlijke ventilatie, satellietschotel, en TV kabel
Energie
- Energielabel
- Isolatie
- Gedeeltelijk dubbel glas
- Verwarming
- Cv-ketel
- Warm water
- Cv-ketel
- Cv-ketel
- Gas gestookt combiketel uit 2023, eigendom
Kadastrale gegevens
- HELMOND I 1177
- Kadastrale kaart
- Oppervlakte
- 135 m²
- Eigendomssituatie
- Volle eigendom
Buitenruimte
- Ligging
- Aan rustige weg en in woonwijk
- Tuin
- Achtertuin
- Achtertuin
- 78 m² (14,95 meter diep en 5,23 meter breed)
- Ligging tuin
- Gelegen op het zuiden bereikbaar via achterom
Bergruimte
- Schuur/berging
- Vrijstaande houten berging
Parkeergelegenheid
- Soort parkeergelegenheid
- Openbaar parkeren
Foto's 38
© 2001-2026 funda





































