
Omschrijving
Instapklare, royale woning met UITBOUW van 168 m2 gebruiksoppervlakte! Gelegen op een gewilde locatie in de Volgerlanden met een prachtig vrij uitzicht aan voorzijde. Deze woning is niet alleen verrassend groot, maar ook strak, modern en luxe afgewerkt. Rondom voorzien van kunststof kozijnen. Kortom een droomhuis op een toplocatie!
WONING:
Deze woning is bijna 12 meter diep en 6,00 meter breed en heeft 3 volwaardige woonlagen. Niet alleen de woonkamer is groot, maar ook op de 1e en 2e woonlaag heel veel ruimte. Door de hoge daknok en de doorlopende gevel is de zolder verrassend groot. Kortom een ideale woning voor een groot gezin of liefhebbers van veel ruimte.
LOCATIE:
De Volgerlanden is een populaire woonwijk. Maar deze locatie aan de Sophialaan is buitengewoon in trek, omdat je aan de voorzijde een weids en vrij uitzicht hebt over het tegenoverliggende park. Maar ook op loopafstand van winkelcentrum Hoog Ambacht en nabij scholen, openbaarvervoer en uitvalswegen.
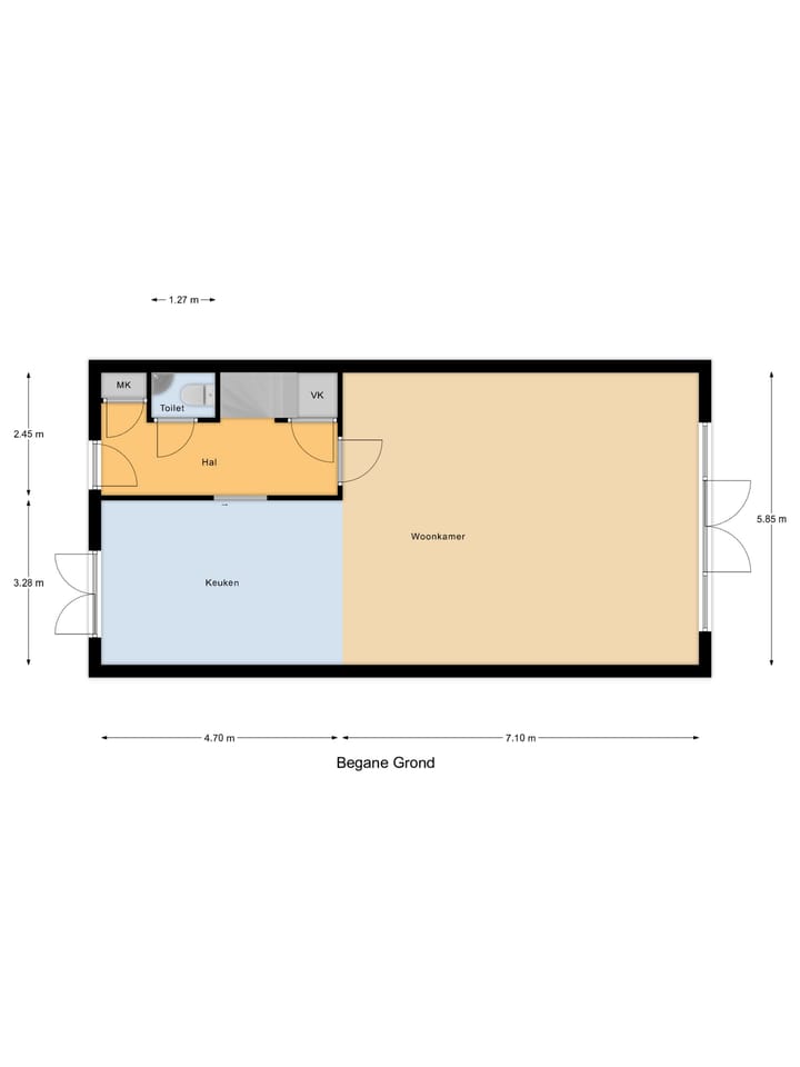
BEGANE GROND:
-Hal:
Entree, hal met meterkast (8 groepen met aardlekschakelaar, glasvezel), alarminstallatie en waterontharder. Wit betegelde toiletruimte en trapkast.
- Woonkamer:
Door de uitbouw is een indrukwekkende riante woonkamer ontstaan van (7,10 x 5,85). Voorzien van vloerverwarming, glad gestuukte wanden, sfeervolle openhaard en dubbele kunststof tuindeuren naar de prachtig aangelegde achtertuin.
- Open keuken:
De ruime keuken is aan de voorzijde gelegen (4,70 x 3,28) en biedt ook dubbele tuindeuren naar de ruime voortuin.
Moderne inbouwkeuken (2014) met kookeiland voorzien van een natuursteen aanrechtblad. Inbouwapparatuur bestaat uit een inductie kookplaat, afzuigkap, combi oven, vaatwasser en een rvs amerikaanse koelkast.
1e VERDIEPING:
Overloop met separate toiletruimte, badkamer en 3 slaapkamers.
- 1e Slaapkamer:
Deze ruime slaapkamer (4,96 x 3,08) is gelegen aan de achterzijde en voorzien van kunststof kozijn met elektrisch screen en een schuifwandkast.
- 2e Slaapkamer:
Deze slaapkamer heeft een afmeting van (3,82 x 2,83) en is ook aan de achterzijde gesitueerd.
- 3e Slaapkamer:
Gelegen aan de voorzijde met een afmeting van (4,53 x 2,97).
- Badkamer:
Moderne badkamer (274 x 2,25) met zwarte tegels en sanitair bestaande uit een wastafelmeubel, inloopdouche en een ligbad.
-Toiletruimte:
Separate toiletruimte, gescheiden van de badkamer, met zwarte tegels en een wandcloset.
2e VERDIEPING:
De zolderetage is verrassend ruim, dankzij de rechte gevelwanden en de hoge nok van het dak.
- 4e Slaapkamer:
Deze royale ruimte is in gebruik als masterbedroom met walk-in closet en biedt toegang tot het dakterras.
- Dakterras:
Heerlijk dakterras (5,85 x 1,91) aan de voorzijde met een weids uitzicht over het park van de Volgerlanden. Dit dakterras is gelegen op het westen, dus 's avonds heerlijk genieten van de ondergaande zon.
TUIN:
Ruime achtertuin van 11 meter diep en 6 meter breed met een zonnige ligging op het oosten. De tuin is sfeervol maar onderhoudsarm aangelegd met een vlonder terras bij de achtergevel met elektrisch zonnescherm en terrasverwarming met afstandsbediening en een 2e zonterras achterin de tuin. Voorzien van mooie natuurstenen tuintegels, mooie aanplanting, houten berging en een achterom.
BIJZONDERHEDEN:
* Rondom kunststof kozijnen
* Uitbouw begane grond
* Cv combiketel 2024
* Aangelegde tuin (oosten) en dakterras (westen)
* Vrij uitzicht over het park van de van Volgerlanden
* Oplevering in overleg (op korte termijn mogelijk)
Kenmerken
Overdracht
- Laatste vraagprijs
- € 670.000 kosten koper
- Vraagprijs per m²
- € 3.988
- Status
- Verkocht
Bouw
- Soort woonhuis
- Eengezinswoning, tussenwoning
- Soort bouw
- Bestaande bouw
- Bouwjaar
- 2010
- Soort dak
- Zadeldak
Oppervlakten en inhoud
- Gebruiksoppervlakten
- Wonen
- 168 m²
- Gebouwgebonden buitenruimte
- 12 m²
- Perceel
- 190 m²
- Inhoud
- 600 m³
Indeling
- Aantal kamers
- 5 kamers (4 slaapkamers)
- Aantal badkamers
- 2 aparte toiletten
- Aantal woonlagen
- 3 woonlagen
- Voorzieningen
- Buitenzonwering, mechanische ventilatie, en TV kabel
Energie
- Energielabel
- A
- Isolatie
- Dakisolatie, dubbel glas, muurisolatie en vloerisolatie
- Verwarming
- Cv-ketel, open haard en gedeeltelijke vloerverwarming
- Warm water
- Cv-ketel
- Cv-ketel
- Combiketel uit 2024, eigendom
Kadastrale gegevens
- HENDRIK IDO AMBACHT E 13058
- Kadastrale kaart
- Oppervlakte
- 190 m²
- Eigendomssituatie
- Volle eigendom
Buitenruimte
- Ligging
- In woonwijk en vrij uitzicht
- Tuin
- Achtertuin
- Achtertuin
- 77 m² (11,00 meter diep en 7,00 meter breed)
- Ligging tuin
- Gelegen op het oosten bereikbaar via achterom
- Balkon/dakterras
- Dakterras aanwezig
Bergruimte
- Schuur/berging
- Vrijstaande houten berging
- Voorzieningen
- Elektra
Parkeergelegenheid
- Soort parkeergelegenheid
- Openbaar parkeren
Foto's 64
© 2001-2025 funda































































