
Omschrijving
In deze moderne loftwoning komt de rijke historie van Hengelo tot leven, gecombineerd met het comfort van nu. Dit unieke appartement bevindt zich in een voormalig fabriekspand van de firma Dikkers, een icoon uit de gloriedagen van Hengelo als industriestad. Het industriële erfgoed is prachtig behouden gebleven: de stoere staalconstructies en authentieke spanten geven de woning een karaktervolle uitstraling. Tegelijkertijd geniet je van een eigentijdse afwerking en luxe wooncomfort.
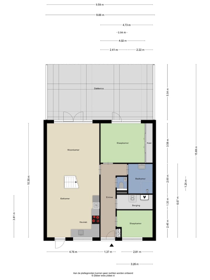
Met de allure van een penthouse en een weids uitzicht over een prachtig aangelegde sedumtuin op het dakterras, voelt deze loft als een oase van rust midden in de stad. Het royale terras van maar liefst 50 m² is helemaal van jou, een zeldzaamheid voor een appartement als dit. Binnen heb je nu 100 m² woonoppervlakte, maar door de vaste trap naar de tweede woonlaag kun je daar nog eens 30 m² aan toevoegen. Dankzij de indrukwekkende hoogte, de grote ramen en de zichtbare staalconstructie voelt de ruimte licht en ruimtelijk aan. De praktische indeling en de nette afwerking maken het plaatje compleet.
Alle voorzieningen zijn binnen handbereik en het centrum van Hengelo ligt op loopafstand. Je parkeert je auto veilig en comfortabel op de goed verlichte parkeergelegenheid aan zowel de voor- als achterzijde van het gebouw. Kortom: industrieel erfgoed, modern wooncomfort en volop buitenruimte!
Indeling van het appartement
Bij binnenkomst bereik je via de lift of trap de loftetage, waar een ruime en sfeervolle woonstraat een prettige overgang vormt tussen openbaar en privé. Direct bij de voordeur kun je een gezellig zitje plaatsen en genieten van de levendige sfeer.
Het appartement
Vanuit de entree kom je in een ruime hal met videofoon. De royale woonkamer met open keuken en grote tuindeuren naar het indrukwekkende dakterras vormen het hart van de woning. Dit terras, deels betegeld en deels voorzien van sedumbeplanting, geeft een vrij en groen gevoel. De moderne keuken is een droom voor kookliefhebbers, uitgerust met hoogwaardige inbouwapparatuur zoals een combi-oven, inductiekookplaat, afzuigkap, vaatwasser en koelkast.
Via de gang bereik je twee comfortabele slaapkamers, waarvan de grootste direct aan het dakterras grenst. De badkamer is uitgerust met een ruime inloopdouche en een wastafel. Naast de badkamer bevindt zich een praktische bijkeuken met alle technische installaties, waaronder het WTW-systeem.
Eerste verdieping
Via een trap in de woonkamer bereik je de bovenverdieping, die momenteel als kantoor dient, maar eenvoudig kan worden omgebouwd tot een extra slaapkamer of bergruimte.
Berging
Aan de zuidzijde van het complex heb je je eigen berging, ideaal voor extra opslagruimte.
Bijzonderheden:
• Woonoppervlakte: 130 m²;
• Inhoud: circa 428 m³;
• Bouwjaar: 2014;
• Modern appartement met 2 slaapkamers en mogelijkheid tot 3;
• Fraaie combinatie tussen industrieel en modern wonen;
• Vloerverwarming op de gehele 1e woonlaag;
• Verwarming middels stadsverwarming;
• Dakterras van 50 m², uniek veel buitenruimte in Hengelo;
• Servicekosten bedragen € 180,- per maand;
• Centraal gelegen; alle voorzieningen op loopafstand.
Aanvaarding: in overleg.
Deze presentatie is informatief en geheel vrijblijvend. Aan eventuele onjuistheden kunnen geen rechten worden ontleend.
Kenmerken
Overdracht
- Laatste vraagprijs
- € 425.000 kosten koper
- Vraagprijs per m²
- € 3.269
- Status
- Verkocht
- Bijdrage VvE
- € 180,06 per maand
Bouw
- Soort appartement
- Portiekflat
- Soort bouw
- Bestaande bouw
- Bouwjaar
- 2014
- Soort dak
- Zadeldak bedekt met overig
Oppervlakten en inhoud
- Gebruiksoppervlakten
- Wonen
- 130 m²
- Externe bergruimte
- 6 m²
- Inhoud
- 428 m³
Indeling
- Aantal kamers
- 4 kamers (3 slaapkamers)
- Aantal badkamers
- 1 badkamer en 1 apart toilet
- Badkamervoorzieningen
- Inloopdouche en wastafel
- Aantal woonlagen
- 1 woonlaag
- Voorzieningen
- Buitenzonwering, dakraam, glasvezelkabel, lift, mechanische ventilatie, natuurlijke ventilatie, en TV kabel
- Gelegen op
- 1e woonlaag
Energie
- Energielabel
- A
- Isolatie
- Dakisolatie, dubbel glas, muurisolatie, vloerisolatie en volledig geïsoleerd
- Verwarming
- Stadsverwarming, gehele vloerverwarming en warmte terugwininstallatie
- Warm water
- Centrale voorziening
Kadastrale gegevens
- HENGELO OVERIJSSEL D 15134
- Kadastrale kaart
- Eigendomssituatie
- Volle eigendom
Buitenruimte
- Ligging
- In woonwijk
- Tuin
- Zonneterras
- Zonneterras
- 48 m² (5,04 meter diep en 9,59 meter breed)
- Ligging tuin
- Gelegen op het oosten
- Balkon/dakterras
- Dakterras aanwezig
Bergruimte
- Schuur/berging
- Inpandig
- Voorzieningen
- Elektra
- Isolatie
- Volledig geïsoleerd
Parkeergelegenheid
- Soort parkeergelegenheid
- Openbaar parkeren
VvE checklist
- Inschrijving KvK
- Ja
- Jaarlijkse vergadering
- Ja
- Periodieke bijdrage
- Ja (€ 180,06 per maand)
- Reservefonds aanwezig
- Ja
- Onderhoudsplan
- Ja
- Opstalverzekering
- Ja
Foto's 27
© 2001-2025 funda


























