Dit huis op Funda: https://www.funda.nl/detail/koop/herten/huis-sint-michaellaan-32/43903781/

Omschrijving
Op een prachtige plek in Oolderveste, naast een rustig hofje, staat deze vrijstaande woning met drie slaapkamers, een garage met oprit en een werkkamer/kantoor op de begane grond. In 2021/2022 is de woning op diverse punten verbouwd, waaronder de luxe keuken n badkamer. De achtertuin met berging heeft een uitstekende zonligging en is, dankzij de ligging ten opzichte van omliggende woningen, een hele rustige plek. Goede isolatie, HR++ glas en een WTW-systeem zorgen voor een huis met veel comfort en energielabel A. Het bouwjaar is 2007, de perceeloppervlakte meet 360 m² en de inhoud bedraagt 546 m³.
Na een wandeling door de wijk sta je bij Frends Beach Club, bij het windsurfcenter en Beachclub Oolderhof. Aan de overzijde van de Oolderweg vind je onder andere een supermarkt, kinderopvang, een basisschool met bso en de jachthaven. Voor watersporters is dit een droomplek om te wonen, op fietsafstand van het centrum en nabij de snelwegen A2/ A73.
Ontvangsthal
Bij binnenkomst via de voordeur betreed je een royale, lichte hal die meteen een uitnodigende indruk maakt. Deze ruime ontvangsthal is afgewerkt met strak stucwerk op de muren en plafonds en voorzien van een moderne PVC-vloer met comfortabele vloerverwarming die doorloopt over de gehele begane grond. In de hal bevinden zich de trapopgang naar de eerste verdieping, de meterkast en een keurig afgewerkte toiletruimte met fonteintje.
Woonkamer
De woonkamer en open keuken vormen samen een royale leefruimte van circa 53 m². Het grootste gedeelte van deze ruimte is gesitueerd aan de achterzijde van de woning, met uitzicht op de tuin, waardoor er veel lichtinval is en een open gevoel ontstaat. De woonkamer biedt voldoende ruimte voor een grote zithoek én een riante eethoek, ideaal voor gezellige avonden met familie en vrienden.
Keuken
De keuken is in 2021 vernieuwd en uitgevoerd in een moderne U-opstelling. Deze is voorzien van hoogwaardige inbouwapparatuur, waaronder een 5-pits gaskookplaat, een strakke afzuigkap, een koelkast, een no-frost vriezer, een combi-oven en een vaatwasser. De keuken heeft een eigentijdse uitstraling en biedt volop werk- en opbergruimte.
Kantoor-/werkkamer
Een grote meerwaarde van deze woning is de multifunctionele kamer op de begane grond, die momenteel is ingericht als kantoor-/werkkamer. Dankzij het uitzicht op de rustige, ruim opgezette wijk is dit een inspirerende plek om te werken. Uiteraard is deze kamer ook perfect te gebruiken als speelkamer, gamekamer of extra tv-kamer. De ruimte is licht en flexibel inzetbaar, afhankelijk van de wensen.
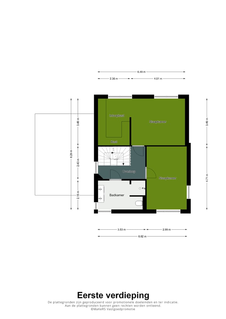
Eerste verdieping
Op de eerste verdieping zijn twee comfortabele slaapkamers. De master bedroom, gelegen aan de achterzijde van de woning, is een bijzonder ruime kamer met een schitterende op maat gemaakte inloopkast. Deze kast biedt meer dan genoeg ruimte voor kleding, schoenen en accessoires – een echte droom voor de liefhebber van overzicht en stijl.
De tweede slaapkamer bevindt zich aan de voorzijde van het huis en wordt momenteel gebruikt als muziekkamer, maar kan uiteraard eenvoudig worden ingericht als kinderkamer, logeerkamer of hobbyruimte.
Badkamer
De badkamer is in 2022 volledig vernieuwd en werkelijk prachtig uitgevoerd. Er is gekozen voor een stijlvolle combinatie van grijze wandtegels, strak stucwerk en design sanitair. De indeling is praktisch en luxe, met een ruime inloopdouche, een modern toilet en een breed wastafelmeubel met dubbele kranen. Bijzondere details zoals de designradiator, fraai uitgevoerde kranen en een spiegel met geïntegreerde verlichting maken deze badkamer compleet.
Tweede verdieping
Via een vaste trap is de tweede verdieping te bereiken. Hier bevindt zich een derde, volwaardige slaapkamer met ramen aan drie zijden, wat zorgt voor veel daglicht en een prachtig uitzicht. Deze kamer is ideaal als slaapkamer, maar kan ook uitstekend dienen als werk- of hobbyruimte.
Naast de slaapkamer is er een aparte berging met de opstelplaats van de HRcombiketel, het ventilatiesysteem met warmteterugwinning (WTW) en de aansluitingen voor de wasmachine en droger. Deze ruimte biedt extra opbergmogelijkheden en is praktisch ingedeeld.
Tuin
De tuin rondom de woning is met zorg en oog voor detail aangelegd. De voortuin en zijtuin zijn strak en onderhoudsvriendelijk ingericht en zorgen voor een nette en moderne uitstraling. Aan de voorzijde van de garage bevindt zich een ruime oprit, geschikt voor het parkeren van twee auto’s. Dankzij de eigen achterom is de achtertuin eenvoudig bereikbaar.
De achtertuin is gesitueerd op het zonnige zuiden, wat zorgt voor optimale lichtinval en veel zonuren. Er is een royaal terras waar men heerlijk kan zitten en genieten van de rust. Achterin de tuin staat nog een extra berging, handig voor tuingereedschap of fietsen. Een bijzonder voordeel van deze tuin is de ligging: deze grenst niet direct aan andere tuinen, maar aan twee opritten. Dit zorgt voor een bijzonder rustig en vrij gevoel. Achter in de tuin staat een vrijstaande garage van ca. 18,8 m², uitgerust met een elektrisch bedienbare sectionaalpoort. Deze garage biedt niet alleen ruimte voor een auto of fietsen, maar ook volop opslagmogelijkheden.
Algemeen
- Parkeergelegenheid op eigen terrein (oprit en garage)
- Buitenschilderwerk in 2023
- Diverse extra’s als rolluiken, screens en buitenzonwering
- Hardhouten kozijnen met HR++ glas
- Uitstekend onderhouden woning met veel luxe en wooncomfort
Kenmerken
Overdracht
- Laatste vraagprijs
- € 645.000 kosten koper
- Vraagprijs per m²
- € 4.300
- Status
- Verkocht
Bouw
- Soort woonhuis
- Eengezinswoning, vrijstaande woning
- Soort bouw
- Bestaande bouw
- Bouwjaar
- 2007
- Soort dak
- Plat dak bedekt met bitumineuze dakbedekking
Oppervlakten en inhoud
- Gebruiksoppervlakten
- Wonen
- 150 m²
- Gebouwgebonden buitenruimte
- 3 m²
- Externe bergruimte
- 32 m²
- Perceel
- 360 m²
- Inhoud
- 546 m³
Indeling
- Aantal kamers
- 5 kamers (3 slaapkamers)
- Aantal badkamers
- 1 badkamer en 1 apart toilet
- Badkamervoorzieningen
- Dubbele wastafel, inloopdouche, toilet, en wastafelmeubel
- Aantal woonlagen
- 3 woonlagen
- Voorzieningen
- Airconditioning, buitenzonwering, glasvezelkabel, mechanische ventilatie, rolluiken, TV kabel, en zonnepanelen
Energie
- Energielabel
- A
- Isolatie
- Dubbel glas en volledig geïsoleerd
- Verwarming
- Cv-ketel, gedeeltelijke vloerverwarming en warmte terugwininstallatie
- Warm water
- Cv-ketel
- Cv-ketel
- Intergas (gas gestookt combiketel uit 2020, eigendom)
Kadastrale gegevens
- HERTEN B 1865
- Kadastrale kaart
- Oppervlakte
- 360 m²
- Eigendomssituatie
- Volle eigendom
Buitenruimte
- Ligging
- Aan rustige weg en in woonwijk
- Tuin
- Tuin rondom
Bergruimte
- Schuur/berging
- Vrijstaande houten berging
Garage
- Soort garage
- Vrijstaande stenen garage
- Capaciteit
- 1 auto
- Voorzieningen
- Elektrische deur en elektra
Parkeergelegenheid
- Soort parkeergelegenheid
- Op eigen terrein en openbaar parkeren
Foto's 36
© 2001-2025 funda



































