Dit huis op Funda: https://www.funda.nl/detail/koop/hillegom/huis-ringvaartlaan-4/89661918/

Ringvaartlaan 42181 NG HillegomRingoevers
€ 659.000 k.k.
Omschrijving
In de kindvriendelijke en geliefde woonwijk De Ringoevers staat deze uitgebouwde tussenwoning met 4 slaapkamers, volledig gestuukte woning, een moderne keuken en een ruime tuin!. De woning is gelegen in een rustieg straat met speeltoestel en wandelpaden in de directe omgeving van de woning. De woningen aan Ringvaartlaan zijn in 2017 gebouwd, volledig geïsoleerd en beschikt over een energielabel A. De woning is zowel boven als beneden heerlijk ruim, voorzien van 4 slaapkamers (met de mogelijkheid tot 5) en een gezellige tuin op zuidoosten!
De Ringoevers is een van de meest gewilde woonwijken welke Hillegom te bieden heeft. Het is rustig gelegen aan de Ringvaart, er is parkeergelegenheid rondom de woning en voor de kinderen zijn er volop speeltoestellen en hofjes om veilig te kunnen spelen. Daarnaast is de wijk ook nog eens zeer gunstig gelegen ten opzichte van de grote uitvalswegen: A4/A44 binnen 15 minuten bereikbaar en ligt het station Hillegom op 10 minuten fietsafstand (binnen 30 minuten met de trein in Haarlem en Amsterdam). Kortom, het is hier heerlijk wonen!
Welkom in deze keurig afgewerkte en instapklare woning die je direct bij binnenkomst zal verrassen door de ruimte, lichtinval en hoogwaardige afwerking. De woning is volledig gestuukt, voorzien van een moderne laminaatvloer op de begane grond en heeft alles in huis voor comfortabel en stijlvol wonen.
Begane grond
Je komt binnen in een verzorgde hal met een modern toilet voorzien van een grijze vloertegel, wit betegelde wanden, een wit zwevend toilet en een stijlvol fonteintje. Vanuit de hal betreed je de lichte en ruime woonkamer, waar een grote schuifpui toegang geeft tot de fraai aangelegde achtertuin. Extra bergruimte vind je in de praktische trapkast.
Aan de voorzijde van de woning vind je de luxe open keuken in L-opstelling, inclusief een extra keukenblok met barretje. De keuken is uitgevoerd in hoogglans wit met RVS-grepen, een grijs aanrechtblad met bijpassende plint en beschikt over hoogwaardige inbouwapparatuur van Bosch: koelkast, vriezer, oven, combimagnetron, vaatwasser en een inductiekookplaat met RVS-afzuigkap. Grote ramen aan de voorzijde zorgen voor veel daglicht en een fijne werkplek in de keuken.
Tuin
De verzorgde achtertuin van maar liefst 11,4 meter diep en 5,3 meter breed is voorzien van een terras direct aan de woning, een grasgedeelte, houten schuttingen rondom en een praktische berging van 3x2 meter. Er is een vorstvrije buitenkraan aanwezig en je beschikt over een eigen parkeerplaats.
Eerste verdieping
Via de witgeschilderde trap kom je op de overloop met een doorgelegde laminaatvloer die toegang biedt tot drie keurig afgewerkte slaapkamers. Alle wanden zijn gestuukt en de houten kozijnen zijn voorzien van draaikiepramen. De master bedroom ligt aan de voorzijde en heeft twee vaste ramen en een draaikiepraam.
De moderne badkamer is uitgerust met een grijze vloertegel, wit betegelde wanden, een zwevend toilet, een wastafel, ligbad met douchefunctie, een designradiator en mechanische ventilatie.
Tweede verdieping
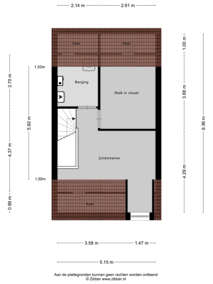
Een open trap leidt je naar de verrassend ruime zolderverdieping met een indrukwekkende nokhoogte van 3.20 meter. Hier bevindt zich een kamer met dakkapel en Frans balkon aan de voorzijde. Dankzij de knieschotten is er veel bergruimte. Daarnaast vind je hier een aparte wasruimte met de opstelling voor wasmachine en droger, de Intergas HRE cv-ketel en het mechanisch ventilatiesysteem. Ook is er nog een extra kamer aanwezig, ideaal als werkkamer, logeerkamer of hobbyruimte.
Bijzonderheden:
• Volledig gestuukt
• Moderne paneeldeuren
• Hardhouten kozijnen
• Luxe keuken met Bosch-apparatuur
• Grote schuifpui naar de tuin
• 4 slaapkamers + ruime zolderkamer
• Eigen parkeerplaats
• Instapklaar en goed onderhouden
Deze woning is absoluut een bezichtiging waard! Maak snel een afspraak en laat je verrassen door de ruimte, het comfort en de kwaliteit van deze moderne gezinswoning.
Kenmerken
Overdracht
- Aangeboden sinds
- Aanvaarding
- In overleg
- Vraagprijs
- € 659.000 kosten koper
- Vraagprijs per m²
- € 4.810
- Status
- Beschikbaar
Bouw
- Soort woonhuis
- Eengezinswoning, tussenwoning
- Soort bouw
- Bestaande bouw
- Bouwjaar
- 2017
- Soort dak
- Zadeldak bedekt met pannen
Oppervlakten en inhoud
- Gebruiksoppervlakten
- Wonen
- 137 m²
- Gebouwgebonden buitenruimte
- 3 m²
- Externe bergruimte
- 6 m²
- Perceel
- 141 m²
- Inhoud
- 486 m³
Indeling
- Aantal kamers
- 6 kamers (4 slaapkamers)
- Aantal badkamers
- 1 badkamer en 1 apart toilet
- Badkamervoorzieningen
- Ligbad, toilet, wastafel, en wastafelmeubel
- Aantal woonlagen
- 3 woonlagen
- Voorzieningen
- Frans balkon, glasvezelkabel, mechanische ventilatie, natuurlijke ventilatie, schuifpui, en zonnepanelen
Energie
- Energielabel
- Isolatie
- Dakisolatie, dubbel glas, muurisolatie, vloerisolatie en volledig geïsoleerd
- Verwarming
- Cv-ketel
- Warm water
- Cv-ketel
- Cv-ketel
- Intergas (gas gestookt combiketel uit 2018, eigendom)
Kadastrale gegevens
- HILLEGOM E 2558
- Kadastrale kaart
- Oppervlakte
- 141 m²
- Eigendomssituatie
- Volle eigendom
Buitenruimte
- Balkon/dakterras
- Frans balkon aanwezig
- Tuin
- Achtertuin
- Achtertuin
- 60 m² (11,40 meter diep en 5,30 meter breed)
- Ligging tuin
- Gelegen op het noordoosten bereikbaar via achterom
Bergruimte
- Schuur/berging
- Vrijstaande houten berging
- Voorzieningen
- Elektra
Parkeergelegenheid
- Soort parkeergelegenheid
- Op eigen terrein en openbaar parkeren
Foto's 41
© 2001-2026 funda








































