Dit huis op Funda: https://www.funda.nl/detail/koop/hillegom/huis-veenenburgerlaan-11/43917290/

Omschrijving
Deze woning is verkocht! Is het weer niet gelukt met uw uitgebrachte bod, bent u zoekende naar een woning en denkt u eraan een aankoopmakelaar in te schakelen? Neem dan zeker contact met ons op. Voor een tarief van slechts €295,- bezichtigen wij samen met u de woning waarin u geïnteresseerd bent, adviseren wij u over het bod, de bouwkundige staat, geven u referenties van vergelijkbare verkochte woningen etc, etc. Zo komt u goed beslagen ten eis en vergroot u uw kansen optimaal om wel het winnende bod te hebben.
Informeer naar deze mogelijkheden. Bel of WhatsApp naar 06-11227306.
--------------------------------------------------------------------------------------------
Tuinliefhebbers opgelet! Eengezinswoning met prachtig aangelegde ca. 27m diepe en 6,5m brede achtertuin pal op het zuiden!
Wonen nabij de schitterende bollenvelden en op loopafstand van het oude dorpscentrum (200m van gezellige winkelstraat) op een hele rustige locatie, in een goed verzorgde karakteristieke tussenwoning met uitgebouwde woonkamer en een gigantische, zonovergoten tuin ca. 27m diep pal op het zuiden met nieuw tuinhuis, overkapping / pergola (staande op 220m2 eigen grond!). Geen directe achterburen! Een woning met volop uitbreidingsmogelijkheden (een gehele 2e etage met extra slaapkamers d.m.v. een vaste trap is realiseerbaar!) Thans ca. 85 m² woonoppervlakte, de zolder (nu bereikbaar via vlizotrap en met stahoogte in het midden) niet meegerekend.
Droomt u altijd al van een woning met een enorme tuin waar u de hele dag van de zon geniet, met alle voorzieningen om de hoek en de mogelijkheid om de woning eenvoudig uit te breiden? Ontdek deze sfeervolle eengezinswoning aan de Veenenburgerlaan 11 in Hillegom! Gelegen in een rustige straat, op loopafstand van het gezellige centrum en met de kleurrijke bollenvelden bijna in uw achtertuin.
Geweldige locatie op korte fietsafstand van het station Hillegom!
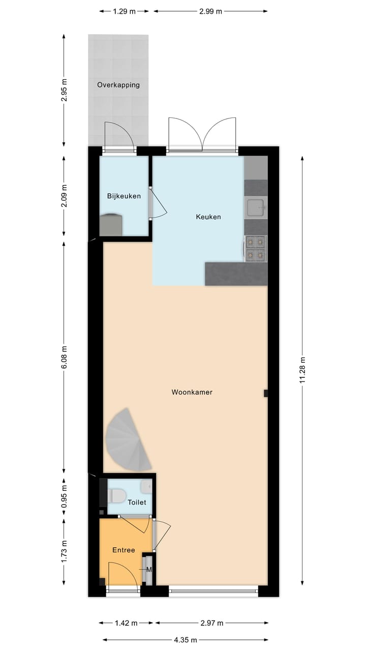
Indeling
Begane grond;
Entree, hal, elektra 5 groepen met aardlekschakelaar, modern en licht betegeld hangend toilet, riante uitgebouwde woonkamer met betonvloer, nette openkeuken voorzien van diverse apparatuur, bijkeuken met aansluiting voor diverse apparatuur en nieuwe CV com, openslaande deuren naar de tuin. Trap naar….
1e etage; thans 2 grote slaapkamers (voorheen 3) met dakkapellen. Nette badkamer met ligbad en 2e toilet, wastafel meubel.
De slaapkamer aan de achterzijde kan relatief eenvoudig in twee aparte kamers kan worden gesplitst.
Bijzonderheden
Ligging:
Deze woning ligt op een toplocatie: Slechts 200 meter van het centrum van Hillegom, met winkels, horeca en scholen dichtbij. Het station ligt op een paar minuten fietsen en biedt directe verbindingen met Haarlem, Leiden en Amsterdam. En wat dacht u van de bollenvelden? Deze liggen letterlijk om de hoek – binnen 50 meter staat u tussen de bloemenpracht. Daarnaast woont u dichtbij de duinen, het strand en recreatiegebieden.
Algemeen:
+ Zonovergoten tuin ca. 27m diep 6,5m breed pal op het zuiden met nieuw tuinhuis, pergola
+ Op 220m2 eigen grond!
+ Betonvloer op de begane grond met vloerverwarming
+ Openslaande deuren naar de tuin
+ Tuinhuis (2022) én veranda/overkapping achter in de tuin
+ CV-ketel (Nefit, ca. 3 jaar oud)
+ Vrij parkeren voor de deur
+ Betreft een woning met een bouwjaar van voor 1995. Standaard nemen wij in dergelijke gevallen de algemene ouderdomsclausule en asbestclausule op in de koopovereenkomst
+ Aanvaarding: in overleg
Kenmerken
Overdracht
- Laatste vraagprijs
- € 400.000 kosten koper
- Vraagprijs per m²
- € 4.706
- Status
- Verkocht
Bouw
- Soort woonhuis
- Eengezinswoning, tussenwoning
- Soort bouw
- Bestaande bouw
- Bouwjaar
- 1906
- Soort dak
- Samengesteld dak bedekt met bitumineuze dakbedekking en pannen
- Keurmerken
- Energie Prestatie Advies
Oppervlakten en inhoud
- Gebruiksoppervlakten
- Wonen
- 85 m²
- Gebouwgebonden buitenruimte
- 19 m²
- Externe bergruimte
- 7 m²
- Perceel
- 220 m²
- Inhoud
- 318 m³
Indeling
- Aantal kamers
- 4 kamers (3 slaapkamers)
- Aantal badkamers
- 1 badkamer en 1 apart toilet
- Badkamervoorzieningen
- Ligbad, toilet, en wastafel
- Aantal woonlagen
- 2 woonlagen
- Voorzieningen
- TV kabel
Energie
- Energielabel
- E
- Isolatie
- Grotendeels dubbelglas, HR-glas en vloerisolatie
- Verwarming
- Cv-ketel
- Warm water
- Cv-ketel
- Cv-ketel
- Nefit HR (gas gestookt combiketel uit 2022, eigendom)
Kadastrale gegevens
- HILLEGOM D 2801
- Kadastrale kaart
- Oppervlakte
- 220 m²
- Eigendomssituatie
- Volle eigendom
Buitenruimte
- Ligging
- Aan rustige weg, in centrum, in woonwijk en open ligging
- Tuin
- Achtertuin
- Achtertuin
- 176 m² (27,00 meter diep en 6,50 meter breed)
- Ligging tuin
- Gelegen op het zuiden
Bergruimte
- Schuur/berging
- Vrijstaande houten berging
- Voorzieningen
- Elektra
Parkeergelegenheid
- Soort parkeergelegenheid
- Openbaar parkeren
Foto's 42
© 2001-2025 funda









































