
Omschrijving
In de fraaie villawijk Trompenberg gelegen goed onderhouden twee-kamerappartement op de tweede en tevens bovenste woonlaag. Het balkon op het zuidwesten geeft mooi uitzicht over de boomrijke omgeving en een prachtig aangelegde tuin. Het appartement is zeer geschikt voor iemand die in een rustige en groene omgeving wil wonen, doch op korte afstand van diverse voorzieningen.
Het kleinschalige appartementencomplex van in totaal 26 woningen met de naam Parkflat ‘Theobroma’ is in 1952 naar een ontwerp van architect M.E. Hartman gebouwd in opdracht van de N.V. Philips. Het appartementencomplex was speciaal bestemd voor vrijgezelle werknemers van het bedrijf. De uit drie met elkaar verbonden delen samengestelde parkflat en een bijbehorend garageblok is gebouwd in een voor de bouwtijd karakteristieke, modernistische Wederopbouwstijl en is gesitueerd in het villapark Trompenberg, een onderdeel van het Noordwestelijke Villagebied. Het appartementencomplex is aangewezen als Gemeentelijk Monument.
Indeling:
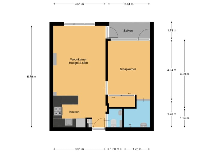
Entree, toilet met fontein, meterkast, woonkamer met toegang naar balkon, nieuwe moderne open keuken in lichte kleurstelling voorzien van gaskookplaat, koelkast, vaatwasser, wasmachine en droger in 1, badkamer met wastafel en douche.
Bijzonderheden:
- woon- en slaapkamer voorzien van fraaie houten vloer.
- Separate berging met verlichting in onderbouw van het appartementencomplex.
- Gemeenschappelijke fietsenberging op de begane grond
- Parkeren op het eigen terrein
- Gemeentelijk monumentaal pand, gelegen binnen het beschermde stads- en dorpsgezicht ‘Noordwestelijk Villagebied
- Oplevering in overleg
- Voorbehoud gunning eigenaar
- niet bewoners clausule van toepassing
- servicekosten € 228,50 per maand
- in 2022 is er een nieuwe stoppenkast geïnstalleerd
Kenmerken
Overdracht
- Servicekosten
- € 229 per maand
- Laatste vraagprijs
- € 295.000 kosten koper
- Vraagprijs per m²
- € 7.024
- Status
- Verkocht
Bouw
- Soort appartement
- Galerijflat (appartement)
- Soort bouw
- Bestaande bouw
- Bouwjaar
- 1952
- Specifiek
- Beschermd stads- of dorpsgezicht en monument
- Soort dak
- Schilddak bedekt met bitumineuze dakbedekking
Oppervlakten en inhoud
- Gebruiksoppervlakten
- Wonen
- 42 m²
- Gebouwgebonden buitenruimte
- 3 m²
- Inhoud
- 133 m³
Indeling
- Aantal kamers
- 2 kamers (1 slaapkamer)
- Aantal badkamers
- 1 badkamer en 1 apart toilet
- Badkamervoorzieningen
- Douche en wastafel
- Aantal woonlagen
- 3 woonlagen
- Voorzieningen
- Glasvezelkabel en rookkanaal
- Gelegen op
- 2e woonlaag
Energie
- Energielabel
- Niet verplicht
- Verwarming
- Gaskachels
- Warm water
- Geiser
Kadastrale gegevens
- HILVERSUM Q 822
- Kadastrale kaart
- Eigendomssituatie
- Volle eigendom
Buitenruimte
- Ligging
- Aan bosrand, aan rustige weg, in bosrijke omgeving, in woonwijk en vrij uitzicht
- Tuin
- Tuin rondom
- Balkon/dakterras
- Balkon aanwezig
Bergruimte
- Schuur/berging
- Box
- Voorzieningen
- Elektra
Parkeergelegenheid
- Soort parkeergelegenheid
- Op eigen terrein en openbaar parkeren
VvE checklist
- Inschrijving KvK
- Ja
- Jaarlijkse vergadering
- Ja
- Periodieke bijdrage
- Ja
- Reservefonds aanwezig
- Ja
- Onderhoudsplan
- Ja
- Opstalverzekering
- Ja
Foto's 27
© 2001-2025 funda


























