Dit huis op Funda: https://www.funda.nl/detail/koop/hilversum/huis-2e-nieuwstraat-48/43984664/

Omschrijving
Gelegen op een centrale locatie Hilversum Zuid bieden wij aan deze volledig onderkelderde en instapklare hoekwoning. De locatie is ideaal met zowel het centrum als het Boombergpark op 5 minuten loopafstand. Tevens geldt dit voor winkels, restaurants, sportfaciliteiten en scholen.
De woning is in 2022 geheel verbouwd waarbij al het leidingwerk, de elektra, beglazing, stucwerk, vloeren en sanitair zijn vernieuwd. De woning is voorzien van vloerverwarming op de begane grond en heeft veel lichtinval.
Indeling:
Begane grond
Entree, hal, toilet met fonteintje, toegang tot de kelder, woon-/eetkamer met open keuken voorzien van gasfornuis, koelkast, combi- oven/magnetron en vaatwasser, bijkeuken met bergruimte en achterdeur naar de straat.
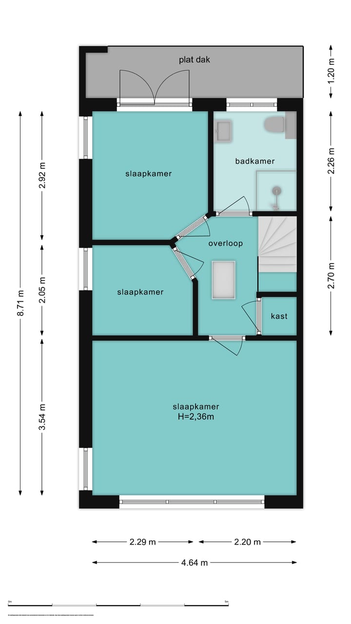
1e verdieping
Centrale overloop, 3 goed bemeten slaapkamers waarvan een met openslaande deuren, modern sanitair met inloopdouche, toilet en wastafel.
Zolder
Zeer riante bergruimte te bereiken middels vlizotrap. Deze gehele ruimte is geisoleerd.
Bijzonderheden:
- volledig gerenoveerde hoekwoning op centrale locatie;
- kelder onder de woning gelegen van 27 m²;
- voorzien van dakisolatie en grotendeels voorzien van HR++ beglazing;
- dakgoten rondom vernieuwd;
- moderne meterkast met automatische groepen;
- riolering vernieuwd naar PVC en direct aangesloten op gemeentelijk riool;
- parkeren middels parkeervergunning (mogelijkheid voor 2 vergunningen).
Kenmerken
Overdracht
- Laatste vraagprijs
- € 475.000 kosten koper
- Vraagprijs per m²
- € 5.398
- Status
- Verkocht
Bouw
- Soort woonhuis
- Eengezinswoning, hoekwoning
- Soort bouw
- Bestaande bouw
- Bouwjaar
- 1934
- Soort dak
- Zadeldak bedekt met pannen
- Keurmerken
- Energie Prestatie Advies
Oppervlakten en inhoud
- Gebruiksoppervlakten
- Wonen
- 88 m²
- Overige inpandige ruimte
- 27 m²
- Perceel
- 76 m²
- Inhoud
- 494 m³
Indeling
- Aantal kamers
- 4 kamers (3 slaapkamers)
- Aantal badkamers
- 1 badkamer en 1 apart toilet
- Badkamervoorzieningen
- Douche, toilet, en wastafelmeubel
- Aantal woonlagen
- 2 woonlagen, een zolder, en een kelder
- Voorzieningen
- Mechanische ventilatie
Energie
- Energielabel
- E
- Isolatie
- Dakisolatie, grotendeels dubbelglas en HR-glas
- Verwarming
- Cv-ketel en gedeeltelijke vloerverwarming
- Warm water
- Cv-ketel
- Cv-ketel
- Gas gestookt, eigendom
Kadastrale gegevens
- HILVERSUM N 4926
- Kadastrale kaart
- Oppervlakte
- 76 m²
- Eigendomssituatie
- Volle eigendom
Buitenruimte
- Ligging
- In woonwijk
- Tuin
- Voortuin
- Voortuin
- 5 m² (1,00 meter diep en 4,90 meter breed)
- Ligging tuin
- Gelegen op het zuidwesten
Parkeergelegenheid
- Soort parkeergelegenheid
- Betaald parkeren en parkeervergunningen
Foto's 33
© 2001-2025 funda
































