Dit huis op Funda: https://www.funda.nl/detail/koop/hilversum/huis-geuzenweg-171/43065460/

Omschrijving
Sfeervolle en goed onderhouden ruime tussenwoning met grote berging van
ca 31 m2 gelegen in de geliefde en kindvriendelijke Geuzenbuurt op loopafstand van winkelcentrum Seinhorst, het NS-station (Intercity) en het centrum van Hilversum. Tevens in de nabijheid van uitvalsweg naar de A1 en natuurgebieden onder andere de Zuiderheide.
Bouwjaar 1904. (grotendeels opnieuw opgebouwd in 1973). Woonoppervlakte 102m². Perceeloppervlakte 190m².
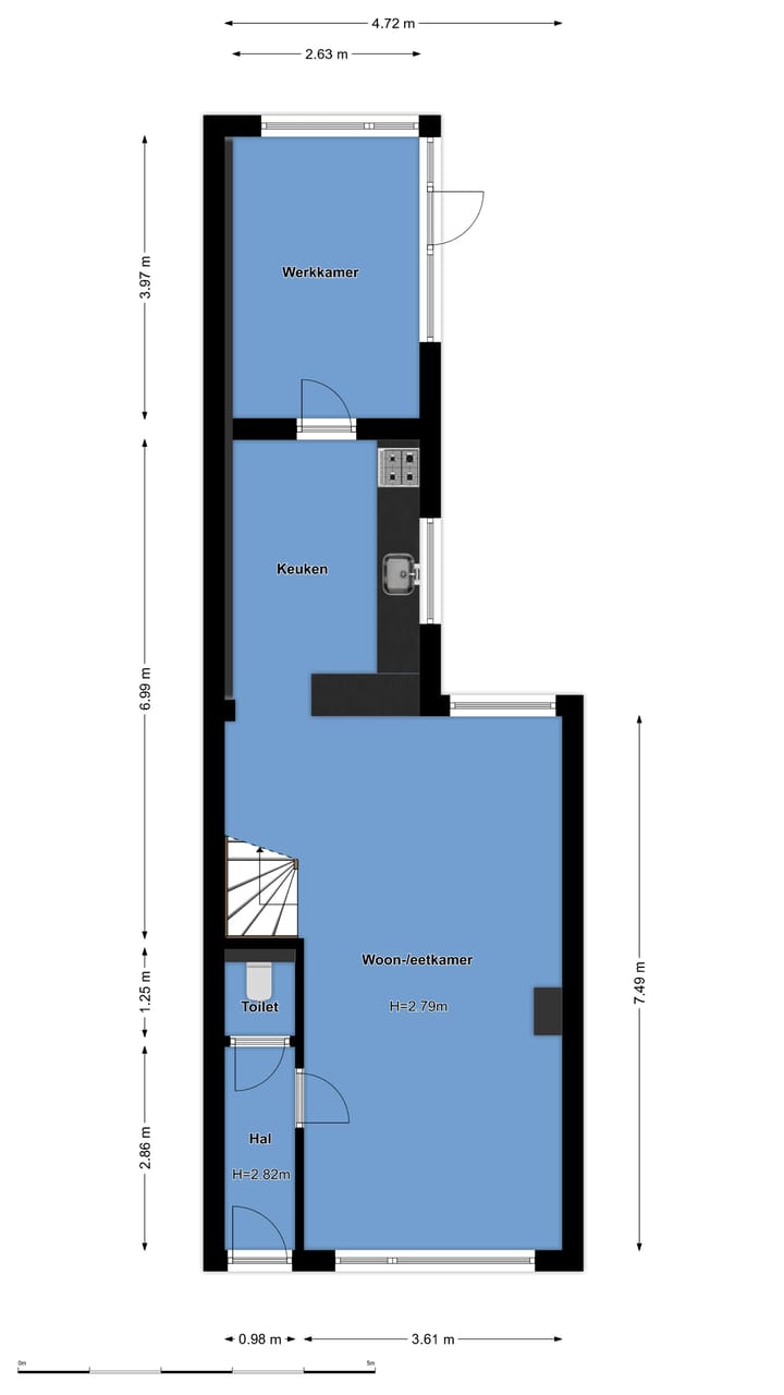
Indeling:
Begane grond:
Entree, hal, met meterkast, hangend toilet, via een deur met glas toegang naar de ruime lichte woon-/eetkamer met een parketvloer, gashaard en een open trap naar de eerste verdieping. In de uitbouw aan de achterzijde is de moderne keuken gesitueerd voorzien van diverse inbouwapparatuur te weten gaskookplaat, afzuigkap, elektrische oven, en vaatwasser, toegang tot een droge, sta hoge kelder. Achter de keuken bevindt zich de bijkeuken/ werkkamer met wasmachine-aansluiting en toegang tot de diepe achtertuin.
Eerste verdieping:
Overloop, ouderslaapkamer aan de achterzijde met kastenwand en 2de en 3de slaapkamer ieder met een vaste kast. Moderne uitgebouwde badkamer voorzien van vloerverwarming, inloopdouche, hangend toilet, wastafelmeubel met 2 wastafels en handdoekradiator.
Vliering:
Middels een vlizotrap is de bergvliering te bereiken.
Tuin:
Diepe zonnige achtertuin van ca. 16 meter diep met grote vrijstaande stenen berging (ca 6.30 x 4.60 meter) voorzien van elektra en deur naar de achtergelegen steeg.
Bijzonderheden:
- In 1993 is de woning grotendeels opnieuw opgebouwd. Alleen de zijmuren zijn
blijven staan (behalve het dak dat is in de stadsrenovatie vernieuwd en voorzien
van nieuwe pannen);
- Diepe en zonnige tuin;
- Grote extra berging;
- Geheel voorzien van dubbele beglazing, dakisolatie, muren voor- en achterzijde
geïsoleerd evenals de tussenwand met de buren;
- Geen recht van overpad (!) door tuin maar via achtergelegen steeg.
Kenmerken
Overdracht
- Laatste vraagprijs
- € 500.000 kosten koper
- Vraagprijs per m²
- € 5.000
- Status
- Verkocht
Bouw
- Soort woonhuis
- Eengezinswoning, tussenwoning
- Soort bouw
- Bestaande bouw
- Bouwjaar
- 1904
- Soort dak
- Lessenaardak bedekt met pannen
Oppervlakten en inhoud
- Gebruiksoppervlakten
- Wonen
- 100 m²
- Overige inpandige ruimte
- 6 m²
- Externe bergruimte
- 31 m²
- Perceel
- 190 m²
- Inhoud
- 365 m³
Indeling
- Aantal kamers
- 5 kamers (3 slaapkamers)
- Aantal badkamers
- 1 badkamer en 1 apart toilet
- Badkamervoorzieningen
- Douche, toilet, vloerverwarming, en wastafelmeubel
- Aantal woonlagen
- 2 woonlagen en een kelder
Energie
- Energielabel
- D
- Isolatie
- Dakisolatie en dubbel glas
- Verwarming
- Cv-ketel
- Warm water
- Cv-ketel
- Cv-ketel
- Remeha (gas gestookt combiketel uit 2018, eigendom)
Kadastrale gegevens
- HILVERSUM R 3658
- Kadastrale kaart
- Oppervlakte
- 190 m²
- Eigendomssituatie
- Volle eigendom
Buitenruimte
- Ligging
- Aan rustige weg, in bosrijke omgeving en in woonwijk
- Tuin
- Achtertuin en voortuin
- Achtertuin
- 76 m² (16,00 meter diep en 4,75 meter breed)
- Ligging tuin
- Gelegen op het noordwesten bereikbaar via achterom
Bergruimte
- Schuur/berging
- Vrijstaande stenen berging
- Voorzieningen
- Elektra
Parkeergelegenheid
- Soort parkeergelegenheid
- Betaald parkeren, openbaar parkeren en parkeervergunningen
Foto's 44
© 2001-2025 funda











































