Dit huis op Funda: https://www.funda.nl/detail/koop/hilversum/huis-lindenheuvel-14/43968013/

Omschrijving
Een nieuwe toekomst voor een geliefde, karakteristieke vrijstaande villa uit ca.1918 in villawijk “Boomberg“, inclusief multifunctioneel bijgebouw.
Na ruim 40 jaar vol dierbare herinneringen is deze karakteristieke vrijstaande villa met een woonoppervlakte van ca. 210m2 en een royaal bijgebouw van 117m2 klaar voor een nieuw hoofdstuk. Dit familiehuis met authentieke uitstraling en ongekend potentieel biedt niet alleen een sfeervolle woonomgeving, maar ook een unieke kans om wonen en werken te combineren of ruimte te creëren voor bijvoorbeeld mantelzorg of een zelfstandige wooneenheid voor ouders.
Met het levendige centrum van Hilversum op loopafstand heeft u een keur aan voorzieningen binnen handbereik. Geniet van de uitgebreide winkelmogelijkheden en het diverse culturele aanbod dat Hilversum te bieden heeft. Voor gezinnen met kinderen is de ligging ideaal: Hilversum staat bekend om zijn hoge niveau aan onderwijsvoorzieningen, met een breed scala aan scholen (ook internationaal) op korte afstand.
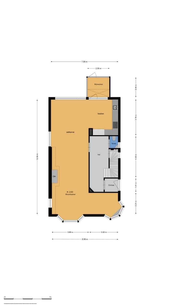
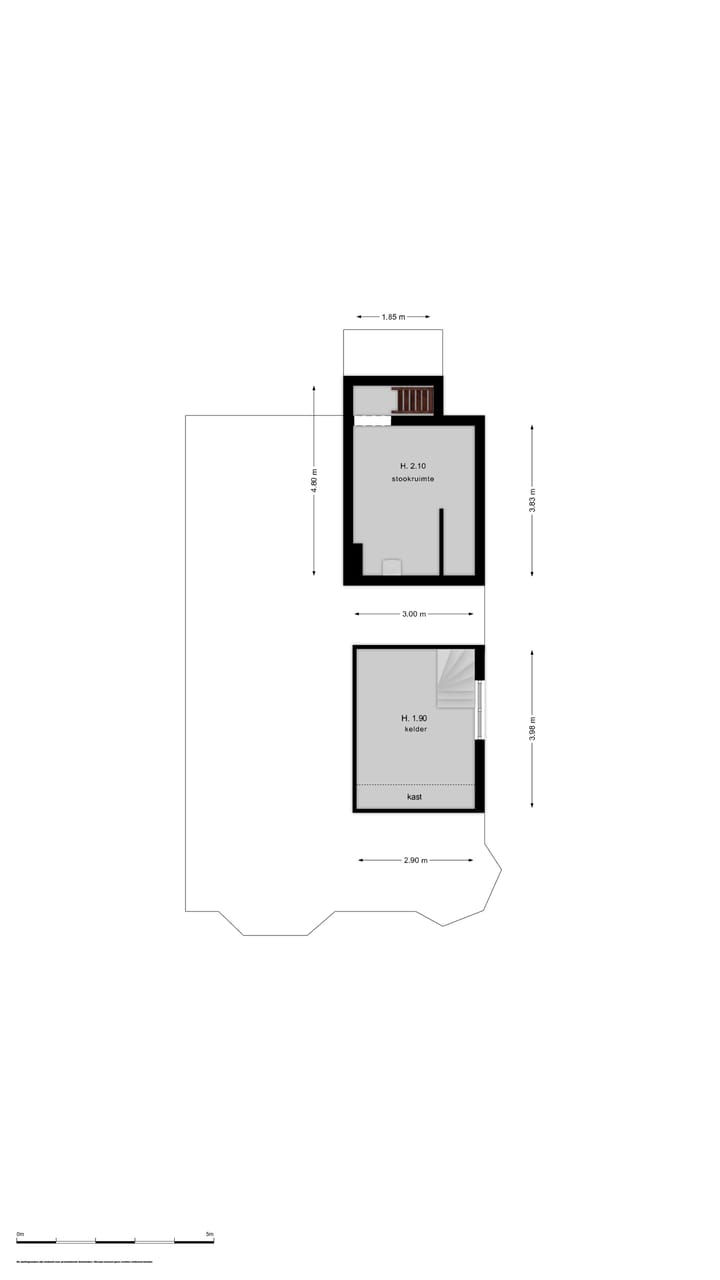
Achter de charmante gevel en het traditionele tochtportaal bevindt zich een stahoge kelder, toilet en een royale woonruimte.
De woonkamer (2.83 hoog) met open haard vormt het hart van het huis. De ruime eetkeuken, grenzend aan de achtertuin, biedt de perfecte basis voor een moderne woonkeuken waarin samen koken en genieten centraal staan. Aangrenzend bevinden zich een bijkeuken en een tweede kelder.
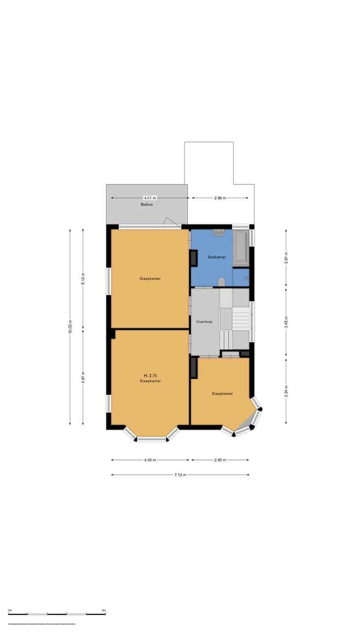
Via het fraaie trappenhuis bereikt u de eerste verdieping met royale overloop, waar zich drie ruime slaapkamers en een badkamer bevinden. Op de tweede verdieping wachten twee extra slaapkamers en een tweede badkamer, ideaal als logeerkamers of als thuiskantoor, plus een berging.
De villa beschikt over een diepe, prachtige tuin waarin u de hele dag van het buitenleven kunt genieten. Het grote bijgebouw, dat tot nu toe als kantoor en bergruimte heeft gediend, biedt tal van mogelijkheden: denk aan een inspirerend atelier, een praktijkruimte aan huis of een volledig zelfstandige woonruimte voor ouders of een au pair. Met een eigen ingang en voldoende ruimte is het een ideale plek voor mantelzorg of een kantoor met privacy. De carport biedt ruimte voor één auto en daarnaast is er voldoende parkeergelegenheid op eigen terrein.
Met haar authentieke stijlkenmerken zoals glas-in-loodramen, erkers, houtsnijwerk en een prachtig trappenhuis met zicht tot bijna in de nok, combineert deze woning stijlvol wonen met functionele veelzijdigheid. Een unieke kans voor wie ruimte zoekt voor zowel privé als professioneel gebruik in een historische setting.
- Woonhuis 210m2 woonoppervlakte
- Bijgebouw 117m2 oppervlakte
- Schuur is 9m2
- Carport 24m2
In de aanmelding zijn de m2 wonen inclusief het bijgebouw.
Bent u ook zo benieuwd naar dit heerlijke familiehuis, dan maken we graag een afspraak voor bezichtiging.
Deze verkoop geschiedt onder voorbehoud gunning.
Kenmerken
Overdracht
- Laatste vraagprijs
- € 1.395.000 kosten koper
- Vraagprijs per m²
- € 4.373
- Status
- Verkocht
Bouw
- Soort woonhuis
- Villa, vrijstaande woning
- Soort bouw
- Bestaande bouw
- Bouwperiode
- 1906-1930
- Soort dak
- Samengesteld dak bedekt met pannen
Oppervlakten en inhoud
- Gebruiksoppervlakten
- Wonen
- 319 m²
- Overige inpandige ruimte
- 30 m²
- Gebouwgebonden buitenruimte
- 32 m²
- Externe bergruimte
- 9 m²
- Perceel
- 662 m²
- Inhoud
- 1.241 m³
Indeling
- Aantal kamers
- 8 kamers (5 slaapkamers)
- Aantal badkamers
- 2 badkamers en 1 apart toilet
- Badkamervoorzieningen
- Douche, 2 ligbaden, toilet, en 2 wastafels
- Aantal woonlagen
- 2 woonlagen, een zolder, en een kelder
- Voorzieningen
- Rookkanaal
Energie
- Energielabel
- G
Kadastrale gegevens
- HILVERSUM P 1051
- Kadastrale kaart
- Oppervlakte
- 144 m²
- Eigendomssituatie
- Volle eigendom
- HILVERSUM P 1050
- Kadastrale kaart
- Oppervlakte
- 518 m²
- Eigendomssituatie
- Volle eigendom
Buitenruimte
- Ligging
- Aan rustige weg, beschutte ligging en in woonwijk
- Tuin
- Achtertuin, voortuin en zonneterras
Bergruimte
- Schuur/berging
- Vrijstaande stenen berging
- Voorzieningen
- Elektra, verwarming en stromend water
Parkeergelegenheid
- Soort parkeergelegenheid
- Op eigen terrein en parkeervergunningen
Foto's 42
© 2001-2025 funda









































