Dit huis op Funda: https://www.funda.nl/detail/koop/hilversum/huis-taludweg-105/43212406/

BlikvangerMooie karakteristieke twee-onder-een-kap woning met veel potentie!
Omschrijving
***Vanwege de grote interesse in deze woning is het niet meer mogelijk een afspraak in te plannen.***
Mooie karakteristieke twee-onder-een-kap woning aan de Taludweg met vrij uitzicht op het stadspark “De Oude Haven”. De woning heeft een rustieke voortuin, een oprit, een heerlijke diepe, zonnige achtertuin op het zuiden en een zeer ruime garage (ca 12 x 2.90m).
De woning ligt in het Schrijverskwartier, een zeer geliefde, rustige locatie in Hilversum-Zuid, en op loopafstand van het Corversbos en ‘De Gijsbrecht’, een gezellige winkelstraat waar een keur aan speciaalzaken en delicatessewinkels, maar ook een Albert Heijn en een Hema, te vinden zijn.
Door de centrale ligging van Hilversum bent u met de auto binnen 30 minuten en met de trein binnen 20 minuten in Utrecht, Amsterdam of Amersfoort.
Bouwjaar: 1923. Vloeroppervlakte 116 m². Perceeloppervlakte 323 m².
Begane grond:
Entree met mooie zwart-witte tegelvloer, garderobekast, hal, toilet met fonteintje en toegang naar de stahoge kelder met CV-opstelling. Royale woon-eetkamer met fraaie parketvloer, erker, openhaard en openslaande deuren naar de mooie diepe tuin. Keuken met deur naar de tuin, voorzien van inbouw apparatuur te weten: inductiekookplaat, elektrische oven, afzuigkap, koelkast en vaatwasser.
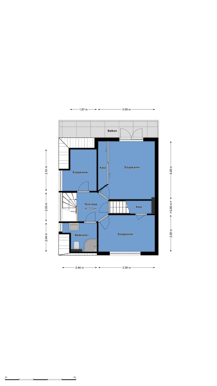
Eerste verdieping:
Overloop, grote slaapkamer aan de achterzijde met inbouwkast en openslaande deuren naar het balkon, 2de ruime slaapkamer met inbouwkast en een 3de kleinere slaapkamer, badkamer voorzien van douche, wastafelmeubel en zwevend toilet.
Zolder:
Via een vaste trap bereikbaar, voorzien van Velux dakraam, een dakkapel en bergruimte; hier zou een 4de slaapvertrek gerealiseerd kunnen worden.
Bijzonderheden:
- Prachtig gelegen aan het stadspark ‘De oude Haven’;
- Diepe, zonnige achtertuin;
- Vrijstaande, zeer ruime, garage met wasmachineaansluiting;
- De woning is voorzien van dubbele beglazing;
- Nefit combiketel, bouwjaar 2020;
- Vier zonnepanelen;
Kortom, een mooie karakteristieke twee-onder-een-kap woning met veel potentie die zeker een bezichtiging waard is!
Transport bij boedelnotaris: Davina & Partners, Emmastraat 19,1211 NE Hilversum.
Kenmerken
Overdracht
- Aangeboden sinds
- Aanvaarding
- In overleg
- Vraagprijs
- € 750.000 kosten koper
- Vraagprijs per m²
- € 6.466
- Status
- Beschikbaar
Bouw
- Soort woonhuis
- Eengezinswoning, 2-onder-1-kapwoning
- Soort bouw
- Bestaande bouw
- Bouwjaar
- 1923
- Specifiek
- Beschermd stads- of dorpsgezicht
- Soort dak
- Mansarde dak bedekt met pannen
Oppervlakten en inhoud
- Gebruiksoppervlakten
- Wonen
- 116 m²
- Overige inpandige ruimte
- 7 m²
- Gebouwgebonden buitenruimte
- 8 m²
- Externe bergruimte
- 37 m²
- Perceel
- 323 m²
- Inhoud
- 410 m³
Indeling
- Aantal kamers
- 5 kamers (3 slaapkamers)
- Aantal badkamers
- 1 badkamer en 1 apart toilet
- Badkamervoorzieningen
- Douche, toilet, en wastafel
- Aantal woonlagen
- 2 woonlagen, een zolder, en een kelder
- Voorzieningen
- Zonnepanelen
Energie
- Energielabel
- Isolatie
- Dubbel glas
- Verwarming
- Cv-ketel en open haard
- Warm water
- Cv-ketel
- Cv-ketel
- Nefit HR (gas gestookt combiketel uit 2020, eigendom)
Kadastrale gegevens
- HILVERSUM M 462
- Kadastrale kaart
- Oppervlakte
- 323 m²
- Eigendomssituatie
- Volle eigendom
Buitenruimte
- Ligging
- Aan park, aan rustige weg, in woonwijk en vrij uitzicht
- Tuin
- Achtertuin en voortuin
- Achtertuin
- 130 m² (18,50 meter diep en 7,00 meter breed)
- Ligging tuin
- Gelegen op het zuiden
- Balkon/dakterras
- Balkon aanwezig
Garage
- Soort garage
- Vrijstaande stenen garage
- Capaciteit
- 2 auto's
- Voorzieningen
- Elektra en stromend water
Parkeergelegenheid
- Soort parkeergelegenheid
- Betaald parkeren, op eigen terrein en parkeervergunningen
Foto's 56
© 2001-2026 funda























































