
Omschrijving
Richtprijs: € 725.000,- k.k.
Gelegen op de ‘vroegere korfbalvelden’, een kindvriendelijke en groene woonwijk, nabij het bos en aan het water, bevindt zich deze keurig onderhouden twee-onder-één-kapwoning. De woning is recent vernieuwd en voorzien van een luxe keuken nieuw sanitair en badkamer en tevens is de woning uitgebreid met een ruime dakkapel op de tweede verdieping voor extra slaapruimte. Parkeergelegenheid op eigen terrein en een achterom. Tevens zijn er 12 zonnepanelen.
Indeling:
Begane grond: entree, ruime hal, toilet met een fonteintje, meterkast, werkkamer in voormalige garageruimte, royale woonkamer met schuifpui naar de veranda en achtertuin, halfopen keuken met schiereiland, diverse inbouwapparatuur en een loopdeur naar de voortuin.
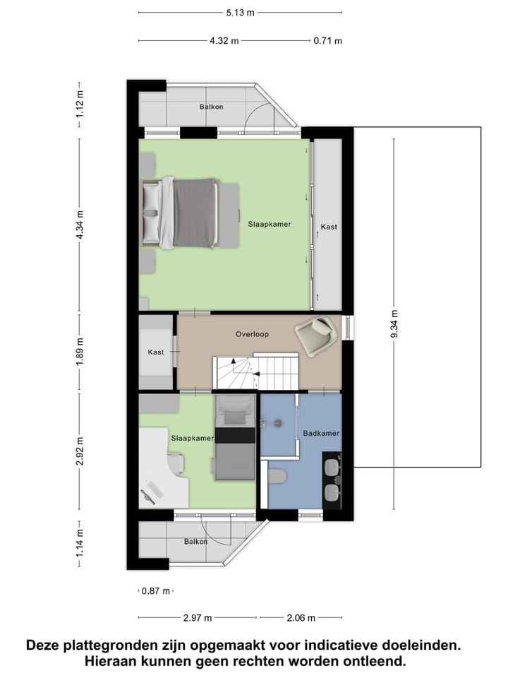
1e verdieping: ruime overloop, bergkast, 2 royale slaapkamers met beide een balkon en één met luxe schuifwandkast, moderne badkamer met een dubbel wastafelmeubel, inloopdouche en toilet.
2e verdieping: overloop met opstelplaats CV-ketel, wasmachine en droger, 2 royale slaapkamers door de 9 meter lange dakkapel.
De woning voorzien van zowel hout als kunststof kozijnen met dubbel- en HR++ glas.
Bijzonderheden
Enkele kenmerken:
Kadastrale aanduiding : Hoek van Holland sectie B nummer 4347
Grootte perceel: : 329 m²
Juridische status : Erfpacht tot 24-04-2093,
Canon volledig afgekocht tot en met 24-04-2093
Bouwjaar : Ca. 1995
Aantal kamers : 6 kamers (incl. woonkamer)
Parkeren : 2 tot 3 parkeerplekken op eigen oprit
NEN 2580 maatvoering :
Gebruiksoppervlakte wonen 165 m²
Interne bergruimte 0,4 m²
Gebouw gebonden buitenruimte 21 m²
Externe bergruimte 14 m²
Inhoud van de woning excl. berging 592 m³
Gasverbruik 1.124 m³
Gesaldeerd verbruik per jaar 200 kWh
Dit is een indicatie volgens huidige bewoning (2p)
CV ketel : Remeha HR 2023
Onderhoud binnen : Goed
Onderhoud buiten : Goed
Oplevering : In overleg, medio april 2025
Bijzonderheden : Nieuwe dakkapel, recente keuken, recente badkamer en toilet, erfpacht afgekocht voor volledige duur
Kenmerken
Overdracht
- Laatste vraagprijs
- € 725.000 kosten koper
- Vraagprijs per m²
- € 4.394
- Status
- Verkocht
Bouw
- Soort woonhuis
- Eengezinswoning, 2-onder-1-kapwoning
- Soort bouw
- Bestaande bouw
- Bouwjaar
- 1995
- Soort dak
- Zadeldak bedekt met pannen
Oppervlakten en inhoud
- Gebruiksoppervlakten
- Wonen
- 165 m²
- Overige inpandige ruimte
- 1 m²
- Gebouwgebonden buitenruimte
- 21 m²
- Externe bergruimte
- 14 m²
- Perceel
- 329 m²
- Inhoud
- 592 m³
Indeling
- Aantal kamers
- 5 kamers (4 slaapkamers)
- Aantal badkamers
- 1 badkamer
- Badkamervoorzieningen
- Douche, dubbele wastafel, en inloopdouche
- Aantal woonlagen
- 3 woonlagen
- Voorzieningen
- Buitenzonwering en zonnepanelen
Energie
- Energielabel
- Isolatie
- Dubbel glas, HR-glas en voorzetramen
- Verwarming
- Cv-ketel en gedeeltelijke vloerverwarming
- Warm water
- Cv-ketel
- Cv-ketel
- Remeha HR (gas gestookt combiketel uit 2023, eigendom)
Kadastrale gegevens
- HOEK VAN HOLLAND B 4347
- Kadastrale kaart
- Oppervlakte
- 329 m²
- Eigendomssituatie
- Eigendom belast met erfpacht (einddatum erfpacht: 24-04-2093)
- Lasten
- Afgekocht tot 24-04-2093
Buitenruimte
- Ligging
- Aan bosrand, aan water, in bosrijke omgeving en in woonwijk
- Tuin
- Achtertuin en voortuin
- Balkon/dakterras
- Balkon aanwezig
Bergruimte
- Schuur/berging
- Vrijstaande houten berging
Parkeergelegenheid
- Soort parkeergelegenheid
- Op eigen terrein en openbaar parkeren
Foto's 57
© 2001-2026 funda
























































