Dit huis op Funda: https://www.funda.nl/detail/koop/hommerts/huis-de-toer-8/43004535/

De Toer 88622 XG HommertsHommerts
€ 729.000 k.k.
BlikvangerMooie ligging temidden van Friese Merengebied onder de rook van Sneek
Open Huis
- Zaterdag 10 januari van 10:00 tot 15:00
Omschrijving
Prachtig, rustiek gelegen, staat deze zeer royale, vrijstaande – BIJNA ENERGIE NEUTRALE – woning met o.a. een grote garage, professioneel aangebouwde serre en vrije-groene achtertuin op het zuiden gesitueerd. Tuin met veel (6+) fruitbomen. Hommerts is een “levendig” dorp.
Een gezellige indeling, veel inhoud en vierkante meters…..ideaal voor de kopers die ruimte en rust zoeken en dat alles slechts op enkele fietsminuten van Sneek gelegen.
De indeling van deze GROOTHUIS WONING kunnen wij in het kort als volgt omschrijven:
Overdekte entree. Hal met vide met nieuwe lichtkoepels, 2 kastruimtes, toilet met fonteintje, trapopgang en toegang tot meerdere vertrekken waaronder de diepe garage (voorzien van een betonvloer en houten uitrijdeuren).
Tuingerichte/lichte woonkamer (Z-vorm)) met schuifpui en aangebouwde serre. Fors bemeten woonkeuken met uitgebreide keukeninrichting en aangrenzende bijkeuken/kantoorruimte.
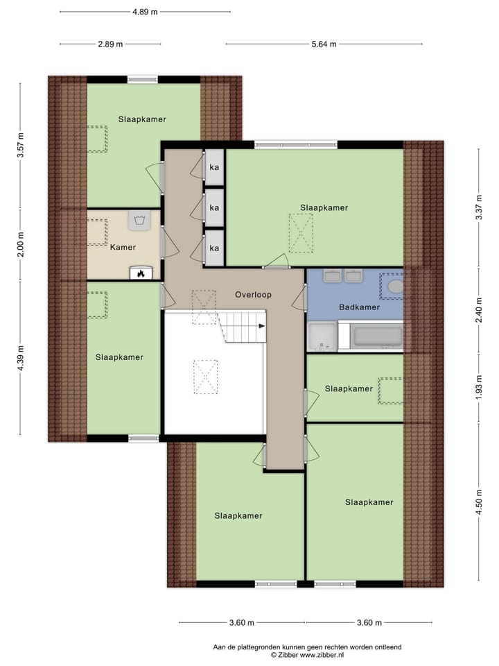
De eerste verdieping heeft een centrale overloop voorzien van een drietal inbouwkasten en geeft toegang tot ZES SLAAPKAMERS met vaste kastruimte (in de knieschotten) en een vaste kast in de master-bedroom. Een complete badkamer met ligbad, douche, vaste wastafel en toilet. Separate was- en droogruimte voor het witgoed.
De tweede verdieping betreft een ruime ZOLDER met volop mogelijkheden voor berging.
Algemeen:
Deze solide, complete woning heeft ENERGIELABEL A ++ (22 zonnepanelen/warmtepomp met aardwarmte /thuisbatterij van 20kWh) wat uiteraard zeer gunstig is voor de nieuwe eigenaar…
Het woonoppervlak van de woning (exclusief garage/zolder) is ca.175 m2 en de inhoud ca.800 m3
De oppervlakte van het perceel eigen grond bedraagt 682 m2.
- De buitenkant van de woning is onlangs geschilderd
- Basisschool, sport voorzieningen en speeltuin in de buurt. Winkels in de dorpen rondom en in Sneek.
- Aan doodlopende straat (voor auto’s).
Kenmerken
Overdracht
- Oorspronkelijke vraagprijs
- € 749.000 kosten koper
- Aangeboden sinds
- Aanvaarding
- In overleg
- Vraagprijs
- € 729.000 kosten koper
- Vraagprijs per m²
- € 4.166
- Status
- Beschikbaar
Bouw
- Soort woonhuis
- Herenhuis, vrijstaande woning
- Soort bouw
- Bestaande bouw
- Bouwjaar
- 2007
- Soort dak
- Zadeldak bedekt met pannen
Oppervlakten en inhoud
- Gebruiksoppervlakten
- Wonen
- 175 m²
- Overige inpandige ruimte
- 23 m²
- Gebouwgebonden buitenruimte
- 5 m²
- Perceel
- 682 m²
- Inhoud
- 800 m³
Indeling
- Aantal kamers
- 8 kamers (6 slaapkamers)
- Aantal badkamers
- 1 badkamer en 1 apart toilet
- Badkamervoorzieningen
- Douche, ligbad, toilet, en wastafel
- Aantal woonlagen
- 2 woonlagen en een zolder
- Voorzieningen
- Mechanische ventilatie, schuifpui, TV kabel, en zonnepanelen
Energie
- Energielabel
- A++
- Isolatie
- Dakisolatie, dubbel glas, muurisolatie en vloerisolatie
- Verwarming
- Gedeeltelijke vloerverwarming en warmtepomp
- Warm water
- Aardwarmte
Kadastrale gegevens
- OPPENHUIZEN F 746
- Kadastrale kaart
- Oppervlakte
- 682 m²
- Eigendomssituatie
- Volle eigendom
Buitenruimte
- Ligging
- Aan rustige weg, in woonwijk en vrij uitzicht
- Tuin
- Achtertuin, voortuin, zijtuin en zonneterras
- Achtertuin
- 304 m² (16,00 meter diep en 19,00 meter breed)
- Ligging tuin
- Gelegen op het zuiden bereikbaar via achterom
Bergruimte
- Schuur/berging
- Inpandig
Parkeergelegenheid
- Soort parkeergelegenheid
- Op eigen terrein
Foto's 46
Plattegronden 3
© 2001-2025 funda
















































