
Omschrijving
In de zomer zit je hier lekker met vrienden op het terras. Je hoeft alleen maar de lift naar beneden te pakken. Hier in het groene Hyde Park in Hoofddorp is het goed vertoeven! Deze studio type A van circa 36 m2 bevindt zich in Victoria. Een opvallend flamingo-roze gebouw met o.a. een Albert Heijn, diverse winkels en je kunt er een drankje doen. Hoe lekker is dat! En je bent ook nog eens zo in het grote Winkelcentrum van Hoofddorp of met de fiets in de polder! Iets voor jou?
Alles bij de hand
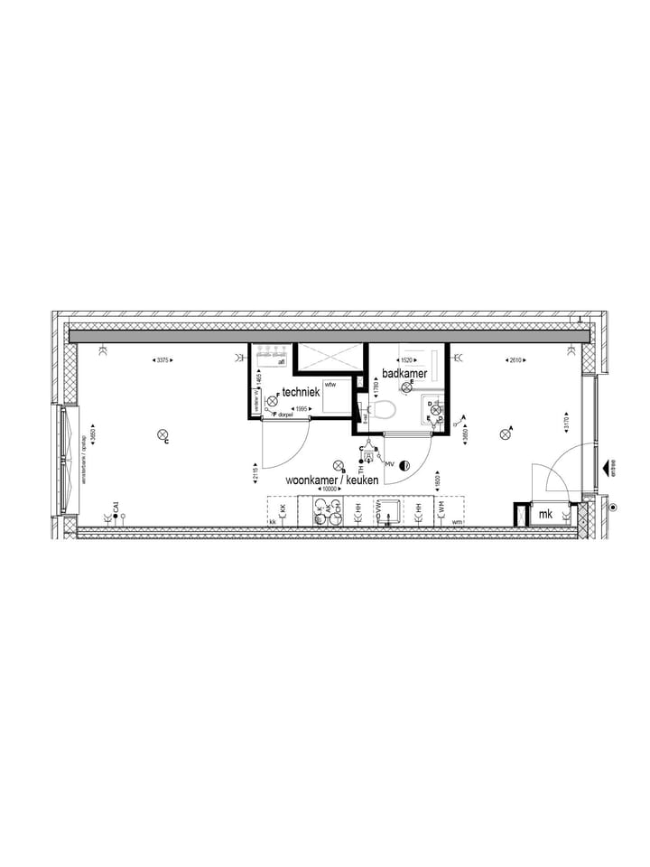
Deze studio bevindt zich op de 1e verdieping. Via de gemeenschappelijke binnentuin neem je de trap of de lift en kom je bij de voordeur van de studio. Na het openen van de voordeur stap je direct in de open leefruimte met lekker veel licht door de ramen aan de voor- en achterkant. De plek voor de keuken en de badkamer staan vast, de rest kun je helemaal naar eigen wens inrichten. De badkamer is standaard voorzien van tegelwerk en sanitair (douche, wastafel, toilet). Natuurlijk is er ook ruimte voor het verwerken van jouw specifieke woonwensen. Het grote voordeel van nieuwbouw!
Toekomstbestendige woning!
Er is genoeg groen in en om Hyde Park. Ga lekker een blokje om in het naastgelegen park of spreek af in de gemeenschappelijke binnentuin. In de winter hoef jij geen kou te lijden, want het gehele appartement heeft vloerverwarming. Fijn hè?
Kenmerken
Overdracht
- Laatste vraagprijs
- € 269.000 vrij op naam
- Vraagprijs per m²
- € 7.686
- Status
- Verkocht
Bouw
- Soort appartement
- Bovenwoning (appartement)
- Soort bouw
- Nieuwbouw
- Bouwjaar
- 2024
Oppervlakten en inhoud
- Gebruiksoppervlakten
- Wonen
- 35 m²
- Inhoud
- 105 m³
Indeling
- Aantal kamers
- 1 kamer
- Aantal woonlagen
- 1 woonlaag
- Gelegen op
- 1e woonlaag
Energie
- Energielabel
- A+
Buitenruimte
- Ligging
- Aan park, aan rustige weg, in centrum en in woonwijk
Foto's 9
© 2001-2026 funda








