
Omschrijving
Bruisend, hip en groen: Hyde Park in Hoofddorp heeft het straks allemaal! Gezellige restaurants, cafés, winkels en sportfaciliteiten. Maar ook veel bomen, terrassen en groene binnentuinen. Wat wil je nog meer? Dit 2-kamerappartement type C van circa 44 m2 met 1 slaapkamer bevindt zich in Victoria, een opvallend flamingo-roze gebouw. Wat een eyecatcher! Winkelen in het Winkelcentrum of lekker met de racefiets de polder in. Het kan allemaal! Iets voor jou?
Bruisende, hippe wijk met veel groen
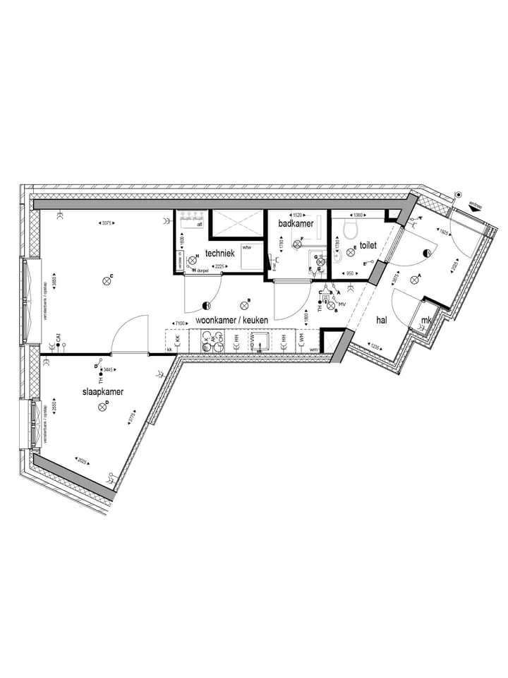
Dit appartement bevindt zich op de 1e verdieping. Via de gemeenschappelijke binnentuin neem je de trap of de lift en kom je bij de voordeur van het appartement. Na het openen van de voordeur stap je direct in de open leefruimte met lekker veel licht door de ramen aan de voor- en achterkant. Vanuit hier loop je zo de slaapkamer in! De badkamer is voorzien van een douche en wastafel en het appartement heeft ook een separaat toilet. Dat geeft toch net wat meer privacy. Natuurlijk is er ook ruimte voor het verwerken van jouw specifieke woonwensen. Het grote voordeel van nieuwbouw!
Toekomstbestendige woning!
Er is genoeg groen in en om Hyde Park. Ga lekker een blokje om in het naastgelegen park of spreek af in de gemeenschappelijke binnentuin. In de winter hoef jij geen kou te lijden, want het gehele appartement heeft vloerverwarming. Fijn hè?
Kenmerken
Overdracht
- Laatste vraagprijs
- € 345.000 vrij op naam
- Vraagprijs per m²
- € 8.023
- Status
- Verkocht
Bouw
- Soort appartement
- Bovenwoning (appartement)
- Soort bouw
- Nieuwbouw
- Bouwjaar
- 2024
Oppervlakten en inhoud
- Gebruiksoppervlakten
- Wonen
- 43 m²
- Inhoud
- 132 m³
Indeling
- Aantal kamers
- 2 kamers (1 slaapkamer)
- Aantal woonlagen
- 1 woonlaag
- Gelegen op
- 1e woonlaag
Energie
- Energielabel
Foto's 8
© 2001-2026 funda







