
Omschrijving
Riante uitgebouwde 7-kamer EENGEZINSWONING in de gewilde wijk Toolenburg met maar liefst 179 m² aan woonoppervlakte. Luxe moderne (2015) woonkeuken, 5 ruime slaapkamers en een moderne badkamer. Zonnige achtertuin gelegen op het zuidwesten en balkon gelegen op het noordoosten.
De omgeving is van alle gemakken voorzien. Lopend de boodschappen halen bij Winkelcentrum Toolenburg met alle denkbare winkels. Of lopend naar de snelle busverbinding van R-net die je naar het CS Station Hoofddorp, Haarlem, Schiphol of Amsterdam brengt. Kinderdagverblijven, basisscholen, middelbare scholen en diverse sportverenigingen bevinden zich tevens in de nabije omgeving, net zoals de Toolenburger plas. De uitvalswegen naar de grote steden zijn snel aan te rijden.
INDELING:
BEGANE GROND:
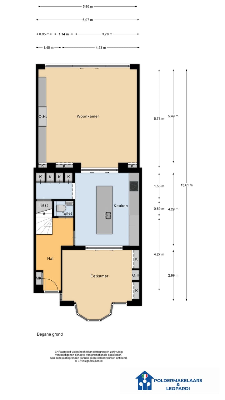
Entree, hal, meterkast voorzien van glasvezel, toilet met fonteintje en de gerenoveerde trap. De prachtige luxe Italiaanse Zampieri keuken (2015) is voorzien van diverse inbouwapparatuur van de top merken Neff, Gaggenau en Liebherr. Te weten: inductiekookplaat met 5 zones, afzuigkap, extra grote koelkast, stoomoven met slide deur, combi-oven, Quooker, vaatwasser en warmhoudlade. In de bijkeuken bevindt zich de vriezer en veel opbergruimte zoals de praktische apothekerskast en de trapkast. Aan de voorzijde in de erker is de eetkamer gesitueerd, waar het met de sfeervolle gashaard heerlijk dineren en natafelen is met familie en/of vrienden. De eetkamer kan afgesloten worden van de keuken door middel van de en-suite deuren. De riant uitgebouwde woonkamer is tuingericht, ook hier tref je een sfeervolle gashaard. De tv is netjes weggewerkt in het meubel met een tv lift. De woonkamer kan afgesloten worden van de keuken door middel van de en-suite deuren. Naast de gashaarden wordt deze verdieping ook verwarmd met vloerverwarming welke verdeeld is in 3 zones (woonkamer, keuken en eetkamer).
EERSTE VERDIEPING:
Overloop met de kast waar zich de c.v.-ketel en mechanische ventilatiebox zich bevinden. De riante masterbedroom is aan de voorzijde gelegen met een speelse erker en hor, riante kastenwand en airco. De moderne badkamer is voorzien van douche, dubbele wastafel in meubel, toilet, spiegelkast, vloerverwarming en inbouwspots. Aan de achterzijde zijn 2 ruime slaapkamers gelegen.
TWEEDEVERDIEPING:
Voorzolder met de opstelplaats van de wasmachine en droger en een praktische bergkast. Riante slaapkamer aan de voorzijde met vrij uitzicht en een balkon gelegen op het noordoosten. Ruime slaapkamer aan de achterzijde gelegen met een vaste kast.
TUIN:
Via de dubbele aluminium schuifpui met hor kom je in de op het zonnige zuidwesten gelegen onderhoudsvriendelijke achtertuin. Hier tref je aan de gevel een ingebouwd zonnescherm met spotjes, buitenverlichting en een waterpunt. Achter in de tuin bevindt zich de vrijstaande stenen berging met elektra en de achterom.
BIJZONDERHEDEN:
- Woonoppervlakte 179 m².
- 5 slaapkamers.
- Energielabel B.
- Begane grond uitgebouwd en gerenoveerd 2015.
- Luxe Italiaanse Zampieri keuken 2015.
- Bitumineuze dakbedekking 2e verdieping 2024.
- Schilderwerk buiten 2024.
- Oplevering in overleg.
Kenmerken
Overdracht
- Laatste vraagprijs
- € 709.000 kosten koper
- Vraagprijs per m²
- € 3.961
- Status
- Verkocht
Bouw
- Soort woonhuis
- Eengezinswoning, tussenwoning
- Soort bouw
- Bestaande bouw
- Bouwjaar
- 1992
- Soort dak
- Plat dak bedekt met bitumineuze dakbedekking
Oppervlakten en inhoud
- Gebruiksoppervlakten
- Wonen
- 179 m²
- Gebouwgebonden buitenruimte
- 2 m²
- Externe bergruimte
- 5 m²
- Perceel
- 169 m²
- Inhoud
- 577 m³
Indeling
- Aantal kamers
- 7 kamers (5 slaapkamers)
- Aantal badkamers
- 1 badkamer en 1 apart toilet
- Badkamervoorzieningen
- Douche, dubbele wastafel, toilet, vloerverwarming, en wastafelmeubel
- Aantal woonlagen
- 3 woonlagen
- Voorzieningen
- Airconditioning, buitenzonwering, glasvezelkabel, mechanische ventilatie, schuifpui, en TV kabel
Energie
- Energielabel
- B
- Isolatie
- Volledig geïsoleerd
- Verwarming
- Cv-ketel, gashaard en gedeeltelijke vloerverwarming
- Warm water
- Cv-ketel
- Cv-ketel
- Remeha Quinta (gas gestookt combiketel uit 2005, eigendom)
Kadastrale gegevens
- HAARLEMMERMEER Q 1176
- Kadastrale kaart
- Oppervlakte
- 169 m²
- Eigendomssituatie
- Volle eigendom
Buitenruimte
- Ligging
- In woonwijk en vrij uitzicht
- Tuin
- Achtertuin en voortuin
- Achtertuin
- 78 m² (13,00 meter diep en 6,00 meter breed)
- Ligging tuin
- Gelegen op het zuidwesten bereikbaar via achterom
- Balkon/dakterras
- Balkon aanwezig
Bergruimte
- Schuur/berging
- Vrijstaande stenen berging
- Voorzieningen
- Elektra
Parkeergelegenheid
- Soort parkeergelegenheid
- Openbaar parkeren
Foto's 56
© 2001-2025 funda























































