Dit huis op Funda: https://www.funda.nl/detail/koop/hoogeveen/huis-citroenvlinder-61/43027076/

Omschrijving
Citroenvlinder 61 in Hoogeveen – slim ingedeeld, praktisch én compleet
Welkom aan de Citroenvlinder 61, een fijne tussenwoning die wonen makkelijk en comfortabel maakt. Deze woning biedt een doordachte indeling met een lichte woonkamer en een open keuken, waar je heerlijk kunt koken en samen zijn. De onderhoudsarme tuin met een vrijstaande berging mét elektra en een handige achterom maakt het plaatje compleet. Gelegen in een kindvriendelijke buurt, vlakbij basisschool, supermarkt, station en het gezellige centrum – hier woon je centraal en rustig tegelijk.
Een huis dat meteen voelt als thuis
Je komt binnen in de entree met meterkast en toilet. De woonkamer is ruim en licht dankzij de openslaande deuren die uitkomen op de tuin. De open keuken is voorzien van moderne inbouwapparatuur, waaronder een vaatwasser, oven, magnetron, gaspitten en een afzuigkap.
Comfort op de eerste verdieping
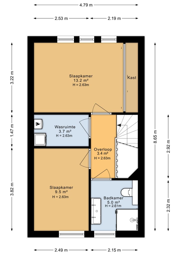
Op de eerste verdieping vind je een praktische overloop met washok en een Intergas cv-ketel (2010) met WTW-unit. De badkamer is modern en compleet, uitgerust met een douche, een dubbel wastafelmeubel en een toilet. Er zijn twee slaapkamers, waaronder één ruime master bedroom met ingebouwde kasten, die zorgt voor extra bergruimte.
Buiten genieten zonder zorgen
De tuin is onderhoudsarm aangelegd met bestrating en een berging die is voorzien van elektra. Ook is er een achterom.
Duurzaam en energiezuinig
De woning is uitgerust met 8 zonnepanelen, wat zorgt voor een energielabel A+ en lage energiekosten. Zo woon je comfortabel en duurzaam.
Bijzonderheden:
• Bouwjaar 2010
• Energielabel A+
• Washok en Intergas cv-ketel (2010) met WTW-unit
• 8 zonnepanelen
• Gelegen in een kindvriendelijke buurt
• Op loop-/fietsafstand van basisschool, supermarkt, station en centrum
Kom snel kijken!
Citroenvlinder 61 is ideaal voor starters en gezinnen die centraal willen wonen met alle voorzieningen dichtbij. Een praktisch huis dat klaar is voor jouw persoonlijke touch. Wil jij hier wonen? Maak dan snel een afspraak voor een bezichtiging!
Kenmerken
Overdracht
- Laatste vraagprijs
- € 325.000 kosten koper
- Vraagprijs per m²
- € 3.533
- Status
- Verkocht
Bouw
- Soort woonhuis
- Eengezinswoning, tussenwoning
- Soort bouw
- Bestaande bouw
- Bouwjaar
- 2010
- Soort dak
- Plat dak
Oppervlakten en inhoud
- Gebruiksoppervlakten
- Wonen
- 92 m²
- Externe bergruimte
- 7 m²
- Perceel
- 130 m²
- Inhoud
- 302 m³
Indeling
- Aantal kamers
- 3 kamers (2 slaapkamers)
- Aantal badkamers
- 1 badkamer en 1 apart toilet
- Badkamervoorzieningen
- Douche, toilet, wastafel, en wastafelmeubel
- Aantal woonlagen
- 2 woonlagen
- Voorzieningen
- Mechanische ventilatie en zonnepanelen
Energie
- Energielabel
- A+
- Isolatie
- Dakisolatie, dubbel glas, muurisolatie en vloerisolatie
- Verwarming
- Cv-ketel
- Warm water
- Cv-ketel
- Cv-ketel
- Intergas (gas gestookt combiketel uit 2010, eigendom)
Kadastrale gegevens
- HOOGEVEEN P 5504
- Kadastrale kaart
- Oppervlakte
- 130 m²
- Eigendomssituatie
- Volle eigendom
Buitenruimte
- Ligging
- In woonwijk
- Tuin
- Achtertuin en voortuin
- Achtertuin
- 60 m² (11,80 meter diep en 5,05 meter breed)
- Ligging tuin
- Gelegen op het noorden
Bergruimte
- Schuur/berging
- Vrijstaande houten berging
Foto's 45
© 2001-2025 funda












































